Vuokrataan toimistotilat - Espoo
Linnoitustie 2 a, Leppävaara, 02600 Espoo #10791591
Quartetto Bassosta laadukasta toimistotilaa tarjolla Espoon Leppävaarasta.
Osoite
Linnoitustie 2 a, 02600 Espoo
Tilatyyppi
Toimistotilaa
150 m2
Tilajako
Jaettavissa
Kiinteistö
Vuokrattavat toimitilat Quartetto Bassosta ovat muuntojoustavia ja mahdollista muokata käyttäjillee sopiviksi. Toimitilat ovat avaria ja valoisia, joihin suuret ikkunat tuovat runsaasti luonnonvaloa. Kiinteistöstä löytyy useita upeita toimistotila vaihtoehtoja.
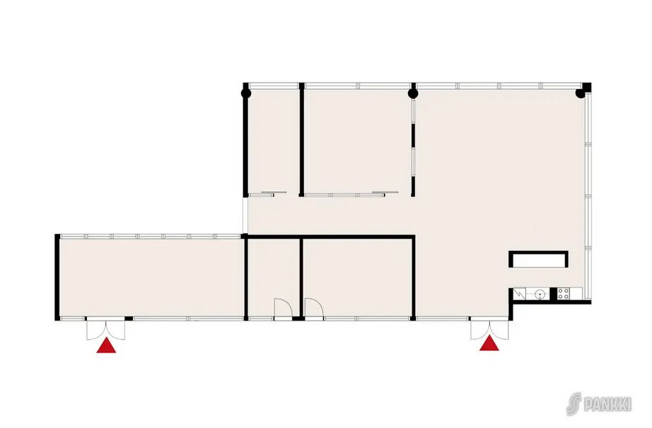
Tilan tiedot:
- Pinta-ala 150m2 voidaan yhdistää 32m2 neuvotteluhuone lisäksi tähän
- Kerros 1. katutasossa heti aulan vieressä.
- Valoisa toimisto sisältää avotilaa, työhuoneita, oman keittiön sekä kaksi neuvottelutilaa (32 m²)
Kiinteistössä on tarjolla useita eri kokoisia tiloja, joten kannattaa tulla paikan päälle katsomaan, mikä ratkaisu sopii parhaiten juuri teidän tarpeisiinne. Ota yhteyttä ja varaa oma esittelyaikasi – tervetuloa tutustumaan!
Tilan tiedot:
- Pinta-ala 150m2 voidaan yhdistää 32m2 neuvotteluhuone lisäksi tähän
- Kerros 1. katutasossa heti aulan vieressä.
- Valoisa toimisto sisältää avotilaa, työhuoneita, oman keittiön sekä kaksi neuvottelutilaa (32 m²)
Kiinteistössä on tarjolla useita eri kokoisia tiloja, joten kannattaa tulla paikan päälle katsomaan, mikä ratkaisu sopii parhaiten juuri teidän tarpeisiinne. Ota yhteyttä ja varaa oma esittelyaikasi – tervetuloa tutustumaan!
Sijainti
Kiinteistö sijaitsee erinomaisten kulkuyhteyksien äärellä lähellä Turunväylän ja Kehä I:n liittymää.
Vapautuu
Heti
Jaettavissa
Ota yhteyttä
Arvo Premises Oy
Joakim Kukkonen
Osakas, Toimitilavälittäjä
Näytä puhelinnumero
040 555 8106
Seppo Pakarinen
Osakas, Kiinteistönvälittäjä. LKV, YKV, AKA
Näytä puhelinnumero
040-703 8000
Pyydä lisätietoa
