Vuokrataan toimistotilat - Espoo
Finnoonlaaksontie 2, Suomenoja, 02270 Espoo #10791586
Vuokrattavana monipuolinen toimisto-/liiketila ja pienempiä toimistohuoneita Espoon Suomenojalla
Osoite
Finnoonlaaksontie 2, 02270 Espoo
Tilatyyppi
Toimistotilaa
11 - 110 m2
Tilajako
Jaettavissa
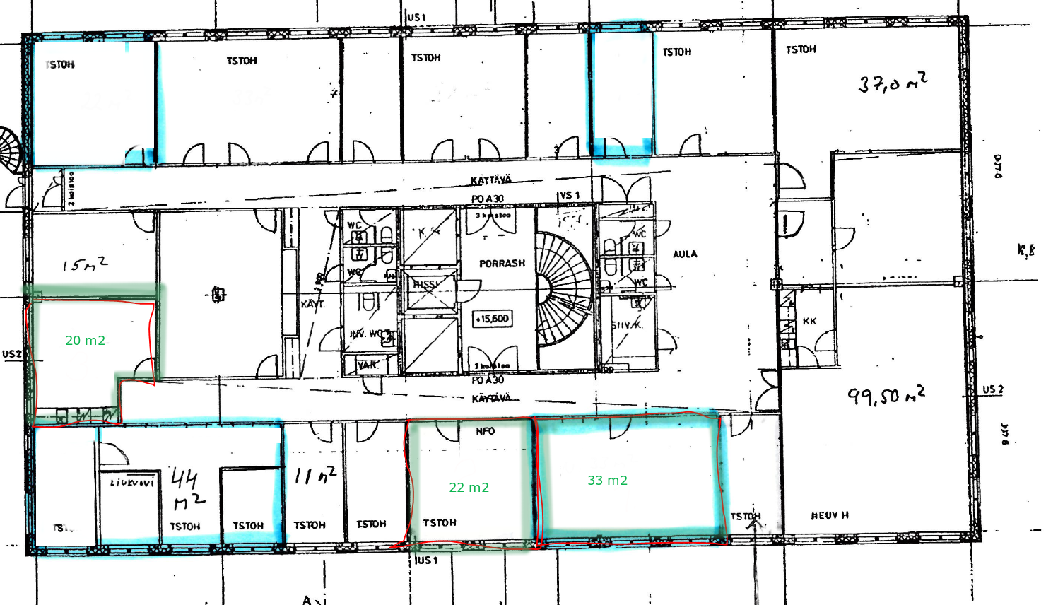
Vapaana 2. krs 110m² toimistotilaa ja 3. krs toimistohuoneita 11m², 22m², 33m²
Pohjapiirros
Vuokra
Hintatiedot pyydettäessä!
Vuokraan sisältyy lämpö
Kiinteistö
Nyt tarjolla monikäyttöistä ja modernia tilaa Espoon Suomenojan kasvavalta alueelta! Tämä 2. kerroksessa sijaitseva 110 m² toimisto-/liiketila tarjoaa erinomaiset puitteet esimerkiksi myymäläksi, näyttelytilaksi tai yrityksesi toimistoksi. Lisäksi 3. kerroksessa on vuokrattavissa toimistohuoneita eri kokoluokissa. Tiloja voidaan räätälöidä tarpeidesi mukaan.
2. kerroksen toimisto-/liiketila – 110 m²
Tämä valoisa ja avara tila sopii monenlaiseen käyttöön. Aiemmin tilassa on toiminut laattaliikkeen showroom, mikä kertoo sen sopivuudesta esittely- tai myymälätilaksi. Tila on hyvin muokattavissa, joten se sopii myös toimistokäyttöön tai muuhun kaupalliseen toimintaan.
+ Pinta-ala: 110 m²
+ Käyttötarkoitus: Toimisto-, myymälä- tai näyttelytila
+ Sijainti: 2. kerros, helposti saavutettavissa
Tilassa paljon mahdollisuuksia:
+ Valoisa ja tilava pohjaratkaisu, joka soveltuu monipuoliseen käyttöön
+ Mahdollisuus muokata tilaa vastaamaan yrityksesi tarpeita
+ Näkyvä ja helposti löydettävä sijainti, joka houkuttelee asiakkaita ja vierailijoita
3. kerroksen toimistohuoneet – erikokoisia vaihtoehtoja:
Etsitkö pienempää toimistotilaa rauhallisesta ympäristöstä? 3. kerroksessa on vuokrattavissa toimistohuoneita eri kokoluokissa, mikä tarjoaa joustavuutta yrityksesi kasvulle ja tarpeille. Toimistohuoneet ovat sopivia niin yksinyrittäjille kuin pienille tiimeillekin.
Toimistohuoneet:
- 11 m²
- 22 m²
- 33 m²
Kiinnostuitko? Ota yhteyttä ja tule tutustumaan tiloihin! Tämä on loistava tilaisuus yritykselle, joka etsii joustavaa ja monikäyttöistä tilaratkaisua erinomaisella sijainnilla.
2. kerroksen toimisto-/liiketila – 110 m²
Tämä valoisa ja avara tila sopii monenlaiseen käyttöön. Aiemmin tilassa on toiminut laattaliikkeen showroom, mikä kertoo sen sopivuudesta esittely- tai myymälätilaksi. Tila on hyvin muokattavissa, joten se sopii myös toimistokäyttöön tai muuhun kaupalliseen toimintaan.
+ Pinta-ala: 110 m²
+ Käyttötarkoitus: Toimisto-, myymälä- tai näyttelytila
+ Sijainti: 2. kerros, helposti saavutettavissa
Tilassa paljon mahdollisuuksia:
+ Valoisa ja tilava pohjaratkaisu, joka soveltuu monipuoliseen käyttöön
+ Mahdollisuus muokata tilaa vastaamaan yrityksesi tarpeita
+ Näkyvä ja helposti löydettävä sijainti, joka houkuttelee asiakkaita ja vierailijoita
3. kerroksen toimistohuoneet – erikokoisia vaihtoehtoja:
Etsitkö pienempää toimistotilaa rauhallisesta ympäristöstä? 3. kerroksessa on vuokrattavissa toimistohuoneita eri kokoluokissa, mikä tarjoaa joustavuutta yrityksesi kasvulle ja tarpeille. Toimistohuoneet ovat sopivia niin yksinyrittäjille kuin pienille tiimeillekin.
Toimistohuoneet:
- 11 m²
- 22 m²
- 33 m²
Kiinnostuitko? Ota yhteyttä ja tule tutustumaan tiloihin! Tämä on loistava tilaisuus yritykselle, joka etsii joustavaa ja monikäyttöistä tilaratkaisua erinomaisella sijainnilla.
Sijainti
Erinomainen sijainti Espoon Suomenojalla
Kiinteistö sijaitsee vilkkaalla ja kehittyvällä alueella Suomenojalla, josta on hyvät kulkuyhteydet pääkaupunkiseudun eri suuntiin. Läheisyydessä on monipuoliset palvelut ja yritysalueen tarjonta on kasvanut viime vuosina merkittävästi.
Kiinteistö sijaitsee vilkkaalla ja kehittyvällä alueella Suomenojalla, josta on hyvät kulkuyhteydet pääkaupunkiseudun eri suuntiin. Läheisyydessä on monipuoliset palvelut ja yritysalueen tarjonta on kasvanut viime vuosina merkittävästi.
Palvelut
Finnoonlaaksontie 2 sijaitsee Espoon kasvavalla alueella, jossa on tarjolla kattavat palvelut. Kiinteistön läheisyydessä on useita lounasravintoloita, jotka palvelevat niin yrityksiä kuin niiden vierailijoitakin. Hyvät kulkuyhteydet niin julkisilla liikennevälineillä kuin autolla tekevät kohteeseen saapumisesta vaivatonta.
Alueella on myös monipuoliset liikunta- ja virkistyspalvelut, kuten kuntosaleja ja ulkoilumahdollisuuksia, jotka tarjoavat erinomaiset puitteet hyvinvoinnista huolehtimiseen työpäivän aikana tai sen jälkeen.
Alueella on myös monipuoliset liikunta- ja virkistyspalvelut, kuten kuntosaleja ja ulkoilumahdollisuuksia, jotka tarjoavat erinomaiset puitteet hyvinvoinnista huolehtimiseen työpäivän aikana tai sen jälkeen.
Vapautuu
Heti vapaana!
Kerros
2 / 3
Energiatehokkuusluokka
Ei lain edellyttämää energiatodistusta
Näkyvällä paikalla
Jaettavissa
Ota yhteyttä
Arvo Premises Oy
Joakim Kukkonen
Osakas, Toimitilavälittäjä
Näytä puhelinnumero
040 555 8106
Seppo Pakarinen
Osakas, Kiinteistönvälittäjä. LKV, YKV, AKA
Näytä puhelinnumero
040-703 8000
Pyydä lisätietoa
