Vuokrataan toimistotilat - Helsinki
Autotalo, Runeberginkatu 5, Kamppi - Ruoholahti, 00100 Helsinki #10791501
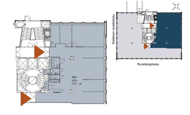
Loistava 5. kerroksen toimisto keskellä Kamppia, avotilaa ja huoneita. Vapautuu sopimuksen mukaan.
Osoite
Runeberginkatu 5, 00100 Helsinki
Tilatyyppi
Toimistotilaa
177 m2
Muuta
Osoitteessa Runeberginkatu 5 sijaitsee 11 kerroksinen liikekiinteistö Autotalokorttelissa, jossa Kampin keskus palveluineen, sekä metroasema ja bussiliikenneterminaali ovat aidosti kävelyetäisyydellä. Autotalokorttelista löytyy mm. suosittu ja monipuolinen ravintolamaailma ja Kampin keskus tarjoaa laajan kattauksen monipuolisia palveluita lisää.
Arkkitehti Armas Lehtinen suunnittelema Pohjantalo toimitilakiinteistö valmistui Pohja-Yhtymälle perinteikkääseen Autotalokortteliin vuonna 1958 ja edustaa tyyliltään modernismia. Pohjantalon arkkitehtuuri on viereistä Autotaloa hillitympää, mutta sen rakennusmateriaalit ovat olleet suhteellisen laadukkaita. Siinä ovat 1950-luvulle tyypilliset nauhaikkunat, ja sen julkisivu on koristettu kellertävillä marmorilaatoilla, ja Runeberginkadun puolella eloksoidulla alumiinilla. Katutason julkisivu on verhoiltu graniitilla.
Kiinteistö on käynyt läpi perusteellisen korjaushankkeen, jossa sen toimitiloja on avarrettu ja tehty myös avotiloiksi soveltuviksi ja se tarjoaa nykyaikaista ja hyväkuntoista toimitilaa erikokoisiin tilatarpeisiin. Katutasossa on liiketilaa ja ylemmissä kerroksissa valoisaa, muuntojoustavaa toimistotilaa sekä neuvottelutiloja. Tiloissa on jäähdytetty ilmanvaihto, valokuituyhteys ja lisäksi kiinteistöstä löytyy mm. kuntosali, pyöräparkki, suihkutilat ja pukuhuoneet vaatteiden vaihtoa varten. Kiinteistö on esteetön ja se sopii liikuntarajoitteisille.
Alun perin nimityksellä Autotalo on tarkoitettu vain korttelin eteläisellä puoliskolla olevaa liiketaloa kaksine torneineen, mutta nykyisin koko korttelia nimitetään usein Autotaloksi tai Autotalokortteliksi. Kaikkiaan korttelissa on neljä tornia, joiden julkisivut ovat kuitenkin eri materiaalia. Korttelin pohjoisosassa sijaitsee kaksi samoihin aikoihin rakennettua, samantyyppistä liiketaloa torneineen ja mataline jalustamaisine osineen.
Kampin Autotalokortteli on yksi Kampin maamerkeistä ja se sijaitsee näkyvällä paikalla aivan Kampin kauppakeskuksen vieressä. Kohteeseen on erinomaiset julkiset kulkuyhteydet metrolla, raitiovaunulla ja busseilla. Yksityisautoille on maanalaista pysäköintitilaa korttelin omassa autohallissa, jonne on suora hissiyhteys toimistokerroksista.
Arkkitehti Armas Lehtinen suunnittelema Pohjantalo toimitilakiinteistö valmistui Pohja-Yhtymälle perinteikkääseen Autotalokortteliin vuonna 1958 ja edustaa tyyliltään modernismia. Pohjantalon arkkitehtuuri on viereistä Autotaloa hillitympää, mutta sen rakennusmateriaalit ovat olleet suhteellisen laadukkaita. Siinä ovat 1950-luvulle tyypilliset nauhaikkunat, ja sen julkisivu on koristettu kellertävillä marmorilaatoilla, ja Runeberginkadun puolella eloksoidulla alumiinilla. Katutason julkisivu on verhoiltu graniitilla.
Kiinteistö on käynyt läpi perusteellisen korjaushankkeen, jossa sen toimitiloja on avarrettu ja tehty myös avotiloiksi soveltuviksi ja se tarjoaa nykyaikaista ja hyväkuntoista toimitilaa erikokoisiin tilatarpeisiin. Katutasossa on liiketilaa ja ylemmissä kerroksissa valoisaa, muuntojoustavaa toimistotilaa sekä neuvottelutiloja. Tiloissa on jäähdytetty ilmanvaihto, valokuituyhteys ja lisäksi kiinteistöstä löytyy mm. kuntosali, pyöräparkki, suihkutilat ja pukuhuoneet vaatteiden vaihtoa varten. Kiinteistö on esteetön ja se sopii liikuntarajoitteisille.
Alun perin nimityksellä Autotalo on tarkoitettu vain korttelin eteläisellä puoliskolla olevaa liiketaloa kaksine torneineen, mutta nykyisin koko korttelia nimitetään usein Autotaloksi tai Autotalokortteliksi. Kaikkiaan korttelissa on neljä tornia, joiden julkisivut ovat kuitenkin eri materiaalia. Korttelin pohjoisosassa sijaitsee kaksi samoihin aikoihin rakennettua, samantyyppistä liiketaloa torneineen ja mataline jalustamaisine osineen.
Kampin Autotalokortteli on yksi Kampin maamerkeistä ja se sijaitsee näkyvällä paikalla aivan Kampin kauppakeskuksen vieressä. Kohteeseen on erinomaiset julkiset kulkuyhteydet metrolla, raitiovaunulla ja busseilla. Yksityisautoille on maanalaista pysäköintitilaa korttelin omassa autohallissa, jonne on suora hissiyhteys toimistokerroksista.
Vapautuu
Kysy
Rakennusvuosi
1958
Kerros
5
Ota yhteyttä
Juhola Asset Management Oy
Itsehallintokuja 4 02600 Espoo
Näytä puhelinnumero
040 4551 390
Leena Juhola
Pyydä lisätietoa
