Vuokrataan liiketilat - Helsinki
Autotalo, Salomonkatu 17, Kamppi - Ruoholahti, 00100 Helsinki #10791496
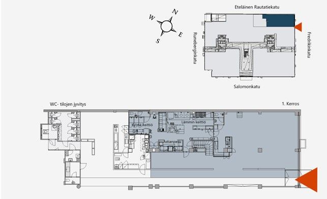
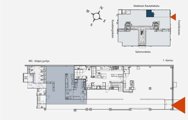
Vapautumassa noin 291,5 m2 tilakokonaisuus, joka sisältää oman valmistuskeittiö mahdollisuuden, jossa rasvakanava- ja rasvakaivovalmiudet ovat jo olemassa. Vuokralainen vastaa tilan kalustamisesta ja keittiölaitteiden investoinneista.
Osoite
Salomonkatu 17, 00100 Helsinki
Tilatyyppi
Liiketilaa
291,5 m2
Muuta
Osoitteessa Salomonkatu 17 sijaitseva Autotalo on vuonna 1958 valmistunut 12 kerroksinen liikekiinteistö Autotalokorttelissa, jossa Kampin keskus palveluineen, sekä metroasema ja bussiliikenneterminaali ovat aidosti kävelyetäisyydellä. Autotalokorttelista löytyy mm. suosittu ja monipuolinen ravintolamaailma, K-Market ja Kampin keskus tarjoaa laajan kattauksen monipuolisia palveluita lisää.
Arkkitehtien Eino Tuompo & Veli Valorinta suunnittelema toimitilakiinteistö on valmistunut perinteikkääseen Autotalokortteliin vuonna 1958 ja edustaa tyyliltään modernismia. Kiinteistö on käynyt läpi perusteellisen korjaushankkeen vuonna 2015, jolloin mm. rakennuksen aulatila uudistui erittäin näyttäväksi ja myös sen toimitiloja on avarrettu ja rakennettu myös avotiloiksi soveltuviksi.
Nykyisin Autotalo tarjoaa nykyaikaista ja hyväkuntoista toimitilaa erikokoisiin tilatarpeisiin. Katutasossa on liiketilaa ja ylemmissä kerroksissa valoisaa, muuntojoustavaa toimistotilaa sekä neuvottelutiloja. Rakennuksen ylimmässä kerroksessa sijaitsee näyttävä kokous- ja neuvottelukeskus Sky Lounge, jossa on mahdollista järjestää jopa 40 hengen tilaisuuksia yritysjuhlista tärkeisiin neuvotteluihin ja virkistäviin saunailtoihin.
Alun perin nimityksellä Autotalo on tarkoitettu vain ko. korttelin eteläisellä puoliskolla olevaa liiketaloa kaksine torneineen, mutta nykyisin koko korttelia nimitetään usein Autotaloksi tai Autotalokortteliksi. Kaikkiaan korttelissa on neljä tornia, joiden julkisivut ovat kuitenkin eri materiaalia.
Korttelin pohjoisosassa sijaitsee kaksi samoihin aikoihin rakennettua, samantyyppistä liiketaloa torneineen ja mataline jalustamaisine osineen. Niistä läntisemmän, Runeberginkadun ja Eteläisen Rautatiekadun risteyksessä sijaitsevan vuonna 1958 valmistuneen Pohjantalon, suunnitteli Armas Lehtinen, ja se oli alun perin vakuutusyhtiö Pohja-yhtymän toimitalo. Vuonna 1962 valmistunut Kampintorni katolla pyörivine Mercedes-Benz- tunnuksineen sijaitsee Fredrikinkadun ja Eteläisen Rautatiekadun risteyksessä, osoitteessa Fredrikinkatu 48, ja sen on suunnitellut Risto-Veikko Luukkonen. Myös Pohjantalo ja Kampintorni ovat rakennusajalleen tyypillisiä esimerkkejä modernismista.
Kampin Autotalokortteli on yksi Kampin maamerkeistä ja se sijaitsee näkyvällä paikalla aivan Kampin kauppakeskuksen vieressä. Kohteeseen on erinomaiset julkiset kulkuyhteydet metrolla, raitiovaunulla ja busseilla. Yksityisautoille on maanalaista pysäköintitilaa korttelin omassa autohallissa, jonne on suora hissiyhteys toimistokerroksista, pysäköintipaikat vuokraa Europark. Autohallissa on myös Autojen pesupalvelu. Pyöräilijöille löytyy mm. pyöräparkki, suihku- ja saunatilat.
Arkkitehtien Eino Tuompo & Veli Valorinta suunnittelema toimitilakiinteistö on valmistunut perinteikkääseen Autotalokortteliin vuonna 1958 ja edustaa tyyliltään modernismia. Kiinteistö on käynyt läpi perusteellisen korjaushankkeen vuonna 2015, jolloin mm. rakennuksen aulatila uudistui erittäin näyttäväksi ja myös sen toimitiloja on avarrettu ja rakennettu myös avotiloiksi soveltuviksi.
Nykyisin Autotalo tarjoaa nykyaikaista ja hyväkuntoista toimitilaa erikokoisiin tilatarpeisiin. Katutasossa on liiketilaa ja ylemmissä kerroksissa valoisaa, muuntojoustavaa toimistotilaa sekä neuvottelutiloja. Rakennuksen ylimmässä kerroksessa sijaitsee näyttävä kokous- ja neuvottelukeskus Sky Lounge, jossa on mahdollista järjestää jopa 40 hengen tilaisuuksia yritysjuhlista tärkeisiin neuvotteluihin ja virkistäviin saunailtoihin.
Alun perin nimityksellä Autotalo on tarkoitettu vain ko. korttelin eteläisellä puoliskolla olevaa liiketaloa kaksine torneineen, mutta nykyisin koko korttelia nimitetään usein Autotaloksi tai Autotalokortteliksi. Kaikkiaan korttelissa on neljä tornia, joiden julkisivut ovat kuitenkin eri materiaalia.
Korttelin pohjoisosassa sijaitsee kaksi samoihin aikoihin rakennettua, samantyyppistä liiketaloa torneineen ja mataline jalustamaisine osineen. Niistä läntisemmän, Runeberginkadun ja Eteläisen Rautatiekadun risteyksessä sijaitsevan vuonna 1958 valmistuneen Pohjantalon, suunnitteli Armas Lehtinen, ja se oli alun perin vakuutusyhtiö Pohja-yhtymän toimitalo. Vuonna 1962 valmistunut Kampintorni katolla pyörivine Mercedes-Benz- tunnuksineen sijaitsee Fredrikinkadun ja Eteläisen Rautatiekadun risteyksessä, osoitteessa Fredrikinkatu 48, ja sen on suunnitellut Risto-Veikko Luukkonen. Myös Pohjantalo ja Kampintorni ovat rakennusajalleen tyypillisiä esimerkkejä modernismista.
Kampin Autotalokortteli on yksi Kampin maamerkeistä ja se sijaitsee näkyvällä paikalla aivan Kampin kauppakeskuksen vieressä. Kohteeseen on erinomaiset julkiset kulkuyhteydet metrolla, raitiovaunulla ja busseilla. Yksityisautoille on maanalaista pysäköintitilaa korttelin omassa autohallissa, jonne on suora hissiyhteys toimistokerroksista, pysäköintipaikat vuokraa Europark. Autohallissa on myös Autojen pesupalvelu. Pyöräilijöille löytyy mm. pyöräparkki, suihku- ja saunatilat.
Vapautuu
Kysy
Rakennusvuosi
1958
Kerros
1
Ota yhteyttä
Juhola Asset Management Oy
Itsehallintokuja 4 02600 Espoo
Näytä puhelinnumero
040 4551 390
Leena Juhola
Pyydä lisätietoa
