Vuokrataan toimistotilat - Helsinki
Kaivokatu 10, Keskusta, 00100 Helsinki #10791299
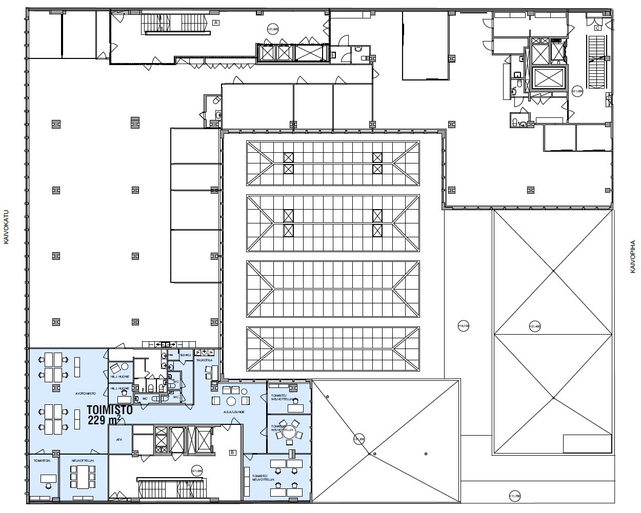
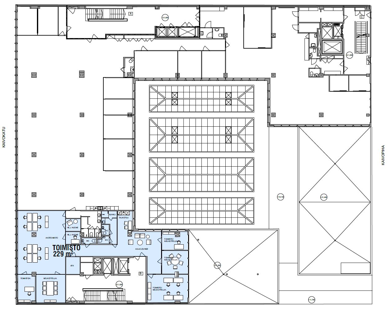
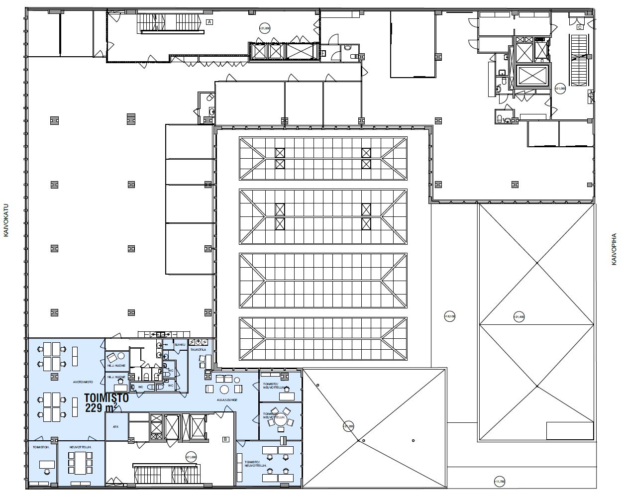
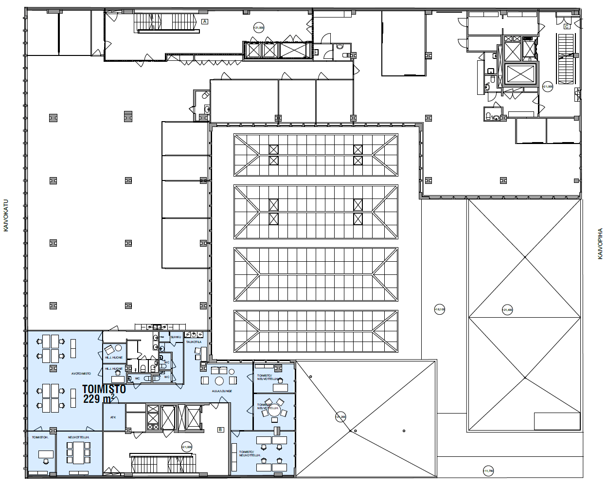
Tämä kuudennen kerroksen toimisto tarjoaa tehokkaat puitteet työskentelylle erinomaisella sijainnilla. Tässä monitilatoimistossa on erikokoisia työ- ja neuvotteluhuoneita, joissa onnistuu tehokas työskentely niin yksin kuin tiimin kanssa. Työhuoneita täydentävät avoin tila sekä sosiaalitilat. Ota meihin yhteyttä niin kerromme lisää tilasta!
Arkkitehti Pauli Salomaan suunnittelema Kaivotalo valmistui tyylisuuntansa malliesimerkiksi vuonna 1955. Kaivotalon ensimmäisessä ja toisessa kerroksessa sijaitsee liiketiloja, ylemmät kerrokset toimivat toimistotiloina. Upeat näköalat kertovat sijainnin parhaat puolet - kulkuyhteydet rakennukseen ovat Helsingin parhaat ja alueen palvelut loistavat.
Tässä olet lähellä kaikkea ja tähän on tasapuolisen helppoa tulla ihan kaikista suunnista – metro itään ja länteen, junat läheltä ja kaukaa, lentokentältäkin.
Croisette on uusi ja innovatiivinen toimitilojen välitysyritys Suomessa. Meillä on vahva halu auttaa teitä löytämään paras toimitilaratkaisu mahdollisimman vaivattomasti.
Huomaathan, että kaikki vapaat ja vapautuvat tilat ovat kauttamme saatavilla. Osa tiloista on hiljaisessa markkinoinnissa, mutta ottamalla meihin yhteyttä saat nekin tietoosi.
Palvelumme on tilanhakijoille täysin maksutonta.
Hissi
Croisette Real Estate Partner
Erottajankatu 5 A 6, 00130 Helsinki
Näytä puhelinnumero
+358 400 585 857
Croisette Vuokraus
Näytä puhelinnumero
+358400585857
