Vuokrataan liiketilat - Kuopio
Kauppakeskus Sektori, Puijonkatu 23, 70110 Kuopio #10791130
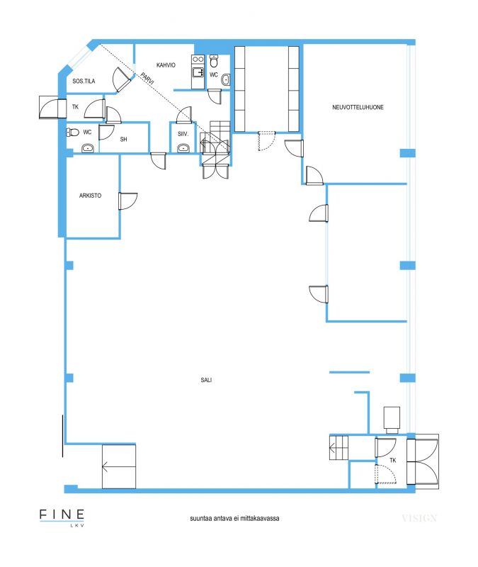
Kauppakeskus Sektorin 1. kerroksesta katutasosta vuokrattavissa tyylikäs ja hyväkuntoinen liiketila. Liiketilassa on valoisa neuvottelutila, 3 huonetta ja erillisiä työpisteitä sekä keittiö ja sosiaalitiloja. Viereisessä on suosittu Ramin Konditoria, esim. yksi sisäänkäynti on suoraan aulasta tähän tilaan. Tila vapautuu 30.9.
Sektorin vieressä on vilkas Kuopion tori ja sekä kauppakeskus Vihtori. Sektorissa on myös oma parkkihalli. Ja yhdyskäytävä muihin kauppakeskuksiin torin alla. Kellarikerroksen autohallia operoi erillinen yhtiö.
Ota yhteyttä ja käydään katsomassa liiketilaa. Soita 0505417349 Minna Moisio.
Puustjärven Kello ja Kulta
Itä-Suomen Yliopiston Apteekki
Ramin Konditoria & Leipomo
Oral hammaslääkärit
Dentaalipalvelu
Henkan Sauna
Kartveli Georgialainen Perheleipomo
Rose-Bud Kirjakauppa
Katutasossa
Näkyvällä paikalla
Hissi

Fine LKV
Minna Moisio
Toimitilavuokraus, LKV
Näytä puhelinnumero
0505417349
minna@finelkv.fi
Leväsentie 2, 70700 Kuopio
Yliopistonkatu 28, 40100 Jyväskylä
Toimin kaupallisena managerina ja toimitilavuokraajana, otathan yhteyttä jos mietit mahdollisia muutostöitä tai esillä olevista toimitiloista ei löydy sitä mitä etsit. Selvitetään muut tila mahdollisuudet. Asiakaslähtöisyys on minulle tärkeää sekä asioiden sujuvuus. Ota yhteyttä, mielelläni autan sinua.