Vuokrataan toimistotilat - Helsinki
Elimäenkatu 9A, Vallila, 00510 Helsinki #10790988
Huikea mahdollisuus - persoonallinen ja upea Penthouse-toimistotila kattoikkunoin Kravattitehtaan seitsemännessä kerroksessa. Kattoikkunat ja todella korkea ja ilmava huonekorkeus.
Tästä näyttävä tila hyvinkin kohtuullisella vuokratasolla!
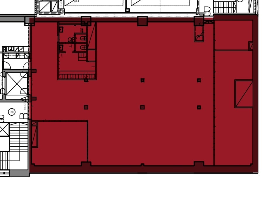
Vuonna 1929 Helsingin Kutomo ja Kravatti Oy:n upouusi pääkonttori ja tuotantolaitos – Kravattitehdas - valmistui Elimäenkadulle Vallilaan. Tämä 379,5-neliöinen tila sijaitsee Kravattitehtaan vanhimmassa osassa (9A).
Kravattitehtaalla on aulapalveluiden ja ihanan lounasravintolan lisäksi käyttäjien vuokrattavissa yhteensä seitsemän erikokoista neuvottelutilaa, pysäköintipaikkoja, sosiaalitilat sekä pyöräparkki. Kuivatushuonekin vaatteille löytyy jos tulet pyörällä tai juosten.
Croisette on uusi ja innovatiivinen toimitilojen välitysyritys Suomessa. Meillä on vahva halu auttaa teitä löytämään paras toimitilaratkaisu mahdollisimman vaivattomasti.
Huomaathan, että kaikki vapaat ja vapautuvat tilat ovat kauttamme saatavilla. Osa tiloista on hiljaisessa markkinoinnissa, mutta ottamalla meihin yhteyttä saat nekin tietoosi.
Palvelumme on tilanhakijoille täysin maksutonta.
Hissi
Croisette Real Estate Partner
Erottajankatu 5 A 6, 00130 Helsinki
Näytä puhelinnumero
+358 400 585 857
Croisette Vuokraus
Näytä puhelinnumero
+358400585857
