Vuokrataan toimistotilat - Helsinki
Runeberginkatu 5, Helsinki, Suomi, Kamppi, 00100 Helsinki #10790779
Autotalokorttelin Runskivuori-toimistotalo sijaitsee näyttävällä paikalla Kampissa.
Osoite
Runeberginkatu 5, Helsinki, Suomi, 00100 Helsinki
Tilatyyppi
Toimistotilaa
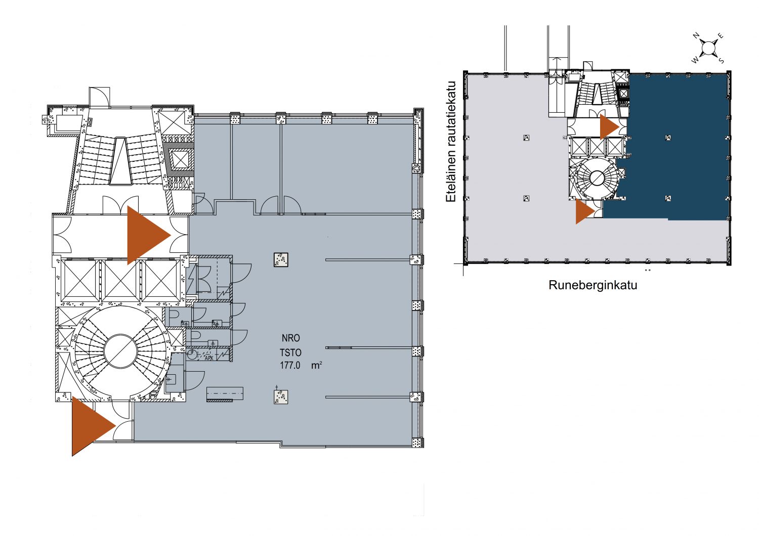
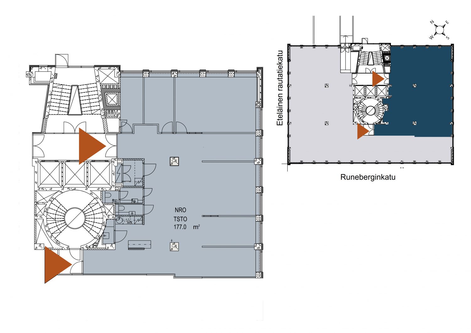
177 m2
Kiinteistö
Helsingin Runeberginkatu 5
Ympäristö
Metroasema: 100 m, Raitiovaunupysäkki: 200 m, Juna-asema: 800 m, Bussipysäkki: alle 100 m, Lentoasema: 19,4 km
Kulkuyhteydet
Valokuitu
Muuta
Ihana muuttovalmis toimisto keskellä Kamppia, avotilaa ja huoneita. Vapautuu sopimuksen mukaan. Tule ja tutustu.
Toimistokerroksista on hissiyhteys autohalliin. Pyöräilijöille pyöräparkit ja suihkutilat. Kiinteistössä on jäähdytys puhallinkonvektoreilla.
Kiinteistössä on tehty julkisivun ja yleisten tilojen kunnostustöitä kunnioittaen talon henkeä ja arkkitehtuuria.
Autohallipaikat 220 / 260 €/kk+alv (autopaikan sijainnista riippuen)
Autotalokorttelin Runskivuori-toimistotalo sijaitsee näyttävällä paikalla Kampissa.
Toimistokerroksista on hissiyhteys autohalliin. Pyöräilijöille pyöräparkit ja suihkutilat. Kiinteistössä on jäähdytys puhallinkonvektoreilla.
Kiinteistössä on tehty julkisivun ja yleisten tilojen kunnostustöitä kunnioittaen talon henkeä ja arkkitehtuuria.
Autohallipaikat 220 / 260 €/kk+alv (autopaikan sijainnista riippuen)
Autotalokorttelin Runskivuori-toimistotalo sijaitsee näyttävällä paikalla Kampissa.
Vapautuu
Kysy
Rakennusvuosi
1958
Kerros
5
Energiatehokkuusluokka
E2007
Ota yhteyttä
LähiTapiola Kiinteistövarainhoito Oy
Heli Jalonen
Vuokrauspäällikkö
Näytä puhelinnumero
040 823 3490
Pyydä lisätietoa
