Vuokrataan toimistotilat, varastotilat - Helsinki
Hankasuontie 9, Konala, 00390 Helsinki #10790756
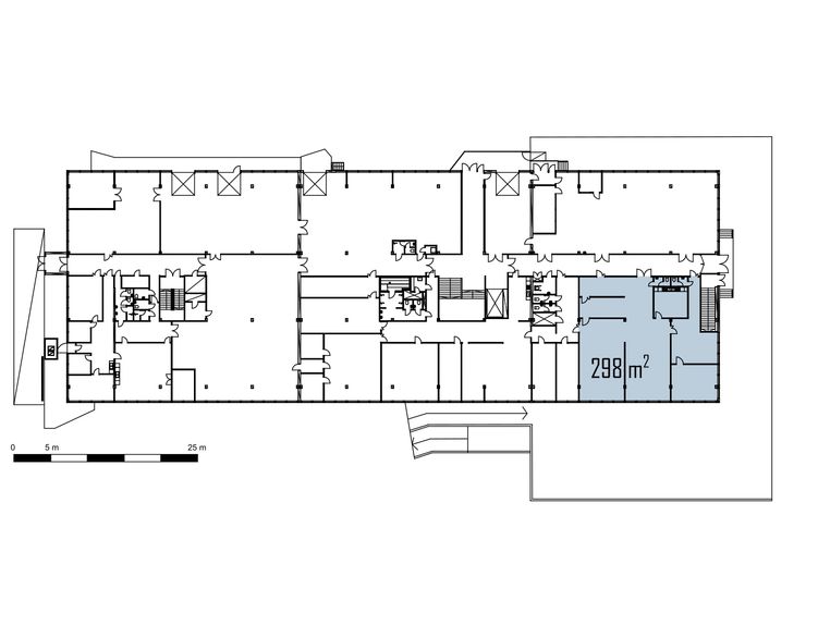
Vuokrattavana katutason toimisto-/varastotilaa.
Osoite
Hankasuontie 9, 00390 Helsinki
Tilatyyppi
Toimistotilaa
152 m2
Varastotilaa
146 m2
Yhteensä
298 m2
Kiinteistö
Vuokrattavana katutason toimisto-/varastotilaa, jossa on keittiö ja wc:t. Toimiston osuus on noin 152 m² ja varaston 146 m².
Sijainti
Konala, Helsinki
Pysäköinti
Kiinteistön yhteydessä autohalli sekä pihapaikkoja.
Palvelut
Lähialueen palvelut.
Kulkuyhteydet
-Bussi
-Oma auto
-Oma auto
Vapautuu
Heti
Kerros
1
Energiatehokkuusluokka
Ei lain edellyttämää energiatodistusta
Katutasossa
Näkyvällä paikalla
Lastauslaituri
Ota yhteyttä
REALIUM OY LKV
Tammasaarenkatu 1, 00180 Helsinki
Vaihde:
Näytä puhelinnumero
010 326 346
Tuomo Mäkelä
tuomo.makela@realium.fi
p.
Näytä puhelinnumero
044 050 1158
Joel Keto
joel.keto@realium.fi
p.
Näytä puhelinnumero
045 317 0330
KAIKKI TILAVAIHTOEHDOT KERRALLA!
SOITA - MEILAA JA TILAA NÄYTTÖ!
Ilmainen palvelu tilanhakijoille.
Kartoitamme parhaat tilavaihtoehdot.
Kaikki kohteet eivät ole netissä.
Pyydä lisätietoa
