Vuokrataan toimistotilat - Helsinki
Urho kekkosen katu 3-7, Kamppi, 00100 Helsinki #10790743
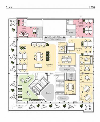
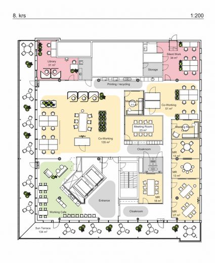
Laadukas 580 m2 toimisto paraatipaikalla aivan Kampin sydämessä. Hyväkuntoiset tilat ovat muuttovalmiit, mutta tarvittaessa voidaan tehdä muutoksia juuri teidän tarpeisiinne. Tila sijaitsee Kampintornissa, 8. kerroksessa. Tilan yhteydessä on isot terassit, joista avautuu näkymät ympäri Kamppia.
Urhontorni on osa Kampin kauppakeskuksen yhteydessä sijaitsevaa Trigoraa. Torneista on suora yhteys kauppakeskukseen, joten kattavat palvelut, ravintolamaailma, kaupat, julkiset kulkuvälineet ja parkkihallit välittömässä läheisyydessä
Lisätiedot: 020 7290 710, lisää kohteita www.premises.fi
Kohteella ei ole lain edellyttämää energiatodistusta.Kerros: 8
Raitiovaunu 100m
Bussipysäkki 100m
Rautatieasema 700m
Lentoasema 19,9km
CRE PREMISES
Puh. Näytä puhelinnumero 020 7290 710
Vantaankoskentie 14
01670 VANTAA
