Vuokrataan tuotantotilat - Helsinki
Hämeentie 103, Hermanni, 00550 Helsinki #10790660
Siistikuntoista tuotanto- ja toimistotilaa, tilaan on tavarahissiyhteys lastausalueelta.
Osoite
Hämeentie 103, 00550 Helsinki
Tilatyyppi
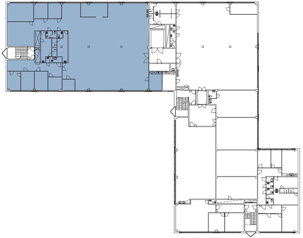
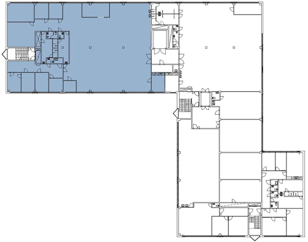
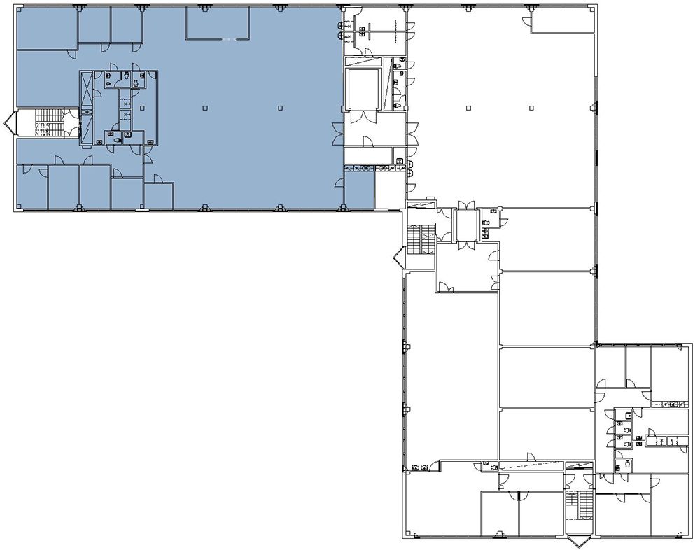
Tuotantotilaa
581 m2
Pohjapiirros
Kiinteistö
Helsingin Vallilassa, erinomaisten kulkuyhteyksien ja palvelujen äärellä sijaitsevaa tuotanto- ja toimistotilaa.
Kauppakeskus Arabia palveluineen on noin viiden minuutin ajomatkan päässä. Hämeentien kivijalkamyymälät ja ravintolat ovat naapurustossa.
Kauppakeskus Arabia palveluineen on noin viiden minuutin ajomatkan päässä. Hämeentien kivijalkamyymälät ja ravintolat ovat naapurustossa.
Sijainti
Bussit ja raitiovaunut ovat pienen kävelymatkan päässä Hämeentiellä.
Kiinteistön pihassa on yhteensä 40 vuokrattavaa autopaikkaa. Kadunvarsipysäköinti esim. yritystunnuksella.
Kiinteistön pihassa on yhteensä 40 vuokrattavaa autopaikkaa. Kadunvarsipysäköinti esim. yritystunnuksella.
Pysäköinti
Autopaikat kiinteistön pihassa
Palvelut
Kauppakeskus Arabian palvelut, Hämeentien kivijalkamyymälät ja -ravintolat.
Kulkuyhteydet
Lähimmälle bussipysäkille 100 m
Lähimmälle metroasemalle 1,5 km
Lähimmälle raitiovaunupysäkille 100 m
Lentokentälle 20 min
Lähimmälle metroasemalle 1,5 km
Lähimmälle raitiovaunupysäkille 100 m
Lentokentälle 20 min
Vapautuu
Kysy
Rakennusvuosi
1952
Kerros
2
Energiatehokkuusluokka
C/F2018
Ympäristöluokitus
RESB Global Sector Leader 2025
Ota yhteyttä
Sponda Oy
Yrjönkatu 29C, 00100 Helsinki
Näytä puhelinnumero
020 43131
Anna Puhtila
Senior Manager, Value Add Portfolio
Näytä puhelinnumero
+358 50 407 9601
Sponda Oy
https://www.sponda.fiPyydä lisätietoa
