Vuokrataan liiketilat - Helsinki
Simonkatu 6, 00100 Helsinki #10790480
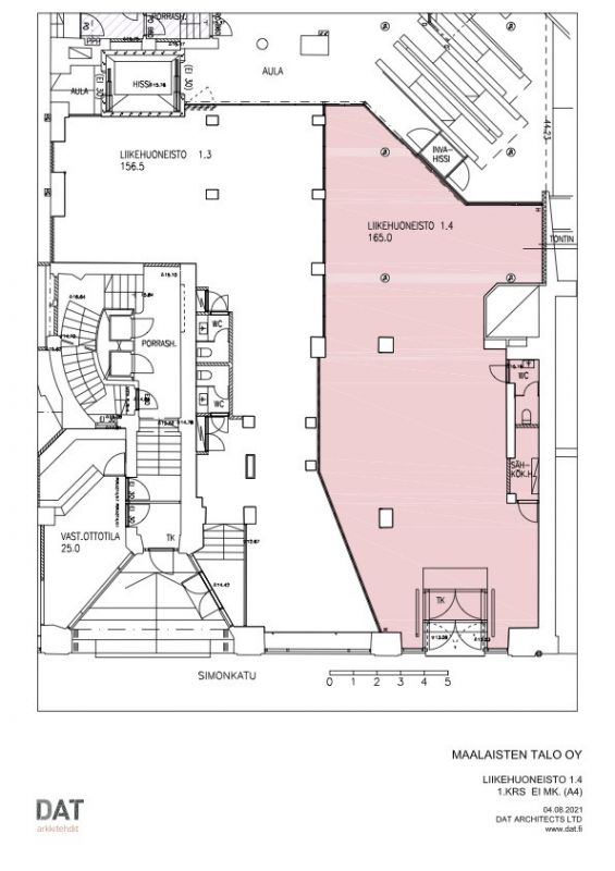
Forumissa katutason liiketilaa, sisäänkäynti Simonkadulta ja Forumista. Tila on yhdistettävissä viereiseen 156,5m2 liiketilaan jolloin koko pinta-ala on 321,5m2.
Tila on vapaa.
Kysy lisätietoja mika.tilli@rhg.fi
Osoite
Simonkatu 6, 00100 Helsinki
Tilatyyppi
Liiketilaa
165 - 321,5 m2
Vapautuu
Kysy
Huoneiden lukumäärä
1
Energiatehokkuusluokka
Ei lain edellyttämää energiatodistusta
Ota yhteyttä
RHG Real Estate
Hämeenkatu 2 B20, 20500 Turku
Näytä puhelinnumero
020 734 4020
Mika Tilli
Välittäjä, LKV
Näytä puhelinnumero
0407013005
Pyydä lisätietoa
