Vuokrataan toimistotilat - Espoo
Revontulentie 7, Tapiola, 02100 Espoo #10790403
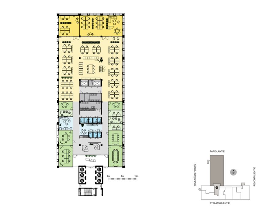
Vuokrataan edustavaa ja modernia toimistotilaa Tapiolan Helmestä. Valoisasta toimistosta ikkunat kolmeen eri suuntaan.Tilassa avotoimistoa, kokoushuoneita ja pienempiä vetäytymistiloja, sekä näyttävä keittiö ja lounge-alue. Tilaa on mahdollista muokata seuraavan käyttäjän tarpeisiin sopivaksi. Mahdollista rakentaa esim. työhuoneita tilaan lisää.
Tapiolan Helmessä on monipuoliset palvelut talon vuokralaisille. Kuten 17 metriä pitkä uima-allas ja saunatilat ovat vuokralaisten vapaasti käytettävissä. Talossa on lämmin ja lukittu pyöräparkki. Talon pohjakerroksessa sijaitsee kuntosali, sekä 140m2 liikuntasali. Uudistettu lounasravintola, sekä kahvila. Aulapalvelut ja kokousmaailma, jossa on erikokoisia neuvottelutiloja, sekä 110 hengen auditorio ja kaksi koulutustilaa, jotka on mitoitettu 58 henkilölle.
Pihalla vieraspaikkoja ja talossa oma pysäköintihalli. 400 metrin päässä sijaitsee kauppakeskus Ainoa ja Tapiolan metro-aema. Ainoasta saatavilla myös pysäköintipaikkoja.
Lisätietoja soita 020 730 4530 tai info@repoint.fi. Palvelumme on tilanhakijalle ilmainen.
Repoint Toimitilat Oy
Itälahdenkatu 22 B, 00210 Helsinki
Näytä puhelinnumero
020 730 4530
Lisätietoja soita Näytä puhelinnumero 020 730 4530 tai info@repoint.fi
https://repoint.fi/