Vuokrataan toimistotilat - Tampere
Hatanpäänkatu 1, 33900 Tampere #10790381
Vuokrattavana Tampereen keskustan kupeessa avaraa, valoisaa, modernia toimistotilaa.
Osoite
Hatanpäänkatu 1, 33900 Tampere
Tilatyyppi
Toimistotilaa
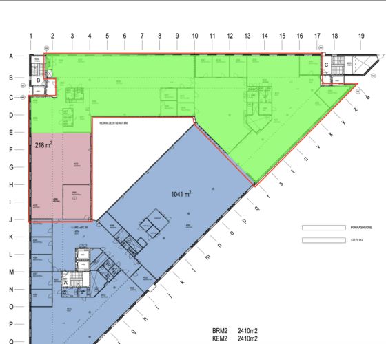
1200 m2
Kiinteistö
Vuokrattavana Tampereen keskustan kupeessa avaraa, valoisaa, modernia toimistotilaa. Tilasta löytyy avotila, työhuoneet, neuvottelutilat, oma keittiö ja wc:t.
Sijainti
Tampere, Keskusta.
Pysäköinti
Autopaikkoja on saatavissa hyvin kiinteistön hallista sekä pihasta.
Palvelut
-Aulapalvelu
-Catering
-Neuvottelu- ja edustustiloja
-Catering
-Neuvottelu- ja edustustiloja
Kulkuyhteydet
-Juna
-Bussi
-Oma auto
-Bussi
-Oma auto
Vapautuu
Heti
Kerros
4
Energiatehokkuusluokka
Ei lain edellyttämää energiatodistusta
Näkyvällä paikalla
Hissi
Ota yhteyttä
REALIUM OY LKV
Tammasaarenkatu 1, 00180 Helsinki
Vaihde:
Näytä puhelinnumero
010 326 346
Tuomo Mäkelä
tuomo.makela@realium.fi
p.
Näytä puhelinnumero
044 050 1158
Joel Keto
joel.keto@realium.fi
p.
Näytä puhelinnumero
045 317 0330
KAIKKI TILAVAIHTOEHDOT KERRALLA!
SOITA - MEILAA JA TILAA NÄYTTÖ!
Ilmainen palvelu tilanhakijoille.
Kartoitamme parhaat tilavaihtoehdot.
Kaikki kohteet eivät ole netissä.
Pyydä lisätietoa
