Vuokrataan toimistotilat, varastotilat, työtilat - Vantaa
Niittytie 13, Koivuhaka, 01300 Vantaa #10790332
Korjaamo-/tuotantotilaa hyvien yhteyksien varrelta Koivuhaasta. Toimitilassa on omat sosiaali- ja varastotilat. Tila ei sovellu autokorjaamo- tai autopesulaksi.
Toimitilassa on 2 nosto-ovea sekä öljynerotuskaivo ja pakokaasunpoisto valmiina.
Osoite
Niittytie 13, 01300 Vantaa
Tilatyyppi
Toimistotilaa
145 m2
Varastotilaa
70 m2
Työtilaa
70 m2
Yhteensä
215 m2
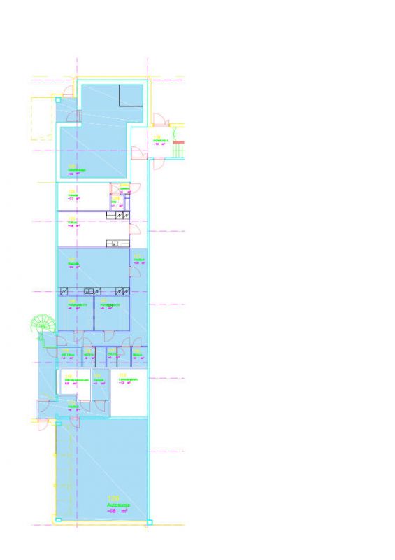
Pohjapiirros
Kiinteistö
Korjaamohalli (n. 70 m²) kahdella nosto-ovella ja sen lisäksi reilut sosiaali- ja varastotilat. Korjaamossa öljynerotuskaivo ja pakokaasunpoisto valmiina.
Tila ei sovellu autokorjaamo- tai autopesulaksi.
Autojen ehostus voisi tulla kyseeseen, koska parkkitilaa
kohteessa on rajallisesti.
Tila ei sovellu autokorjaamo- tai autopesulaksi.
Autojen ehostus voisi tulla kyseeseen, koska parkkitilaa
kohteessa on rajallisesti.
Sijainti
Koivuhaka sijaitsee Tikkurilan ja lentoaseman välissä ja isot tiet, Tuusulanväylä ja Kehä III, ovat vieressä.
Vapautuu
Heti
Energiatehokkuusluokka
Ei lain edellyttämää energiatodistusta
Katutasossa
Näkyvällä paikalla
Ota yhteyttä
Pyydä lisätietoa
