Vuokrataan toimistotilat - Helsinki
Kaarlenkatu 9-11, Kallio, 00530 Helsinki #10790290
Laadukasta toimistotilaa Helsingin Kalliosta
Osoite
Kaarlenkatu 9-11, 00530 Helsinki
Tilatyyppi
Toimistotilaa
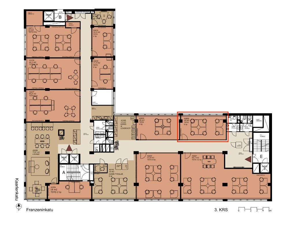
28 m2
Pysäköinti
Hallissa
Muuta
Vuokrattavana laadukas 28 m² toimistotila Helsingin Kallion ytimessä, Kaarlenkatu 9-11 (K9) kiinteistössä.
Tämä 3. kerroksen kompakti toimistotila tarjoaa erinomaisen sijainnin, hyvien julkisten liikenneyhteyksien varrella, sillä Kaarlenkadun ratikkapysäkki on aivan rakennuksen edessä.
K9-kiinteistö koostuu kolmesta rakennuksesta, joista nuorimmat on rakennettu vuosina 1972 ja 1947. Kiinteistö tarjoaa kattavat toimistorakennuksen palvelut, kuten aulapalvelu, edustustilat, kuntosalin, lounasravintolan, saunan, sosiaalitilat ja vuokrattavat neuvotteluhuoneet.
Keittiötilat on uusittu vuonna 2020, ja wc-tilat uudistetaan vuonna 2024. 3. ja 4. kerroksista löytyy erikokoisia toimistotiloja, jotka palvelevat erinomaisesti eri tarpeita.
Tervetuloa tutustumaan, varaathan välittäjältä oman esittelyaikasi. Voit kysyä meiltä myös muita sopivia vaihtoehtoja, kauttamme löydät juuri Teidän tarpeisiinne sopivat tilat.
Palvelumme on tilanhakijalle veloitukseton!
Tämä 3. kerroksen kompakti toimistotila tarjoaa erinomaisen sijainnin, hyvien julkisten liikenneyhteyksien varrella, sillä Kaarlenkadun ratikkapysäkki on aivan rakennuksen edessä.
K9-kiinteistö koostuu kolmesta rakennuksesta, joista nuorimmat on rakennettu vuosina 1972 ja 1947. Kiinteistö tarjoaa kattavat toimistorakennuksen palvelut, kuten aulapalvelu, edustustilat, kuntosalin, lounasravintolan, saunan, sosiaalitilat ja vuokrattavat neuvotteluhuoneet.
Keittiötilat on uusittu vuonna 2020, ja wc-tilat uudistetaan vuonna 2024. 3. ja 4. kerroksista löytyy erikokoisia toimistotiloja, jotka palvelevat erinomaisesti eri tarpeita.
Tervetuloa tutustumaan, varaathan välittäjältä oman esittelyaikasi. Voit kysyä meiltä myös muita sopivia vaihtoehtoja, kauttamme löydät juuri Teidän tarpeisiinne sopivat tilat.
Palvelumme on tilanhakijalle veloitukseton!
Vapautuu
Kysy
Rakennusvuosi
1972
Kerros
3
Ota yhteyttä
Tuloskiinteistöt Oy
Rikhardinkatu 2 B 5, 00130 Helsinki
Näytä puhelinnumero
(09) 6841 620
Jorma Ryynänen
Commercial Real Estate Advisor LKV, LVV
Näytä puhelinnumero
+358 40 708 4064
Otto Ahtola
Commercial Real Estate Advisor
Näytä puhelinnumero
+358 40 042 2830
Pyydä lisätietoa
