Vuokrataan varastotilat - Helsinki
Pulttitie 16, Roihupelto, 00880 Helsinki #10790143
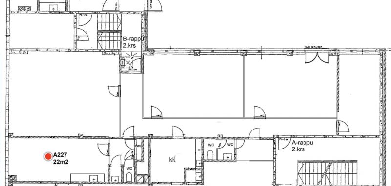
Edullinen toisen kerroksen 22 m² varasto Roihupellossa.
Osoite
Pulttitie 16, 00880 Helsinki
Tilatyyppi
Varastotilaa
22 m2
Pohjapiirros
Virtuaaliesittely
Kiinteistö
Yhteiskäytössä olevat keittiö- ja wc-tilat.
Metroasema 700 m, Bussipysäkki 100 m, Juna-asema 4,9 km, Lentoasema 12,6 km
Vapautuu
Heti
Kerros
2
Energiatehokkuusluokka
Ei lain edellyttämää energiatodistusta
Ota yhteyttä
ScanReal Oy LKV
Opus Business Park
Hitsaajankatu 24
00810 Helsinki
info@scanreal.fi
Puh:
Näytä puhelinnumero
020 730 8830
Sopivat toimitilat yhdellä otolla!
Kartoitamme toimitilatarpeesi ja etsimme yrityksellesi parhaiten sopivat vapaat toimitilat. Koska vuokranantajat maksavat palvelumme, on tämä yrityksellesi veloituksetonta.
OTA YHTEYTTÄ - SOVI NÄYTTÖ!
Kaikki kohteemme eivät ole netissä, kerro tilatarpeesi niin kartoitamme vaihtoehdot.
Palvelumme on tilanhakijalle ilmainen
Pyydä lisätietoa
