Vuokrataan toimistotilat - Helsinki
Elimäenkatu 30 - Kumpulantie 15, Vallila, 00520 Helsinki #10790117
Vallilan Kumpulantiellä sijaitsevat toimistotilat ovat viihtyisiä, teollisuushenkisiä ja hiljattain uudistettuja.
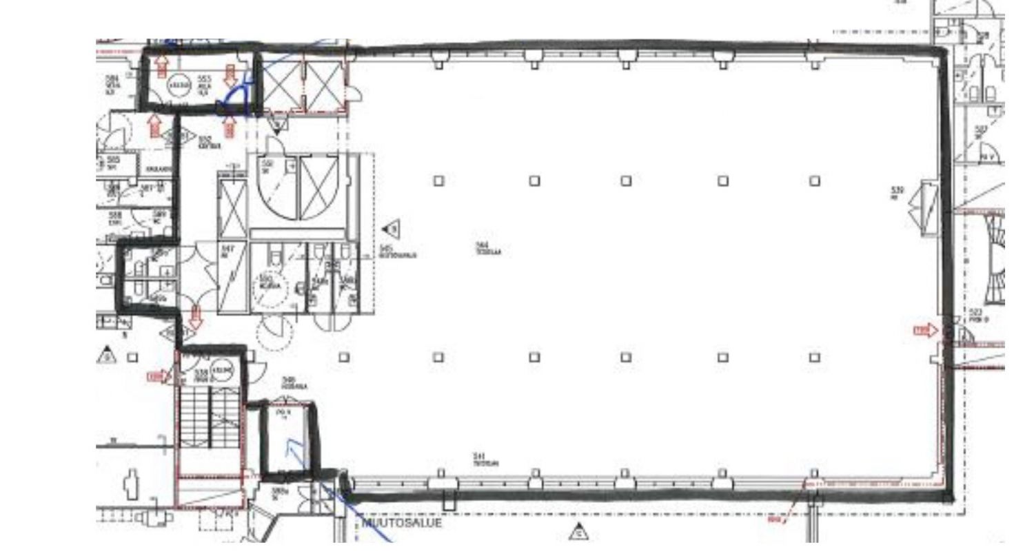
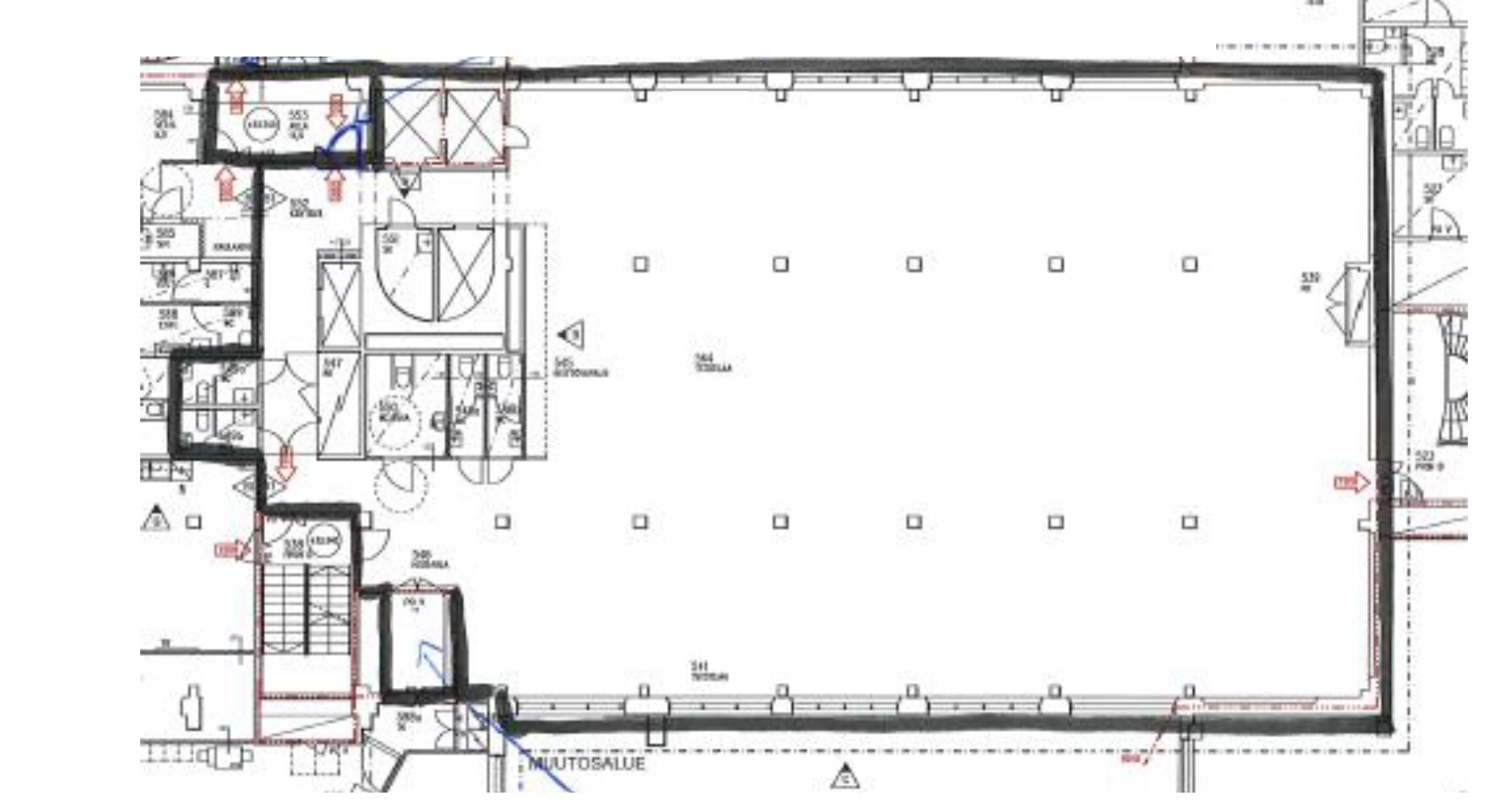
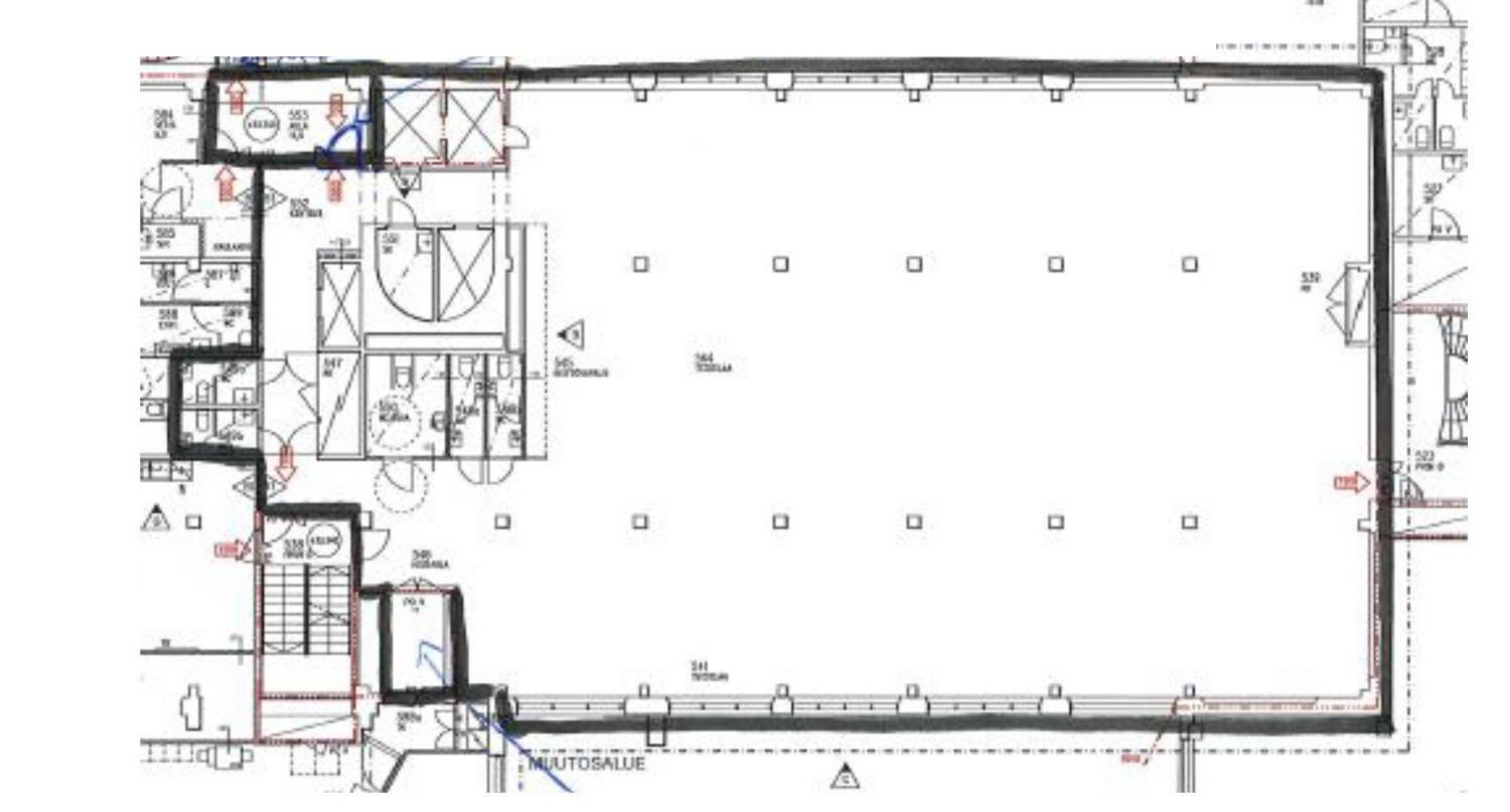
Tarjolla aitoa teollisuushenkistä toimistotilaa ylhäällä kiinteistön viidennessä kerroksessa yhteensä 519 m2. Tila on purettu raakapinnoille vessoja lukuun ottamatta joten tässä on täydellinen mahdollisuus suunnitella tähän teille toimivin toimisto Vallilan ytimessä.
Kiinteistö sijaitsee kehittyvällä alueella, johon Helsinki panostaa lähitulevaisuudessa paljon. Jo nyt alue muodostaa merkittävän liiketoiminnan keskittymän. Kiinteistöstä on loistavat kulkuyhteydet keskustaan ja Pasilan juna-asemalle.
Croisette on uusi ja innovatiivinen toimitilojen välitysyritys Suomessa. Meillä on vahva halu auttaa teitä löytämään paras toimitilaratkaisu mahdollisimman vaivattomasti.
Huomaathan, että kaikki vapaat ja vapautuvat tilat ovat kauttamme saatavilla. Osa tiloista on hiljaisessa markkinoinnissa, mutta ottamalla meihin yhteyttä saat nekin tietoosi.
Palvelumme on tilanhakijoille täysin maksutonta.
Croisette Real Estate Partner
Erottajankatu 5 A 6, 00130 Helsinki
Näytä puhelinnumero
+358 400 585 857
Croisette Vuokraus
Näytä puhelinnumero
+358400585857
