Vuokrataan toimistotilat - Helsinki
Kaivokatu 1, Keskusta, 00100 Helsinki #10790031
Kun toimistoa ja sen sijainti nykyään valitaan on raideliikenteen läheisyys ja helppo saavutettavuus tärkeitä valinnan kriteereitä. Miltä kuulostaisi toimistotila Suomen vilkkaimmassa rakennuksessa aivan Helsingin sydämessä johon niin junat kuin metrotkin tulevat suoraan? Samoin lentoasemalta ja maakunnista puksuttaa toimistolle suoraan.
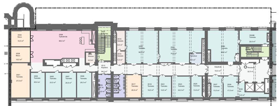
Tässäpä se sitten voisi olla? Avara, yli 700-neliöinen tila, joka tarjoaa toimivat puitteet suuren toimiston tarpeisiin omine työhuoneineen ja lukuisine neuvotteluhuoneineen – aseman urbaanilla twistillä. Sen lukuisista Eliel Saarisen suunnittelemista kaari-ikkunoista avautuu näkymät laiturialueelta Elielinaukiolle ja aina Postitalon kautta Helsingin keskustaan. Tila on muuttovalmis sellaisenaan, mutta myös remontoitavissa pintoja ja huonejakoa myöten asiakkaan tarpeiden mukaisesti.
Päärautatieasema tarjoaa historiallisen miljöön, jonka tilat henkivät menneisyyden arvokkuutta. Arkkitehti Eliel Saarisen suunnittelema 100-vuotias Päärautatieasema on ikoninen rakennus, joka on jokaiselle tuttu. Kulkuyhteydet eivät tästä enää parane ja matkaa pääsee taittamaan junalla, bussilla, metrolla tai raitiovaunulla aivan oven edestä. Mikäli arvostat keskeistä sijaintia ja mahdollisuutta liikkua eri kulkuvälineillä helposti ympäri pääkaupunkiseutua sekä maakuntia, on Päärautatieasema oikea valinta. Tule tutustumaan ja ihastu!
Croisette on uusi ja innovatiivinen toimitilojen välitysyritys Suomessa. Meillä on vahva halu auttaa teitä löytämään paras toimitilaratkaisu mahdollisimman vaivattomasti.
Huomaathan, että kaikki vapaat ja vapautuvat tilat ovat kauttamme saatavilla. Osa tiloista on hiljaisessa markkinoinnissa, mutta ottamalla meihin yhteyttä saat nekin tietoosi.
Palvelumme on tilanhakijoille täysin maksutonta.
Hissi
Croisette Real Estate Partner
Erottajankatu 5 A 6, 00130 Helsinki
Näytä puhelinnumero
+358 400 585 857
Croisette Vuokraus
Näytä puhelinnumero
+358400585857
