Vuokrataan toimistotilat - Helsinki
Pasilanraitio 5, Pasila, 00240 Helsinki #10790020
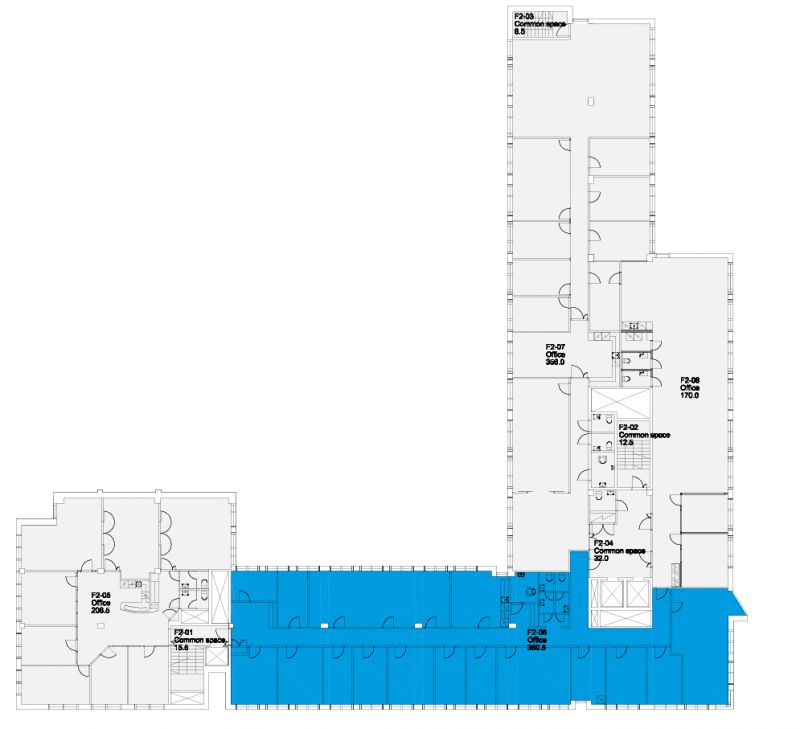
Vuokrattavana hyväkuntoinen, siisti, tehokas ja jäähdytetty toimistotila.
Osoite
Pasilanraitio 5, 00240 Helsinki
Tilatyyppi
Toimistotilaa
373,5 m2
Tilajako
Jaettavissa
Kiinteistö
Vuokrattavana hyväkuntoinen, siisti, tehokas ja jäähdytetty toimistotila erinomaisten kulkuyhteyksien päässä Länsi-Pasilassa. Tilassa on työhuonetta, avotyötila ja tiimihuone/neuvottelutila.
Sijainti
Pasila, Helsinki
Pysäköinti
Autopaikkoja on vuokrattavissa kiinteistön alakerrassa olevasta autotallista sekä Länsi-Pasilan Autopaikat Oy:n pysäköintihallista.
Palvelut
-Vuokrattavia neuvottelutiloja
-Saunaosasto
-Kuntosali
-Kellarikerroksessa pienvarastotilaa
-Saunaosasto
-Kuntosali
-Kellarikerroksessa pienvarastotilaa
Kulkuyhteydet
- Raitiovaunupysäkki 100 m
- Bussipysäkki 200 m
- Juna-asema 400 m
- Bussipysäkki 200 m
- Juna-asema 400 m
Vapautuu
Heti
Kerros
2
Energiatehokkuusluokka
Ei lain edellyttämää energiatodistusta
Näkyvällä paikalla
Jaettavissa
Hissi
Ota yhteyttä
REALIUM OY LKV
Tammasaarenkatu 1, 00180 Helsinki
Vaihde:
Näytä puhelinnumero
010 326 346
Tuomo Mäkelä
tuomo.makela@realium.fi
p.
Näytä puhelinnumero
044 050 1158
Joel Keto
joel.keto@realium.fi
p.
Näytä puhelinnumero
045 317 0330
KAIKKI TILAVAIHTOEHDOT KERRALLA!
SOITA - MEILAA JA TILAA NÄYTTÖ!
Ilmainen palvelu tilanhakijoille.
Kartoitamme parhaat tilavaihtoehdot.
Kaikki kohteet eivät ole netissä.
Pyydä lisätietoa
