Myydään tuotantotilat, varastotilat - Jyväskylä
Ratavarrentie 9, Korpilahti, 41800 Jyväskylä #10789983
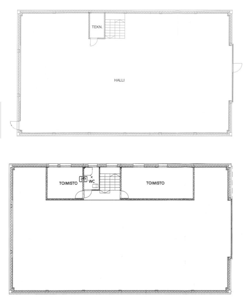
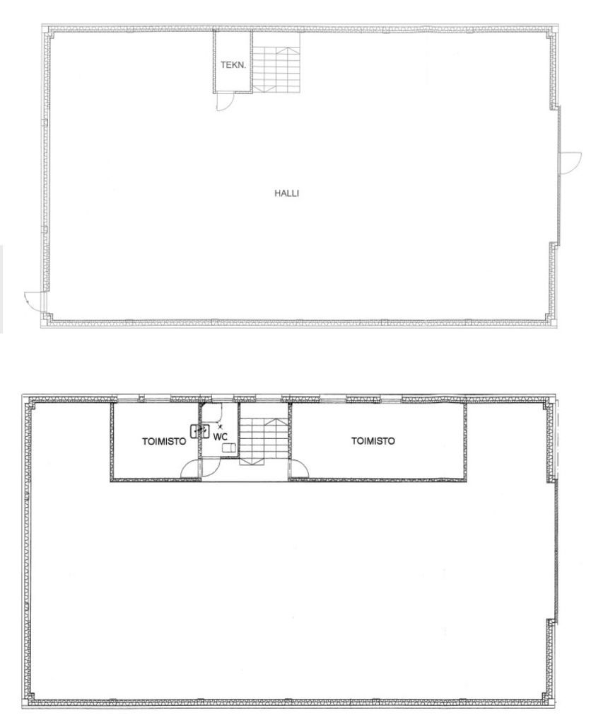
Maalämpöhalli 340m² omalla tontilla Korpilahdella
Kerroksia rakennuksessa on 1.
Lämmitysmuoto on maalämpö.
Habita Finland Oy
Hannikaisenkatu 10 , 40100 Jyväskylä
Näytä puhelinnumero
010 585 5250
Seppo Saastamoinen
Näytä puhelinnumero
+358 50 4200263
## Kiinteistönvälitystä Jyväskylässä ja Keski-Suomessa
Tervetuloa keskustelemaan kaikista kodin vaihtamiseen liittyvistä asioista asiantuntevien ja myyntihenkisten välittäjiemme kanssa. Katsotaan yhdessä kuinka voit saada avullamme asunnostasi parhaan mahdollisen hinnan. Meille tärkeää on tehdä asiat ensitapaamisesta alkaen oikein ja tarjota asiakkaillemme laadukasta ja tehokasta palvelua on kyseessä sitten kiinteistön, huoneiston, loma-asunnon tai toimitilan myynti, osto tai vuokraus.
## Myytävät asunnot Jyväskylässä
Meillä on osaamista alkaen pienimmistä asunnoista ja mökeistä aina suuriin kiinteistökokonaisuuksiin, toimitiloihin sekä myös erityisesti uudistuotantoon. Koulutetut ja kokeneet välittäjämme auttavat sinua asuntokaupan kaikissa vaiheissa.
## Asunnon hinta-arviointi
Saat meiltä ilmaisen hinta-arvion myytävästä kiinteistöstä sekä ammattitaitoisen kiinteistönvälittäjän avuksi kiinteistönvälitykseen.
## Asunnon myynti tehokkaasti
Habitan välittäjät toimivat yhteistyössä mainostaen myytäviä asuntoja potentiaalisille ostajille.
Habita markkinoi myytäviä asuntoja myös kattavan asiakasrekisterinsä kautta, jossa tuhannet etsivät uutta asuntoa. Takaamme asunnon tehokkaan markkinoinnin sekä aktiivisen kiinteistön esittelyn. Kiinteistönvälittäjät hoitavat myös kaikki tarvittavat dokumentit asuntokauppaa varten.
