Vuokrataan toimistotilat - Helsinki
Pursimiehenkatu 26-30, Punavuori, 00150 Helsinki #10789953
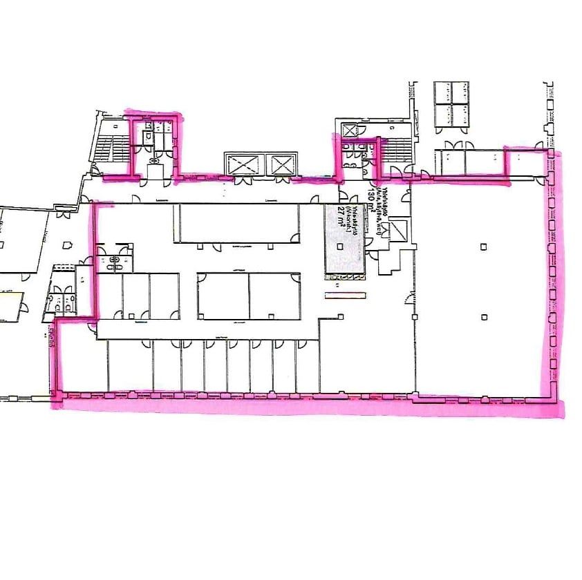
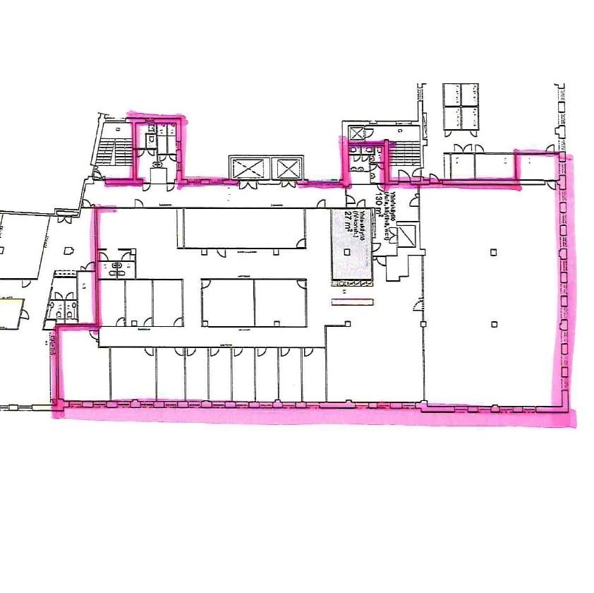
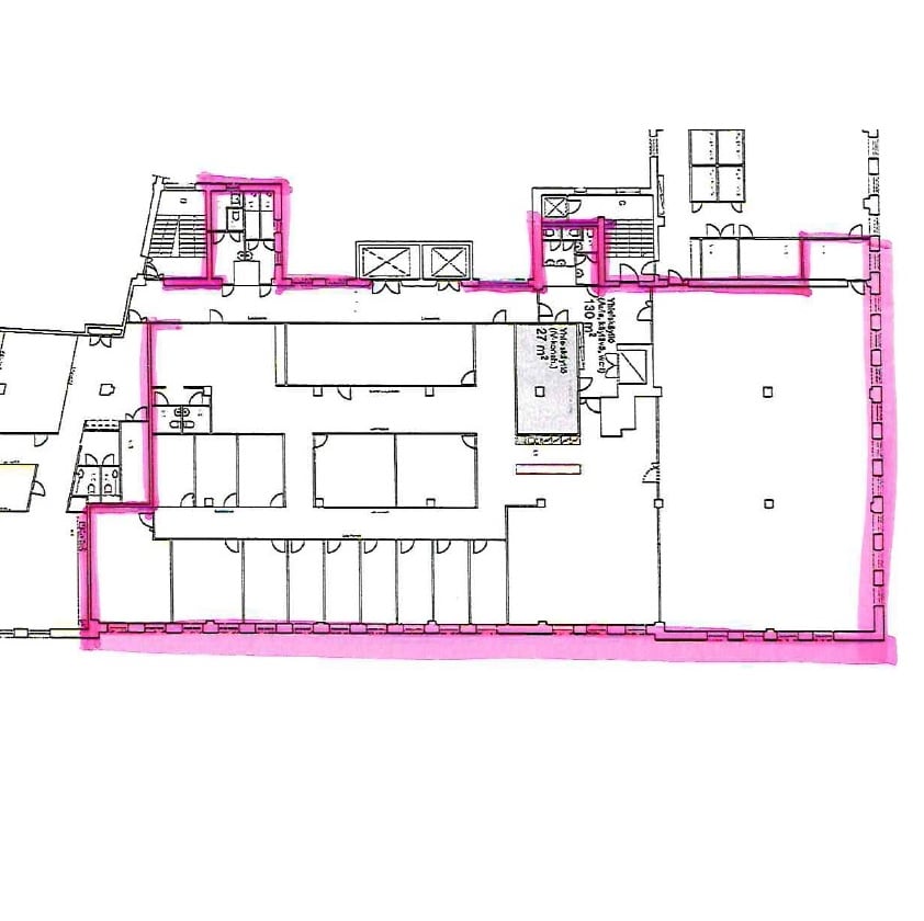
Nyt vuokrattavissa toimitilaa historiallisen Mestaritalon neljännestä kerroksesta. Tilasta löytyy niin pieniä tiloja vetäytymisiin, palavereihin ja Teamseihin kuin avoimempaa tilaa työntekemiseen.
Lisäksi tilasta löytyy huikea huonekorkeus ja kolme sisäänkäyntiä. sekä tavarahissi. Valokuituyhteys varmistaa että bitti liikkuu vilkkaasti ja koneellinen ilmanvaihto sen että työskentelyolosuhteet ovat aina miellyttävät.
Mestaritalon kiinteistö sijaitsee Punavuoressa ja talo täyttää koko korttelin. Kiinteistöä rajaavat kadut ovat Tehtaankatu, Perämiehenkatu, Pursimiehenkatu ja Telakkakatu. Nykyisen rakennuksen vanhimmat osat ovat vuodelta 1898 ja rakennus sai nykyisen hahmonsa vuoteen 1943 mennessä. Nykyään rakennus on trendikäs toimistotalo, jossa toimii monia mainos-, arkkitehti- ja mediatoimistoja.
Me Croisettella autamme teitä löytämään teille parhaat tilat! Olemme puolueettomia asiantuntijoita ja tunnemme toimitilamarkkinat, talot sekä tilat vankalla kokemuksella. Meillä on välityksessä kaikki toimitilat ja tiedämme niiden alustavat vuokratasot.
Tehtävämme on tehdä toimitilahaustanne onnistunutta ja helppoa. Saamme palkkiomme kiinteistönomistajalta, joten sinulle palvelumme on täysin maksuton. Jos kiinnostuit, ota yhteyttä sähköpostitse osoitteeseen vuokraus@croisette.fi tai soita numeroon +358 4 00585857.
Hissi
Croisette Real Estate Partner
Erottajankatu 5 A 6, 00130 Helsinki
Näytä puhelinnumero
+358 400 585 857
Croisette Vuokraus
Näytä puhelinnumero
+358400585857
