Vuokrataan toimistotilat, tuotantotilat, varastotilat, työtilat - Helsinki
Sorvaajankatu 11 A, Herttoniemi, 00880 Helsinki #10789942
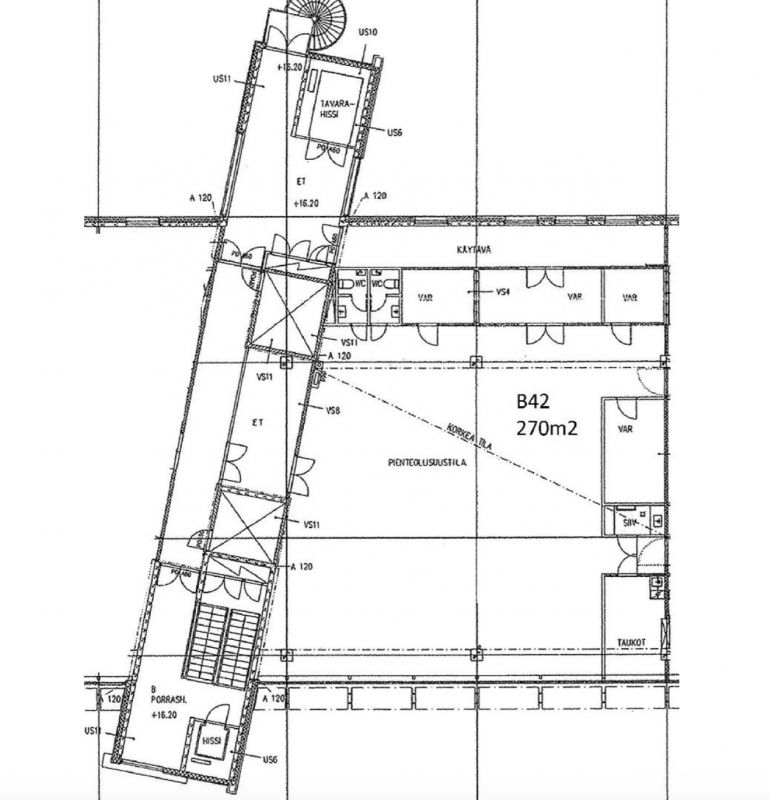
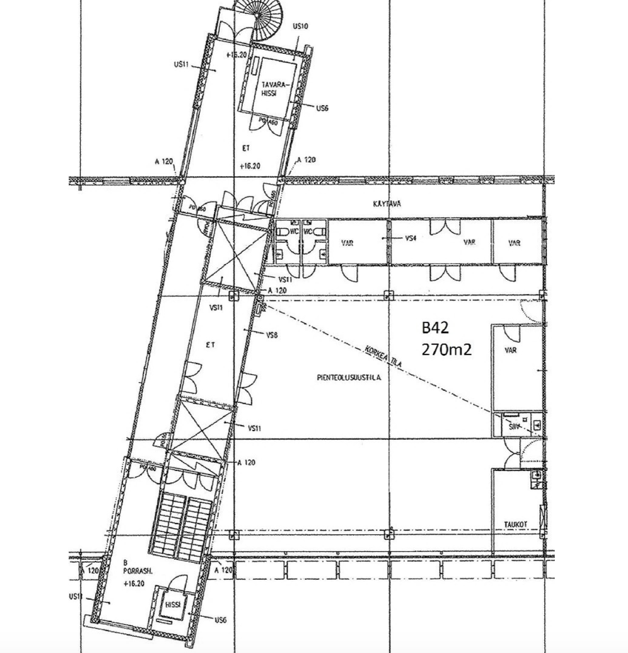
Monikäyttöistä, kohtuuhintaista toimitilaa hyvien kulkuyhteyksien varrella Herttoniemessä. Soveltuu työ-, varasto- tai toimistotilaksi.
- Voimavirta
- Lastauslaituri
- Tavara- ja henkilöhissit
- Pysäköintitilaa autohallissa, kadulla vapaa pysäköinti
- Kauppakeskus Megahertsin matkaa 700 m, useita lounasravintoloita kilometrin säteellä
Bussipysäkki alle 100 m, Itäväylä 800 m, Herttoniemen metroasema 800 m, Siilitien metroasema 1,5 km
Hissi
Lastauslaituri
ScanReal Oy LKV
Opus Business Park
Hitsaajankatu 24
00810 Helsinki
info@scanreal.fi
Puh:
Näytä puhelinnumero
020 730 8830
Sopivat toimitilat yhdellä otolla!
Kartoitamme toimitilatarpeesi ja etsimme yrityksellesi parhaiten sopivat vapaat toimitilat. Koska vuokranantajat maksavat palvelumme, on tämä yrityksellesi veloituksetonta.
OTA YHTEYTTÄ - SOVI NÄYTTÖ!
Kaikki kohteemme eivät ole netissä, kerro tilatarpeesi niin kartoitamme vaihtoehdot.
Palvelumme on tilanhakijalle ilmainen
