Vuokrataan toimistotilat - Helsinki
Kuortaneenkatu 5, Vallila, 00520 Helsinki #10789790
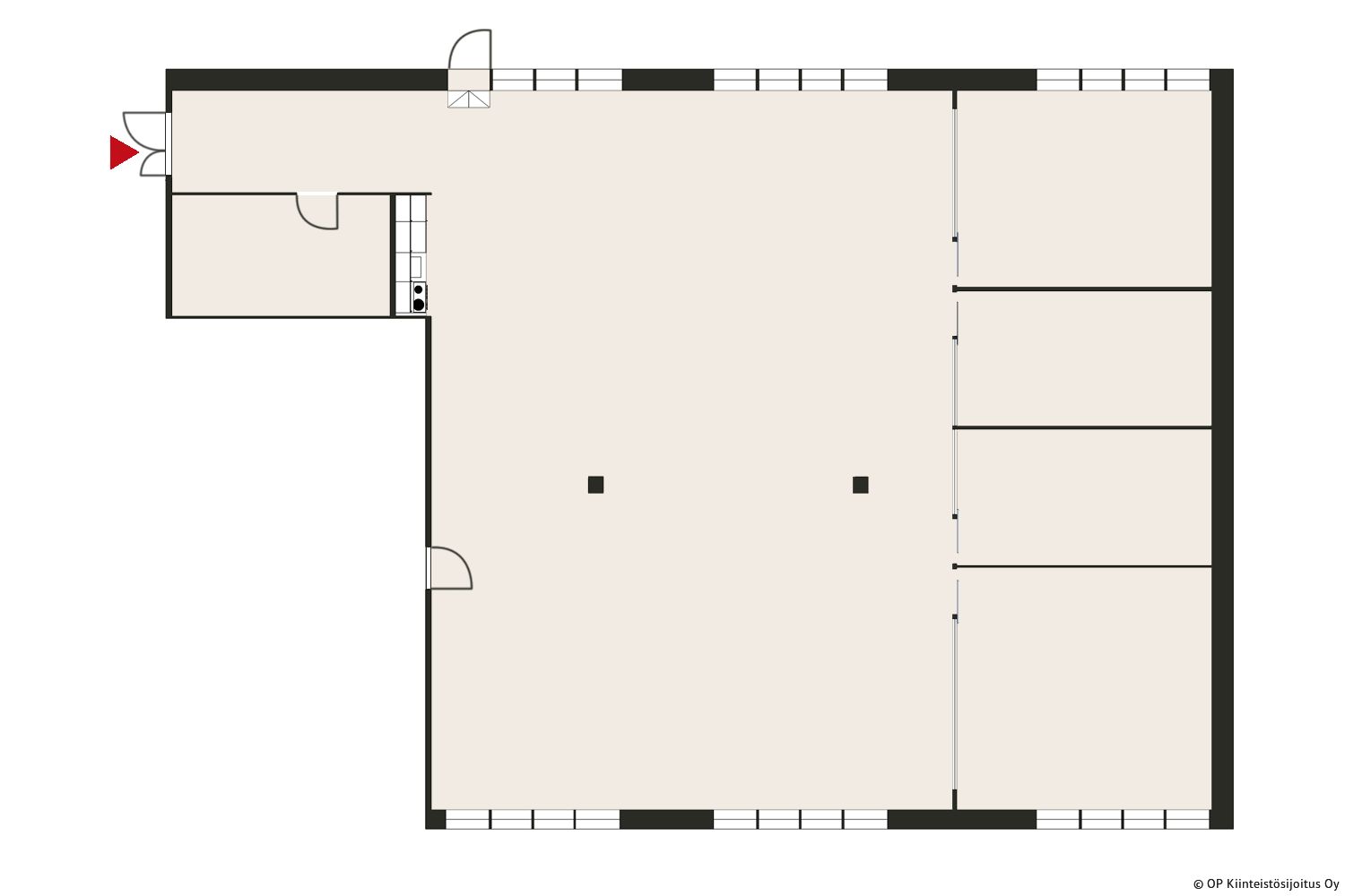
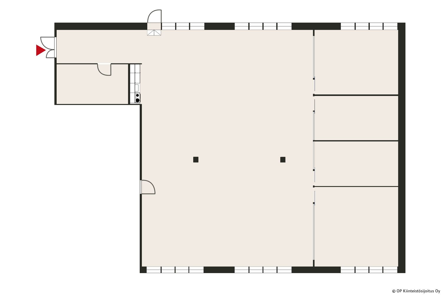
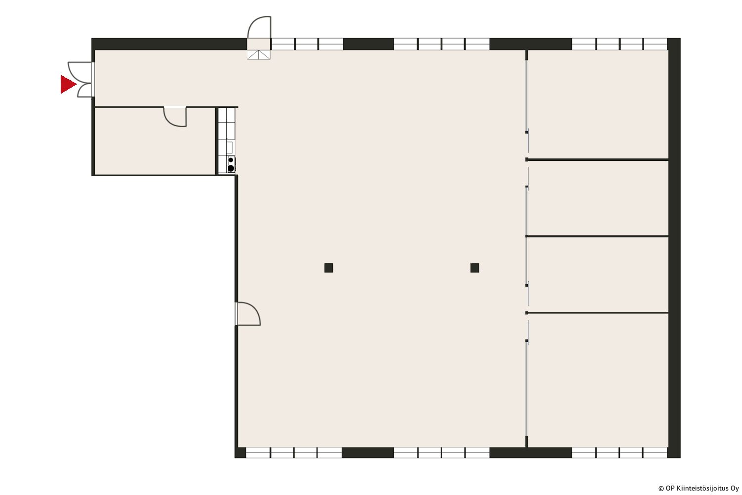
Neljännen kerroksen hyväkuntoinen ja moderni toimitila industrial-henkisestä Tekosilkkikutomosta. Tilassa avotilan lisäksi toimistohuoneita, keittiö sekä isot ikkunat Kuortaneenkadulle ja sisäpihalle. Kerroksessa yhteiskäyttöiset wc-tilat. Kohde sijaitsee hyvien kulkuyhteyksien varrella Vallilassa, alle kilometrin päässä Pasilan asemasta ja Mall of Triplan palveluista. Kysy lisää!
OP Kiinteistösijoitus Oy
Gebhardinaukio 1, 00510 Helsinki
Näytä puhelinnumero
010 252 7275
Jaan Laakkonen
Näytä puhelinnumero
050 597 8101
OP Kiinteistösijoitus Oy on OP Ryhmään kuuluva, kiinteistövarallisuuden hoitoon erikoistunut yritys. Edustamme vuokranantajan ominaisuudessa useita ryhmäämme kuuluvia tahoja. Lisäksi hallinnoimme kiinteistöpääomarahastojen kiinteistösijoituksia ja asiakkaidemme suoria kiinteistösijoituksia. Kiinteistövarallisuuden hoitajana olemme yksi Suomen suurimmista.
http://OP-toimitilat.fi