Videoesittely
Vuokrataan toimistotilat - Helsinki
Fabianinkatu 21, Kaartinkaupunki, 00130 Helsinki #10789744
Toimisto jossa on tehokasta tilankäyttöä. Esteettömät näkymät Kasarmitorille. Valoaukko keskellä huoneistoa luo ainutlaatuisen valaistuksen. Uudistettu sisäänkäynti historiaa huokuvassa rappukäytävässä.
Osoite
Fabianinkatu 21, 00130 Helsinki
Tilatyyppi
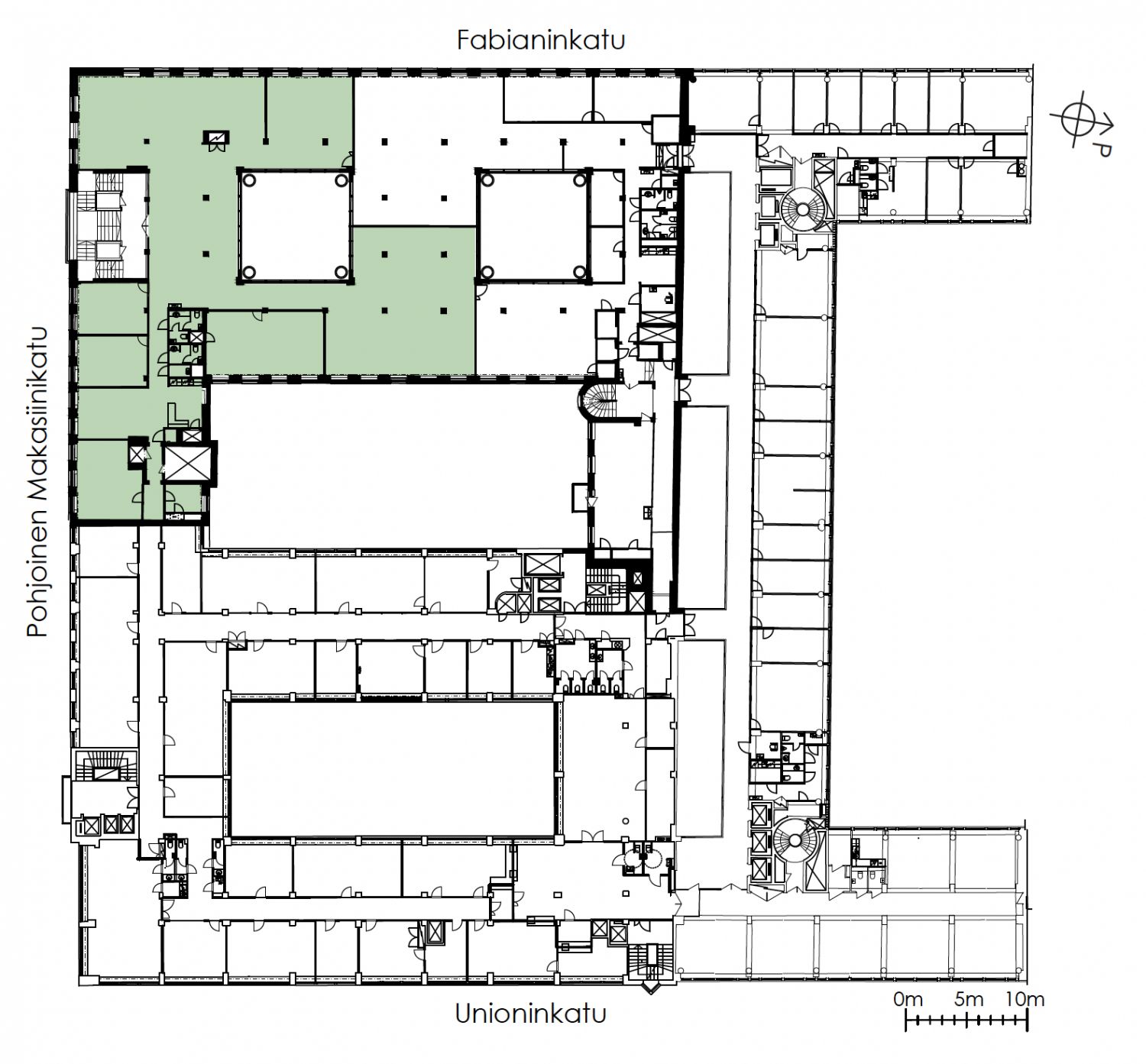
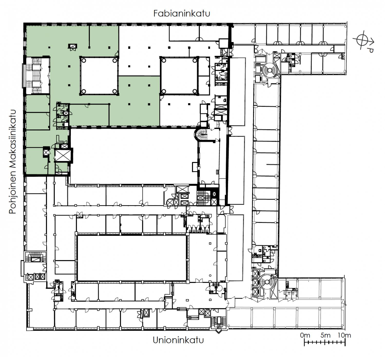
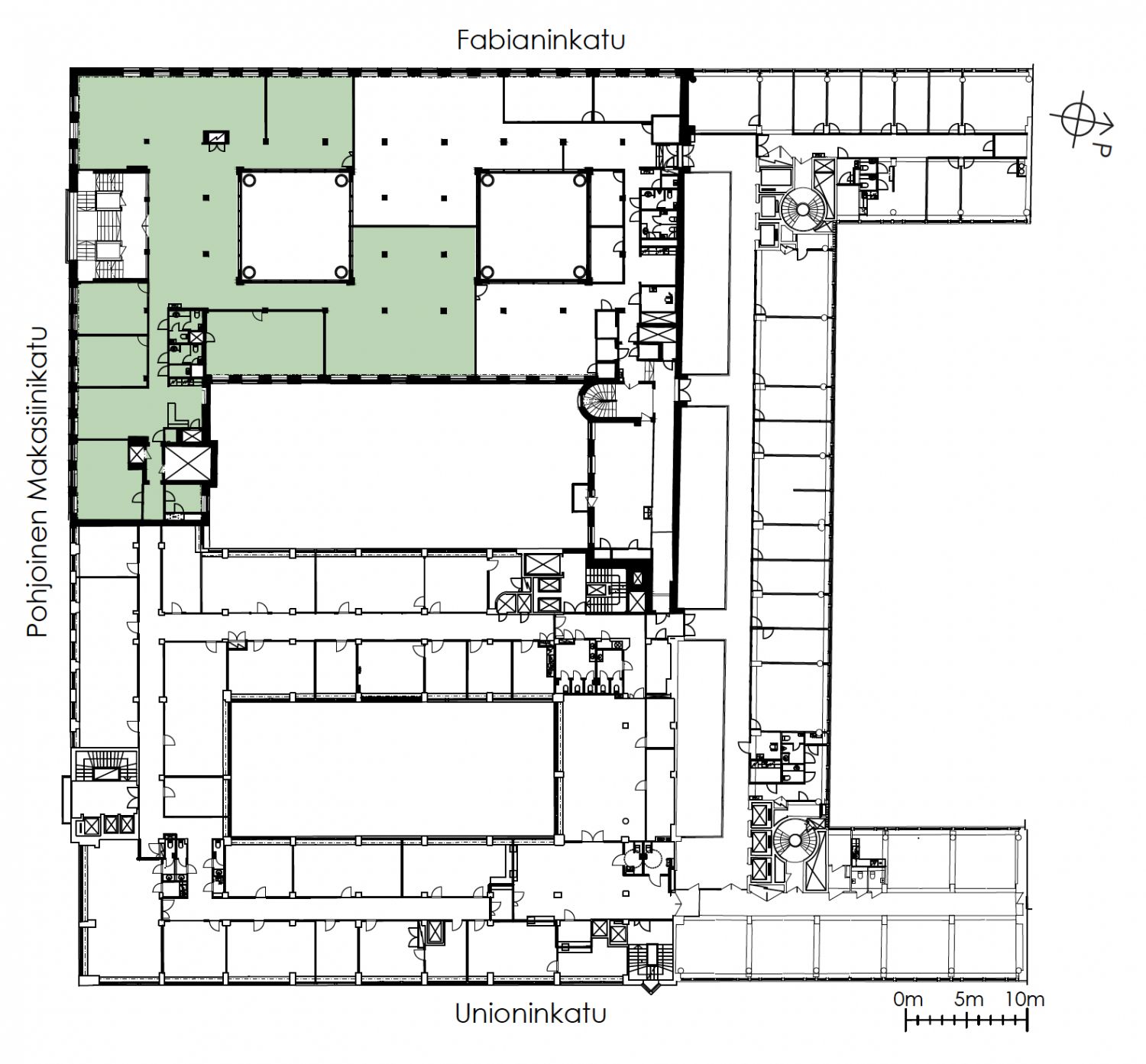
Toimistotilaa
628 m2
Pohjapiirros
Kiinteistö
Uudistunut Fabian 21 tarjoaa monipuoliset palvelut sekä modernit pääkonttoritason tai hybridityöhön soveltuvat tilat keskeisellä sijainnilla.
Talo on remontoitu kauttaaltaan ja samalla pääsisäänkäynti siirtyi Unioninkadun puolelta Fabianinkatu 21:een, johon valmistui edustava ja näyttävä aulatila.
Uudistuneet tilat tarjoavat henkilökunnallenne työhyvinvointia tukevan työympäristön, joka on muokattavissa toiveidenne mukaan noin 200 - 3000 neliön toimistoiksi.
Fabian 21 sijaitsee Kaartinkaupungin bisneskeskustan ytimessä. Lähellä ovat merenranta, puistot ja Vanha kauppahalli sekä alueen boutique-hotellit ja huippuravintolat. Kasarmitorilla on myös iso ruokakauppa ja posti. Edistyksellisiä toimitiloja historiaa huokuvissa, idyllisissä kortteleissa ja sivistyneen rennossa tunnelmassa. Kaartinkaupunki on uuden ja vanhan viehättävä sekoitus. Keskellä Helsinkiä, mutta omassa rauhassaan.
Katso Fabian 21 -video
Fabian 21:ssä vastuullisuus on keskeisessä roolissa. Tässä talossa käytetään 100-prosenttisesti uusiutuvaa energiaa, jota myös katolle asennettu aurinkovoimala tuottaa ja vähentää entisestään talon ympäristövaikutuksia. BREEAM In-Use Excellent -tason ympäristösertifikaatti kertoo talon sitoutumisesta kestävään kehitykseen.
Talo on remontoitu kauttaaltaan ja samalla pääsisäänkäynti siirtyi Unioninkadun puolelta Fabianinkatu 21:een, johon valmistui edustava ja näyttävä aulatila.
Uudistuneet tilat tarjoavat henkilökunnallenne työhyvinvointia tukevan työympäristön, joka on muokattavissa toiveidenne mukaan noin 200 - 3000 neliön toimistoiksi.
Fabian 21 sijaitsee Kaartinkaupungin bisneskeskustan ytimessä. Lähellä ovat merenranta, puistot ja Vanha kauppahalli sekä alueen boutique-hotellit ja huippuravintolat. Kasarmitorilla on myös iso ruokakauppa ja posti. Edistyksellisiä toimitiloja historiaa huokuvissa, idyllisissä kortteleissa ja sivistyneen rennossa tunnelmassa. Kaartinkaupunki on uuden ja vanhan viehättävä sekoitus. Keskellä Helsinkiä, mutta omassa rauhassaan.
Katso Fabian 21 -video
Fabian 21:ssä vastuullisuus on keskeisessä roolissa. Tässä talossa käytetään 100-prosenttisesti uusiutuvaa energiaa, jota myös katolle asennettu aurinkovoimala tuottaa ja vähentää entisestään talon ympäristövaikutuksia. BREEAM In-Use Excellent -tason ympäristösertifikaatti kertoo talon sitoutumisesta kestävään kehitykseen.
Sijainti
Fabian 21 sijaitsee Kauppatorin, Esplanadin sekä Kasarmitorin välittömässä läheisyydessä. Kulkuyhteydet ovat loistavat, sillä rautatie- ja Helsingin yliopiston metroasemalle on 600 metriä ja raitiovaunut kulkevat aivan läheltä.
Pysäköinti
Autohalli sekä Q-park Kasarmitori ja Erottaja
Palvelut
Kiinteistössä toimii ravintola Scolare sekä lounasravintola Bank. Tapahtumatalo Bankin kautta voi varata myös neuvottelutiloja ja järjestää tapahtumia. Työhyvinvointia tukee talossa toimiva Elixian kuntosali. Fabian 21:n erinomaiset julkiset kulkuyhteydet, pyöräparkit, talon oma kaupunkipyörä, sähköautojen latauspisteet ja uudistetut sosiaalitilat kannustavat talon käyttäjiä kestävään liikkumiseen.
Kulkuyhteydet
Lähimmälle bussipysäkille 100 m
Lähimmälle juna-asemalle 900 m
Lähimmälle metroasemalle 600 m
Lähimmälle raitiovaunupysäkille 150 m
Lentokentälle 25 min
Lähimmälle juna-asemalle 900 m
Lähimmälle metroasemalle 600 m
Lähimmälle raitiovaunupysäkille 150 m
Lentokentälle 25 min
Vapautuu
Kysy
Rakennusvuosi
1954
Kerros
5
Energiatehokkuusluokka
C/D2018
Ympäristöluokitus
BREEAM In-Use Excellent,RESB Global Sector Leader 2025
Ota yhteyttä
Sponda Oy
Yrjönkatu 29C, 00100 Helsinki
Näytä puhelinnumero
020 43131
Magnus Öster
Director, Leasing
Näytä puhelinnumero
+358 40 768 4926
Sponda Oy
https://www.sponda.fiPyydä lisätietoa
