Vuokrataan toimistotilat - Helsinki
Mannerheimintie 16, Kamppi, 00100 Helsinki #10789684
Täysin uudistettu toimistotila, joka soveltuu monitoimitilaksi. Hienot ikkunanäkymät Mannerheimintielle.
Osoite
Mannerheimintie 16, 00100 Helsinki
Tilatyyppi
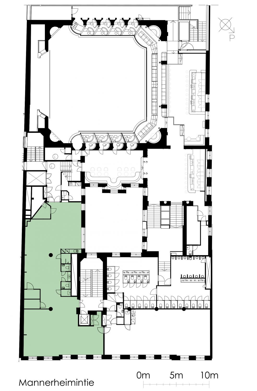
Toimistotilaa
203 m2
Pohjapiirros
Kiinteistö
Uusrenessanssia edustava, täysin uudistettu Mannerheimintie 16 tarjoaa uniikin bisnesympäristön Helsingin sydämessä. Historiaa kunnioittaen remontoitu arvotalo tarjoaa yrityksille modernit ja ainutlaatuiset toimitilat, joissa yhdistyvät historian viehätys ja nykypäivän ratkaisut.
Capitolin talona tunnettu toimitalo sijaitsee kaupungin parhaalla paikalla, tarjoten kiehtovat näkymät ja kattavat lähipalvelut. Talon suurin kerroskoko on noin 450 neliötä, ja sen tilat sopivat niin yhdelle kuin useammallekin käyttäjälle. Sijaintinsa ja rakenteensa ansiosta toimitilat soveltuvat loistavasti hybridityöhön.
Vuonna 1890 valmistuneessa, August Nordbergin suunnittelemassa arvotalossa on persoonallisia ja kiehtovia yksityiskohtia ja pitkän kulttuuriperinnön tuomaa arvokkuutta. Talon nimi juontuu aikanaan samassa korttelissa toimineesta elokuvateatteri Capitolista. Kiinteistön Yrjönkadun puoleinen osa valmistui vuonna 1908.
Talo on osa Forum-korttelia, jonka kaikille kiinteistöille on myönnetty BREEAM In-Use Excellent -tason ympäristösertifikaatti. BREEAM (Building Research Establishment Environmental Assessment Method) on kansainvälinen rakennusten ympäristöluokitusjärjestelmä, joka tähtää rakennuksen käytön ympäristövaikutusten vähentämiseen sekä terveellisempien työympäristöjen kehittämiseen. Forum-kortteli on myös täysin hiilineutraali käytön aikaisen energiankulutuksen osalta. Kiinteistössä on erinomaiset lajittelumahdollisuudet, ja talon oma ympäristökoordinaattori opastaa vuokralaisia lajitteluun ja muihin kestäviin käytäntöihin.
Capitolin talona tunnettu toimitalo sijaitsee kaupungin parhaalla paikalla, tarjoten kiehtovat näkymät ja kattavat lähipalvelut. Talon suurin kerroskoko on noin 450 neliötä, ja sen tilat sopivat niin yhdelle kuin useammallekin käyttäjälle. Sijaintinsa ja rakenteensa ansiosta toimitilat soveltuvat loistavasti hybridityöhön.
Vuonna 1890 valmistuneessa, August Nordbergin suunnittelemassa arvotalossa on persoonallisia ja kiehtovia yksityiskohtia ja pitkän kulttuuriperinnön tuomaa arvokkuutta. Talon nimi juontuu aikanaan samassa korttelissa toimineesta elokuvateatteri Capitolista. Kiinteistön Yrjönkadun puoleinen osa valmistui vuonna 1908.
Talo on osa Forum-korttelia, jonka kaikille kiinteistöille on myönnetty BREEAM In-Use Excellent -tason ympäristösertifikaatti. BREEAM (Building Research Establishment Environmental Assessment Method) on kansainvälinen rakennusten ympäristöluokitusjärjestelmä, joka tähtää rakennuksen käytön ympäristövaikutusten vähentämiseen sekä terveellisempien työympäristöjen kehittämiseen. Forum-kortteli on myös täysin hiilineutraali käytön aikaisen energiankulutuksen osalta. Kiinteistössä on erinomaiset lajittelumahdollisuudet, ja talon oma ympäristökoordinaattori opastaa vuokralaisia lajitteluun ja muihin kestäviin käytäntöihin.
Sijainti
Kiinteistö sijaitsee aivan Helsingin ydinkeskustassa. Bussit, raitiovaunut, junat ja metro ovat välittömässä läheisyydessä tai muutaman minuutin kävelymatkan päässä. Forum-kortteli on Helsingin vilkkaimpia läpikulkupaikkoja, ja sieltä on kulkutunneliyhteys muualle keskustaan, kuten päärautatieasemalle ja Kampin liikenneterminaaliin.
Pysäköinti
Forum-P
Palvelut
Forumin yhteisistä tiloista löytyvät pyöräparkki sekä suihku- ja sosiaalitilat. Ydinkeskustan isot kauppakeskukset, huippuravintolat, ostoskadut, boutique-hotellit, kokoustilat ja after work -kohteet palvelevat niin yritysten asiakkaita kuin henkilöstöäkin ja takaavat talon käyttäjille Suomen tasokkaimmat lähipalvelut.
Kulkuyhteydet
Lähimmälle bussipysäkille 300 m
Lähimmälle juna-asemalle 300 m
Lähimmälle metroasemalle 300 m
Lähimmälle raitiovaunupysäkille 100 m
Lentokentälle 30 min
Lähimmälle juna-asemalle 300 m
Lähimmälle metroasemalle 300 m
Lähimmälle raitiovaunupysäkille 100 m
Lentokentälle 30 min
Vapautuu
Kysy
Rakennusvuosi
1890
Kerros
2
Energiatehokkuusluokka
C2018
Ympäristöluokitus
BREEAM In-Use Excellent,GRESB Global Sector Leader 2025
Ota yhteyttä
Sponda Oy
Yrjönkatu 29C, 00100 Helsinki
Näytä puhelinnumero
020 43131
Harri Autio
Director, Leasing
Näytä puhelinnumero
+358 40 846 6560
Sponda Oy
https://www.sponda.fiPyydä lisätietoa
