Vuokrataan toimistotilat - Helsinki
Hämeentie 105, Hermanni, 00550 Helsinki #10789623
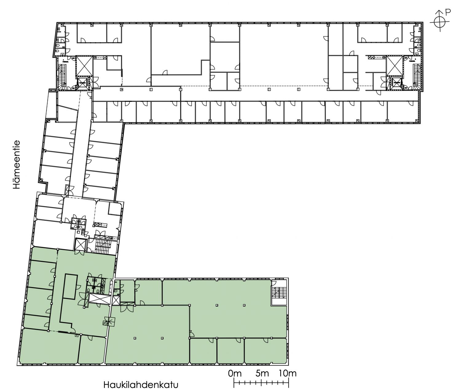
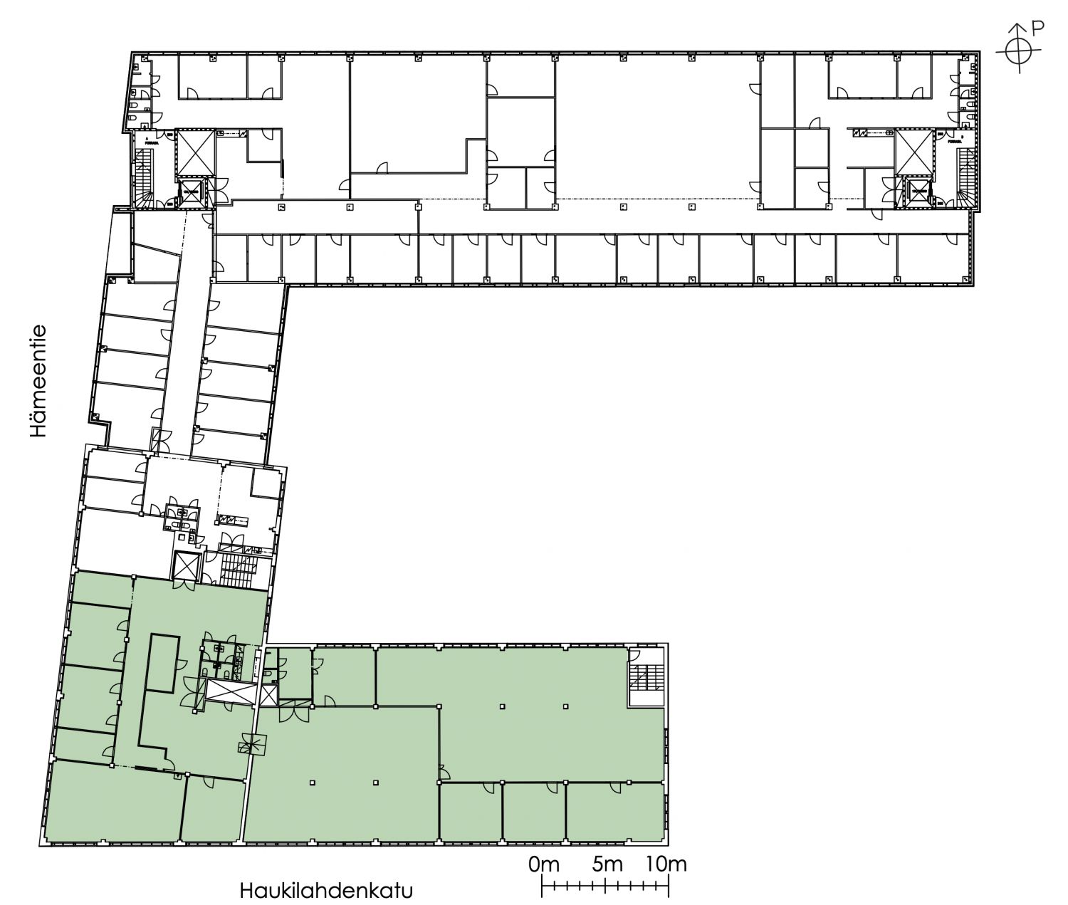
Vapaata muunneltavaa toimistotilaa, joka sopii toimisto- ja varasto käyttöön. Tilaan on tavarahissiyhteys.
Osoite
Hämeentie 105, 00550 Helsinki
Tilatyyppi
Toimistotilaa
704 m2
Pohjapiirros
Kiinteistö
Vilkkaiden väylien lähellä sijaitsevia, sekä toimisto- että varastokäyttöön sopivia tiloja Helsingin Hermannissa.
Vallilan siirtolapuutarhan lähellä sijaitseva toimitilakiinteistö sopii sekä toimisto- että varastokäyttöön. Tilat on mahdollista muunnella erilaisten yritysten tarpeisiin sopiviksi.
Tänne on helppo tulla niin julkisilla kulkuneuvoilla kuin omalla autolla. Naapurikiinteistössä on lounasravintola ja kuntokeskus. Kauppakeskus Arabian, Hämeentien kivijalkamyymälöiden ja ravintoloiden palvelut ovat viiden minuutin ajomatkan päässä.
Vallilan siirtolapuutarhan lähellä sijaitseva toimitilakiinteistö sopii sekä toimisto- että varastokäyttöön. Tilat on mahdollista muunnella erilaisten yritysten tarpeisiin sopiviksi.
Tänne on helppo tulla niin julkisilla kulkuneuvoilla kuin omalla autolla. Naapurikiinteistössä on lounasravintola ja kuntokeskus. Kauppakeskus Arabian, Hämeentien kivijalkamyymälöiden ja ravintoloiden palvelut ovat viiden minuutin ajomatkan päässä.
Sijainti
Bussit ja raitiovaunut kulkevat pienen kävelymatkan päässä Hämeentiellä. Lahden moottoritie lähtee aivan kiinteistön vierestä, joten myös Kehä I:lle pääsee sujuvasti.
Pysäköinti
Autopaikat kiinteistön pihassa ja kadunvaressa
Palvelut
Naapurikiinteistössä on lounasravintola. Lähistöllä myös kauppakeskus Arabian palvelut, Hämeentien kivijalkamyymälöiden ja ravintoloiden palvelut lähellä.
Kulkuyhteydet
Lähimmälle bussipysäkille 100 m
Lähimmälle metroasemalle 1,5 km
Lähimmälle raitiovaunupysäkille 100 m
Lentokentälle 20 min
Lähimmälle metroasemalle 1,5 km
Lähimmälle raitiovaunupysäkille 100 m
Lentokentälle 20 min
Vapautuu
Kysy
Rakennusvuosi
1960
Kerros
3
Energiatehokkuusluokka
D2018
Ympäristöluokitus
RESB Global Sector Leader 2025
Ota yhteyttä
Sponda Oy
Yrjönkatu 29C, 00100 Helsinki
Näytä puhelinnumero
020 43131
Anna Puhtila
Senior Manager, Value Add Portfolio
Näytä puhelinnumero
+358 50 407 9601
Sponda Oy
https://www.sponda.fiPyydä lisätietoa
