Vuokrataan toimistotilat - Tampere
Hämeenkatu 20, Tampere, 33200 Tampere #10789574
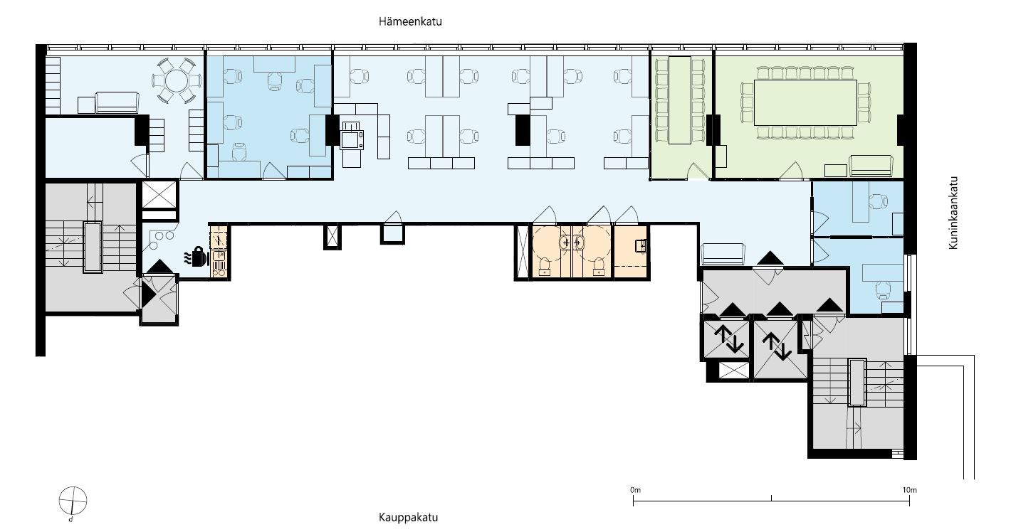
Tehokasta ja valoisaa toimistotilaa, joka on muunneltavissa moneen käyttöön. Näkymät Hämeenkadulle.
Osoite
Hämeenkatu 20, 33200 Tampere
Tilatyyppi
Toimistotilaa
215 m2
Kiinteistö
Modernia liiketilaa katutasossa, muissa kerroksissa toimistotilaa. Erinomainen sijainti Tampereen keskustassa.
Rakennuksen toinen, Kauppakadun puoleinen osa, sijaitsee erilaisten liikkeiden, ravintoloiden ja muiden palvelujen täyttämän kävelykadun välittömässä läheisyydessä.
Kiinteistölle on myönnetty BREEAM In-Use Very Good -tason ympäristösertifikaatti. BREEAM (Building Research Establishment Environmental Assessment Method) on kansainvälinen rakennusten ympäristöluokitusjärjestelmä, joka tähtää rakennuksen käytön ympäristövaikutusten vähentämiseen sekä terveellisempien työympäristöjen kehittämiseen.
Rakennuksen toinen, Kauppakadun puoleinen osa, sijaitsee erilaisten liikkeiden, ravintoloiden ja muiden palvelujen täyttämän kävelykadun välittömässä läheisyydessä.
Kiinteistölle on myönnetty BREEAM In-Use Very Good -tason ympäristösertifikaatti. BREEAM (Building Research Establishment Environmental Assessment Method) on kansainvälinen rakennusten ympäristöluokitusjärjestelmä, joka tähtää rakennuksen käytön ympäristövaikutusten vähentämiseen sekä terveellisempien työympäristöjen kehittämiseen.
Sijainti
Ydinkeskustassa Hämeenkadulla, Sokosta vastapäätä. Rakennuksen toinen osa on Kauppakadun puolella kävelykadun välittömässä läheisyydessä. Keskustorille n. 100 metriä.
Hämeenkatu 20 / Kauppakatu 5 kiinteistöllä ei ole omia parkkipaikkoja. Asiakas- ja vieraspysäköinti tapahtuu kadunvarsipaikoilla tai pysäköintitaloissa. Lähimpiä pysäköintitaloja ovat P-Keskusta Sokoksen parkkitalo.
Hämeenkatu 20 / Kauppakatu 5 kiinteistöllä ei ole omia parkkipaikkoja. Asiakas- ja vieraspysäköinti tapahtuu kadunvarsipaikoilla tai pysäköintitaloissa. Lähimpiä pysäköintitaloja ovat P-Keskusta Sokoksen parkkitalo.
Pysäköinti
Autopaikat kadunvarressa ja P-Keskusta
Palvelut
Kaikki keskustan palvelut sijaitsevat kävelymatkan päässä. Kiinteistössä on useita muotivaateliikkeitä ja pankki.
Kulkuyhteydet
Lähimmälle bussipysäkille 140 m
Lähimmälle juna-asemalle 900 m
Lentokentälle 20 min
Lähimmälle juna-asemalle 900 m
Lentokentälle 20 min
Vapautuu
Kysy
Rakennusvuosi
1956
Kerros
4
Energiatehokkuusluokka
C2018
Ympäristöluokitus
BREEAM In-Use Very Good,GRESB Global Sector Leader 2024
Ota yhteyttä
Sponda Oy
Yrjönkatu 29C, 00100 Helsinki
Näytä puhelinnumero
020 43131
Ari-Pekka Lehtonen
Regional Manager, Rest of Finland
Näytä puhelinnumero
+358 400 517 587
Sponda Oy
https://www.sponda.fiPyydä lisätietoa
