Vuokrataan liiketilat - Helsinki
Ratapihantie 11, Itä-Pasila, 00520 Helsinki #10789528
Valoisa liiketila kiinteistön sisääntulokerroksessa Pasilan paraatipaikalla!
Osoite
Ratapihantie 11, 00520 Helsinki
Tilatyyppi
Liiketilaa
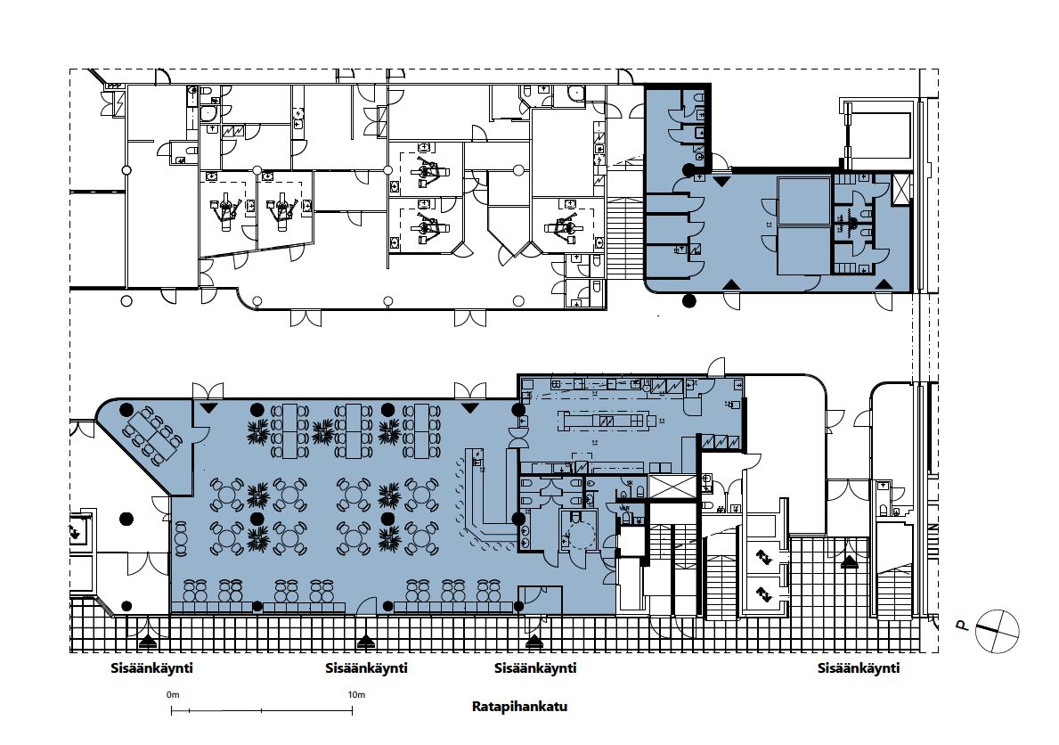
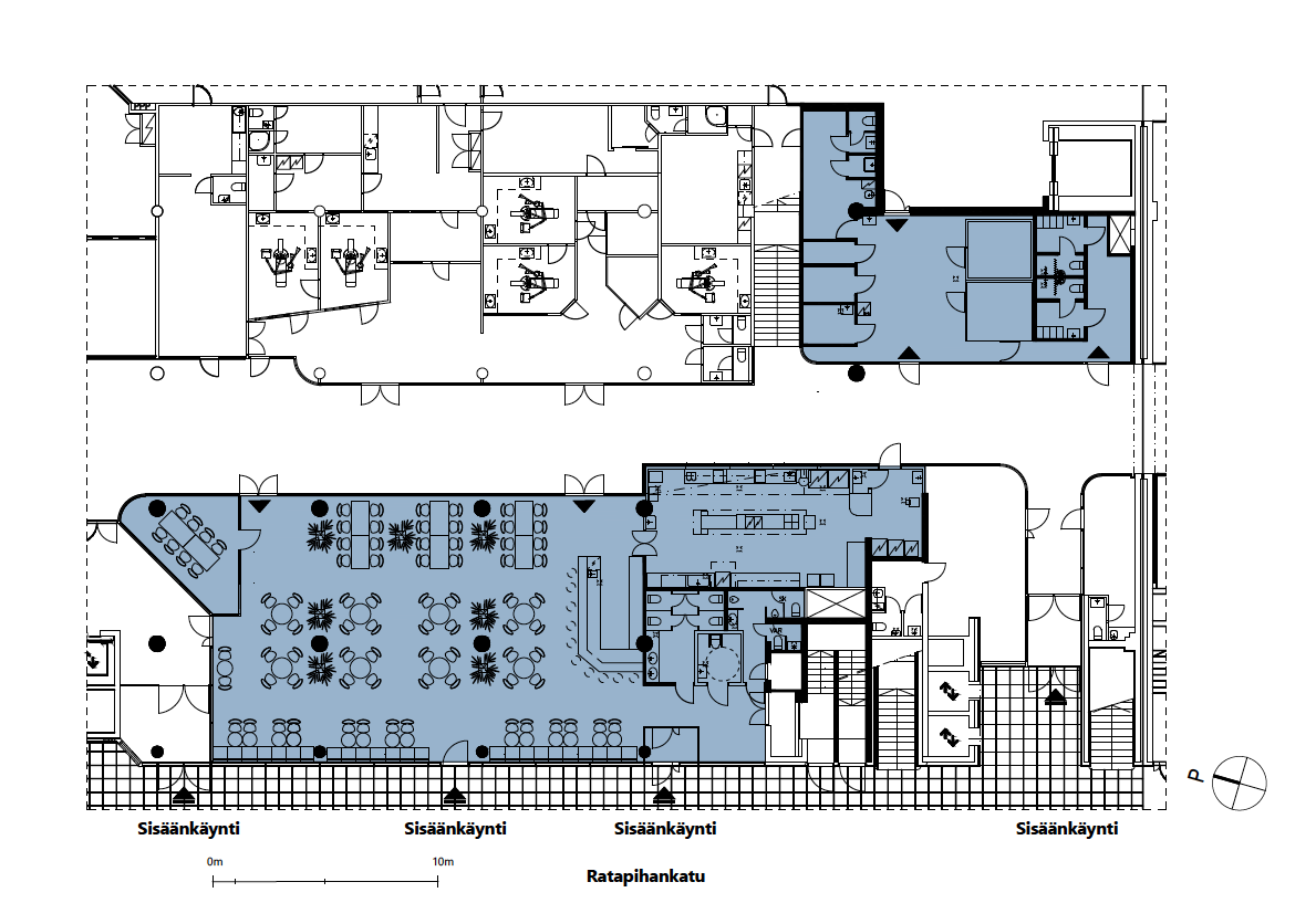
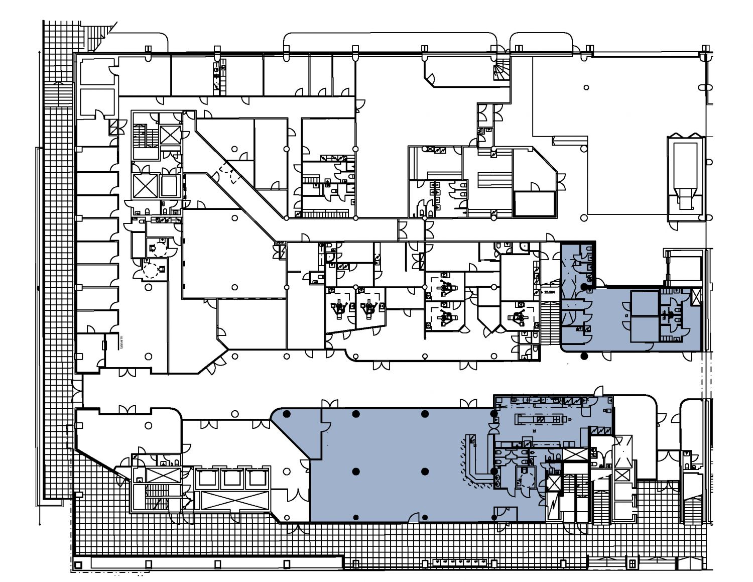
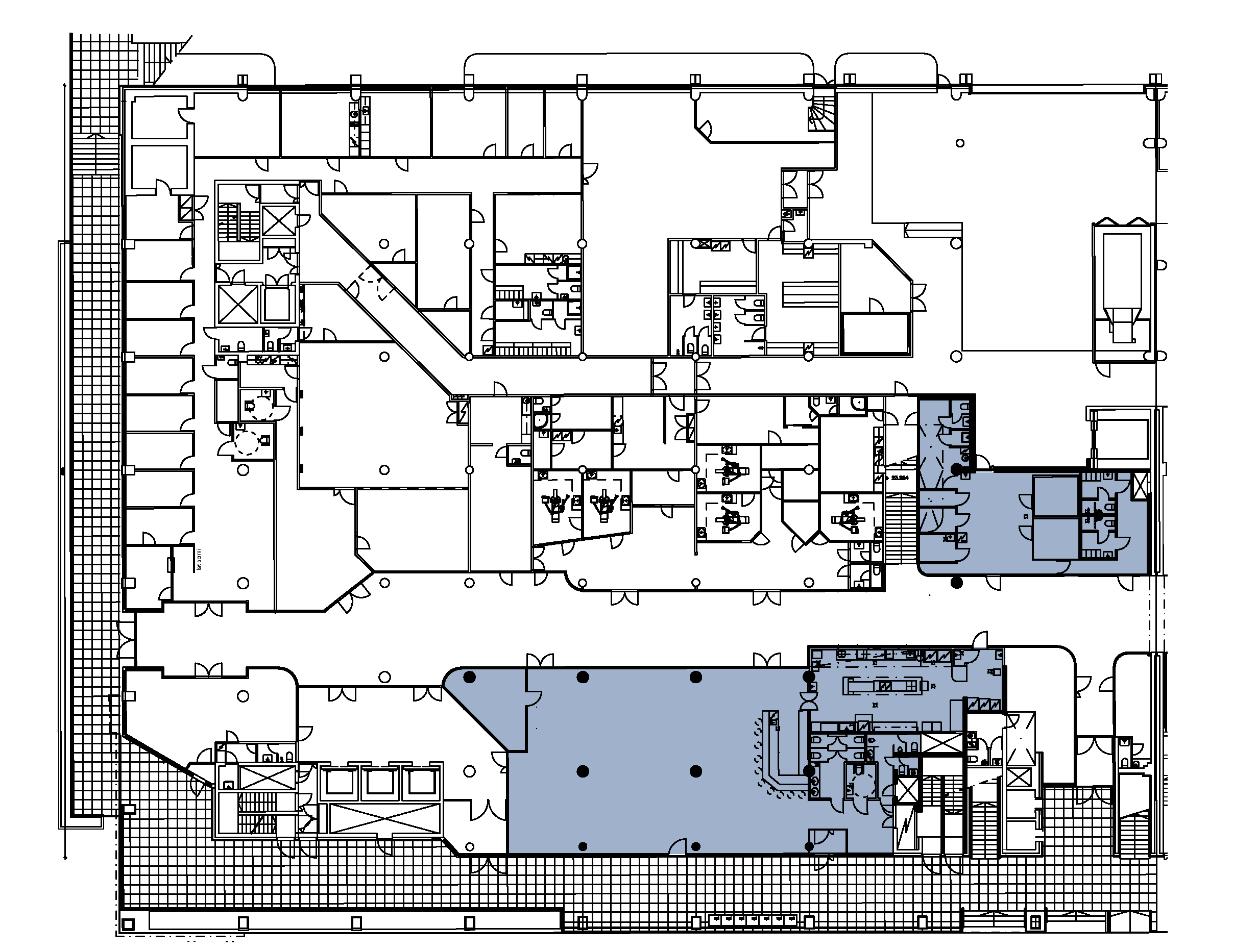
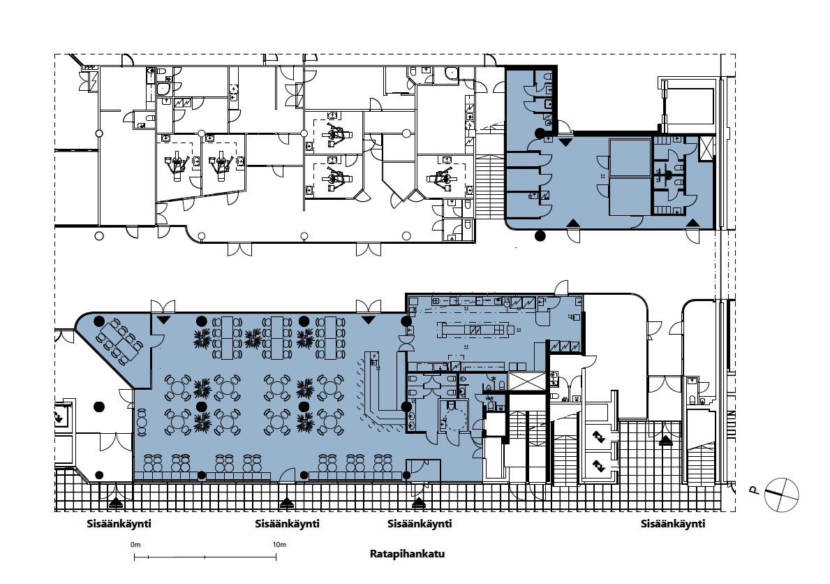
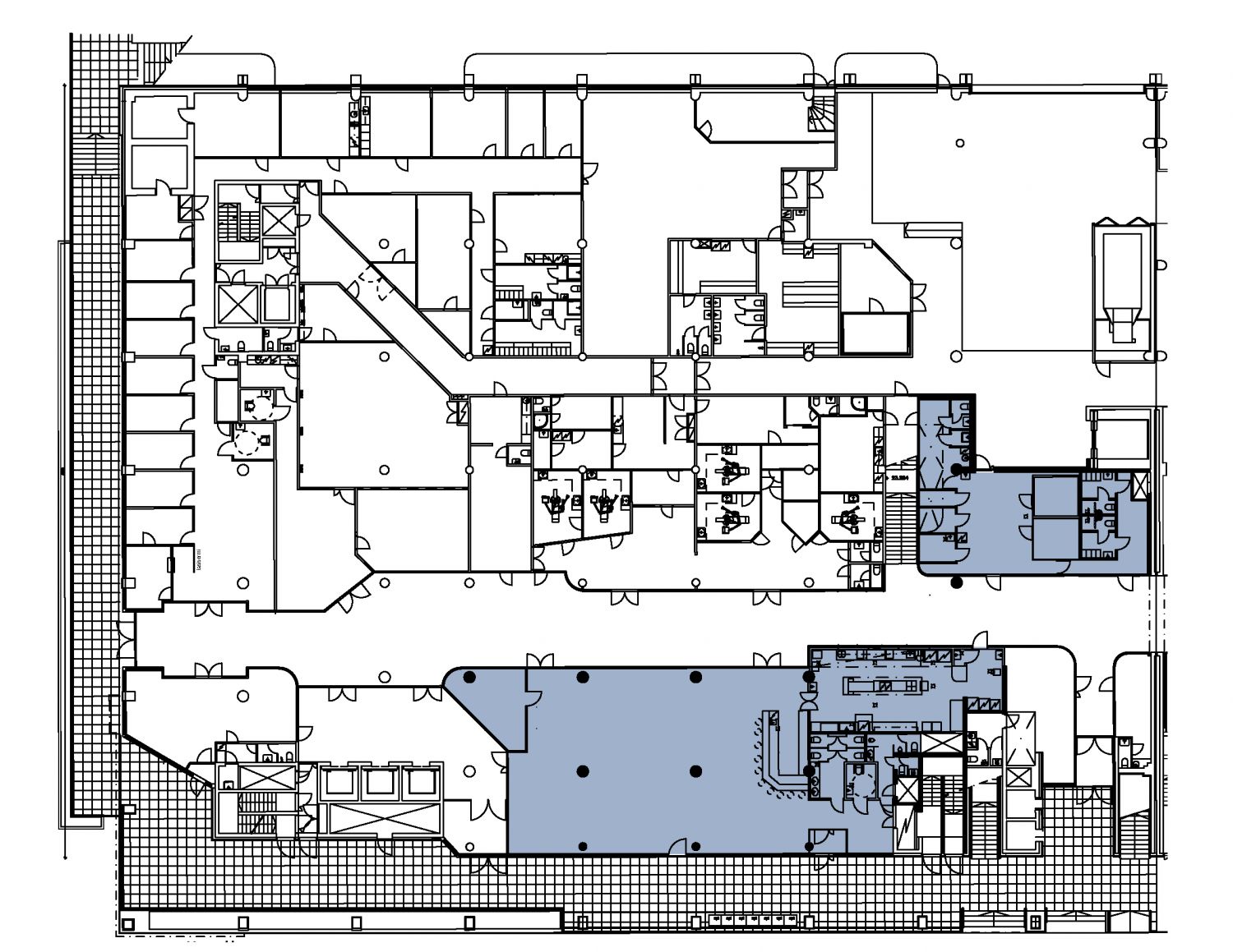
441 m2
Pohjapiirros
Kiinteistö
Hyvät yhteydet ja sujuva arki. Pasilassa sijaitseva kiinteistö on sijainniltaan keskeisellä paikalla. Tänne on helppo tulla lähes mistä ja millä vain.
Kiinteistön välittömässä läheisyydessä on Pasilan asema, jossa pysähtyvät kaikki lähi- ja kaukoliikenteen junat. Vierestä kulkevat myös raitiovaunut sekä lukuisat bussit. Pasilan monipuoliset palvelut ovat kävelyetäisyydellä: lounasta voi nauttia alueen ravintoloissa ja ruokaostokset hoituvat kätevästi lounastauolla tai kotimatkalla. Kivenheiton päässä kiinteistöstä on mm. Triplan kauppakeskus, Messukeskus ja Mäkelänrinteen uintikeskuksen kattava liikuntatarjonta.
Kiinteistölle on myönnetty BREEAM In-Use Excellent -tason ympäristösertifikaatti. BREEAM (Building Research Establishment Environmental Assessment Method) on kansainvälinen rakennusten ympäristöluokitusjärjestelmä, joka tähtää rakennuksen käytön ympäristövaikutusten vähentämiseen sekä terveellisempien työympäristöjen kehittämiseen.
Kiinteistön välittömässä läheisyydessä on Pasilan asema, jossa pysähtyvät kaikki lähi- ja kaukoliikenteen junat. Vierestä kulkevat myös raitiovaunut sekä lukuisat bussit. Pasilan monipuoliset palvelut ovat kävelyetäisyydellä: lounasta voi nauttia alueen ravintoloissa ja ruokaostokset hoituvat kätevästi lounastauolla tai kotimatkalla. Kivenheiton päässä kiinteistöstä on mm. Triplan kauppakeskus, Messukeskus ja Mäkelänrinteen uintikeskuksen kattava liikuntatarjonta.
Kiinteistölle on myönnetty BREEAM In-Use Excellent -tason ympäristösertifikaatti. BREEAM (Building Research Establishment Environmental Assessment Method) on kansainvälinen rakennusten ympäristöluokitusjärjestelmä, joka tähtää rakennuksen käytön ympäristövaikutusten vähentämiseen sekä terveellisempien työympäristöjen kehittämiseen.
Sijainti
Ratapihantielle on loistavat julkiset kulkuyhteydet, sillä raitiovaunulla pääsee suoraan kiinteistön viereen ja pääkaupunkiseudun kaikki paikallisjunat ja kaukoliikennejunat pysähtyvät Pasilan asemalla. Myös paikallisbussiliikenteen pysäkit ovat aseman pääsisäänkäynnin edessä samoin kuin lähin taksitolppa.
Kiinteistön kellarissa ja läheisessä Veturiparkki-pysäköintilaitoksessa on vuokrattavia pysäköintipaikkoja.
Kiinteistön kellarissa ja läheisessä Veturiparkki-pysäköintilaitoksessa on vuokrattavia pysäköintipaikkoja.
Pysäköinti
Autopaikat kiinteistön kellarissa
Palvelut
Kiinteistön läheisyydessä on tarjolla monipuolisia peruspalveluita kuten hotelli, ravintola- ja cateringpalveluita.
Kulkuyhteydet
Lähimmälle bussipysäkille 350 m
Lähimmälle juna-asemalle 350 m
Lähimmälle raitiovaunupysäkille 150 m
Lentokentälle 20 min
Lähimmälle juna-asemalle 350 m
Lähimmälle raitiovaunupysäkille 150 m
Lentokentälle 20 min
Vapautuu
Kysy
Rakennusvuosi
1989
Kerros
1
Energiatehokkuusluokka
C2018
Ympäristöluokitus
BREEAM In-Use Excellent,GRESB Global Sector Leader 2025
Ota yhteyttä
Sponda Oy
Yrjönkatu 29C, 00100 Helsinki
Näytä puhelinnumero
020 43131
Anna Puhtila
Senior Manager, Value Add Portfolio
Näytä puhelinnumero
+358 50 407 9601
Sponda Oy
https://www.sponda.fiPyydä lisätietoa
