Videoesittely
Vuokrataan toimistotilat - Helsinki
Korkeavuorenkatu 35, Kaartinkaupunki, 00130 Helsinki #10789485
Persoonallinen toimistotila jugendlinnassa. Tilavat huoneet antavat mahdollisuuden moneen käyttöön.
Osoite
Korkeavuorenkatu 35, 00130 Helsinki
Tilatyyppi
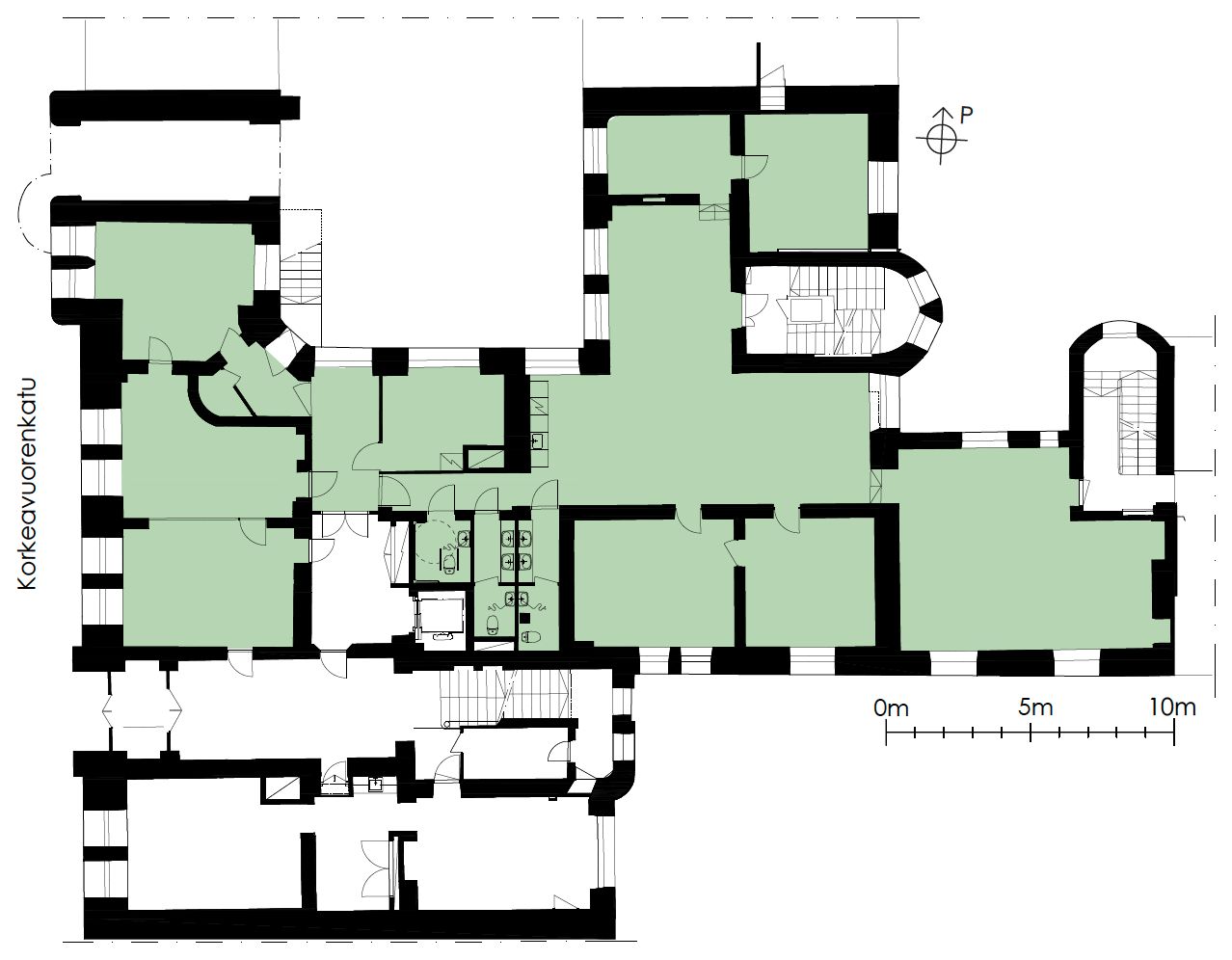
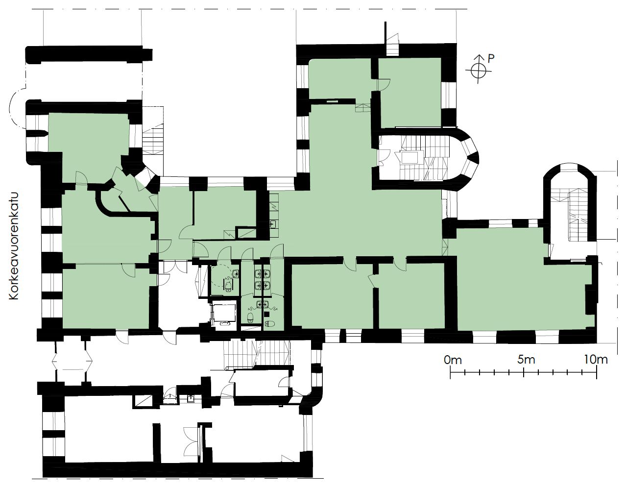
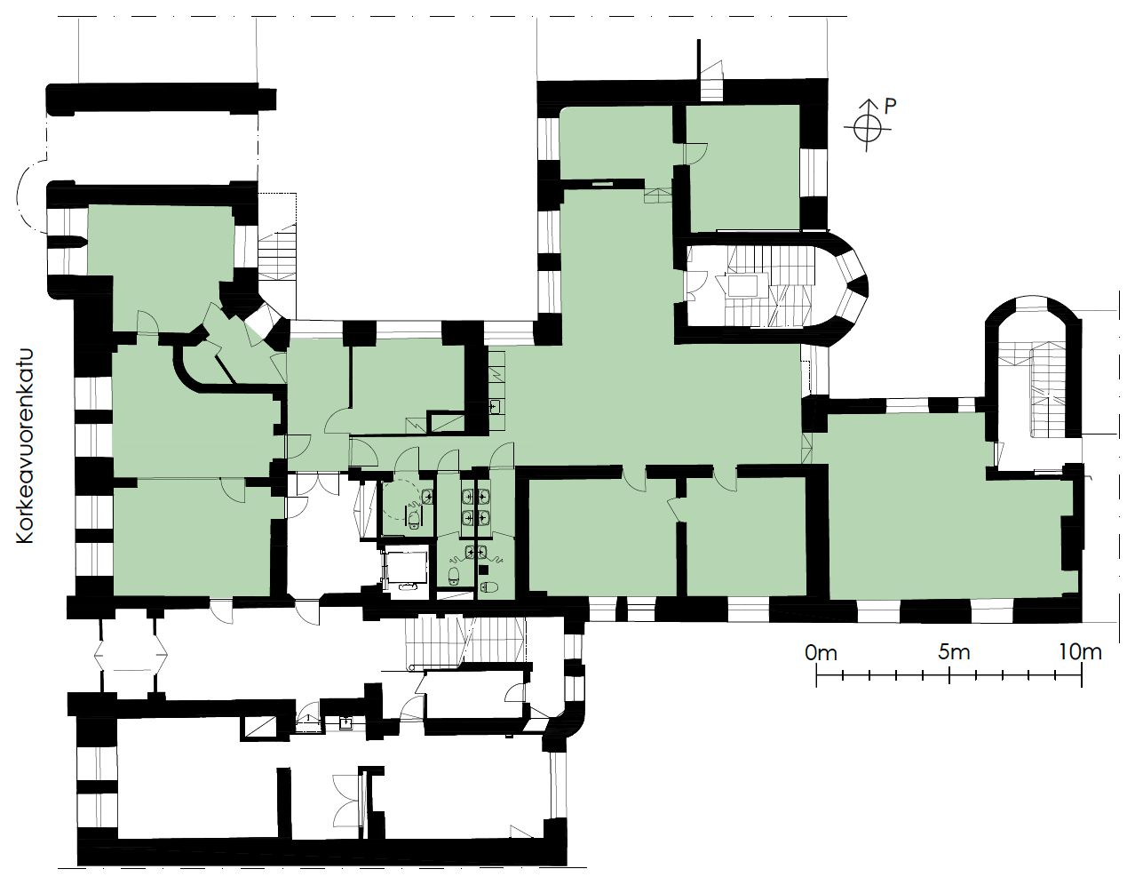
Toimistotilaa
346 m2
Pohjapiirros
Kiinteistö
Arkkitehti Lars Sonckin suunnittelema upea jugendtyylinen kivilinna Helsingin keskustan arvoalueella.
Kivilinna on sisä- ja ulkotiloiltaan peruskorjattu nykyaikaiseen toimistokäyttöön vuonna 2011 Helsingin kaupunginmuseon kanssa. Rakennuksen upea julkisivu ja historiaa henkivä portaikko ovat nykyisin suojeltuja kohteita. Kivilinnan ainutlaatuisissa puitteissa on vuokrattavissa 2 699 m² modernia ja arvokasta toimistotilaa, ja tilat ovat muunneltavissa vuokralaisen tarpeiden mukaisesti.Kiinteistö sijaitsee erinomaisella paikalla Kaartinkaupungissa. Keskeisen sijaintinsa ansiosta kiinteistölle on hyvät kulkuyhteydet julkisilla liikennevälineillä. Myös kaikki keskustan palvelut ovat lähietäisyydellä. Kaartinkaupunki on uuden ja vanhan viehättävä sekoitus. Keskellä Helsinkiä, mutta omassa rauhassaan.
Kiinteistölle on myönnetty BREEAM In-Use Very Good -tason ympäristösertifikaatti. BREEAM (Building Research Establishment Environmental Assessment Method) on kansainvälinen rakennusten ympäristöluokitusjärjestelmä, joka tähtää rakennuksen käytön ympäristövaikutusten vähentämiseen sekä terveellisempien työympäristöjen kehittämiseen.
Kivilinna on sisä- ja ulkotiloiltaan peruskorjattu nykyaikaiseen toimistokäyttöön vuonna 2011 Helsingin kaupunginmuseon kanssa. Rakennuksen upea julkisivu ja historiaa henkivä portaikko ovat nykyisin suojeltuja kohteita. Kivilinnan ainutlaatuisissa puitteissa on vuokrattavissa 2 699 m² modernia ja arvokasta toimistotilaa, ja tilat ovat muunneltavissa vuokralaisen tarpeiden mukaisesti.Kiinteistö sijaitsee erinomaisella paikalla Kaartinkaupungissa. Keskeisen sijaintinsa ansiosta kiinteistölle on hyvät kulkuyhteydet julkisilla liikennevälineillä. Myös kaikki keskustan palvelut ovat lähietäisyydellä. Kaartinkaupunki on uuden ja vanhan viehättävä sekoitus. Keskellä Helsinkiä, mutta omassa rauhassaan.
Kiinteistölle on myönnetty BREEAM In-Use Very Good -tason ympäristösertifikaatti. BREEAM (Building Research Establishment Environmental Assessment Method) on kansainvälinen rakennusten ympäristöluokitusjärjestelmä, joka tähtää rakennuksen käytön ympäristövaikutusten vähentämiseen sekä terveellisempien työympäristöjen kehittämiseen.
Sijainti
Korkeavuorenkatu sijaitsee Helsingin ydinkeskustassa Kauppatorin, Esplanadin ja Kasarmitorin välittömässä läheisyydessä. Lähimmät raitiovaunupysäkit ovat Kauppatorilla ja Kolmikulmalla.
Pysäköinti
Autopaikkoja sisäpihalla sekä Q-park Kasarmitori ja Erottaja
Palvelut
Kaikki keskustan palvelut ovat lyhyen kävelymatkan etäisyydellä. Alueella on runsaasti ravintoloita, kauppoja, hotelleja ja neuvottelukeskuksia.
Kulkuyhteydet
Lähimmälle bussipysäkille 250 m
Lähimmälle juna-asemalle 850 m
Lähimmälle metroasemalle 850 m
Lähimmälle raitiovaunupysäkille 250 m
Lentokentälle 30 min
Lähimmälle juna-asemalle 850 m
Lähimmälle metroasemalle 850 m
Lähimmälle raitiovaunupysäkille 250 m
Lentokentälle 30 min
Vapautuu
Kysy
Rakennusvuosi
1907
Kerros
1
Energiatehokkuusluokka
D2018
Ympäristöluokitus
BREEAM In-Use Very Good,GRESB Global Sector Leader 2025
Ota yhteyttä
Sponda Oy
Yrjönkatu 29C, 00100 Helsinki
Näytä puhelinnumero
020 43131
Joni Rajaniemi
Senior Leasing Manager
Näytä puhelinnumero
+358 50 505 7504
Sponda Oy
https://www.sponda.fiPyydä lisätietoa
