Vuokrataan toimistotilat - Helsinki
Haukilahdenkatu 4, Hermanni, 00550 Helsinki #10789450
Siistikuntoinen toimistotila. Tavarahissiyhteys.
Osoite
Haukilahdenkatu 4, 00550 Helsinki
Tilatyyppi
Toimistotilaa
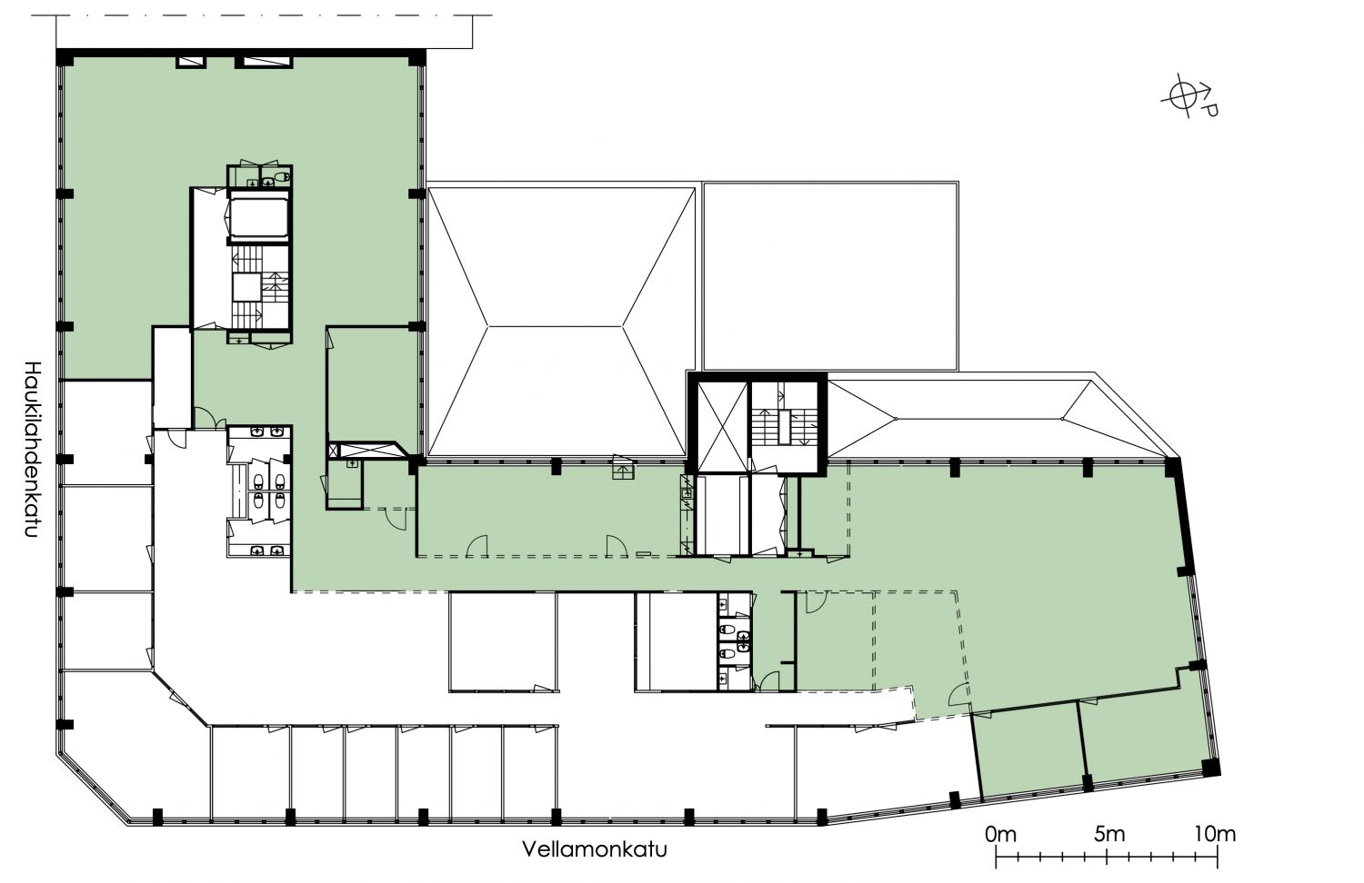
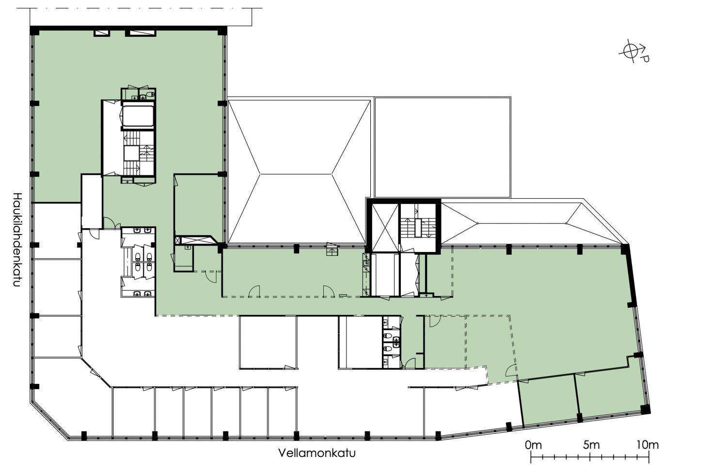
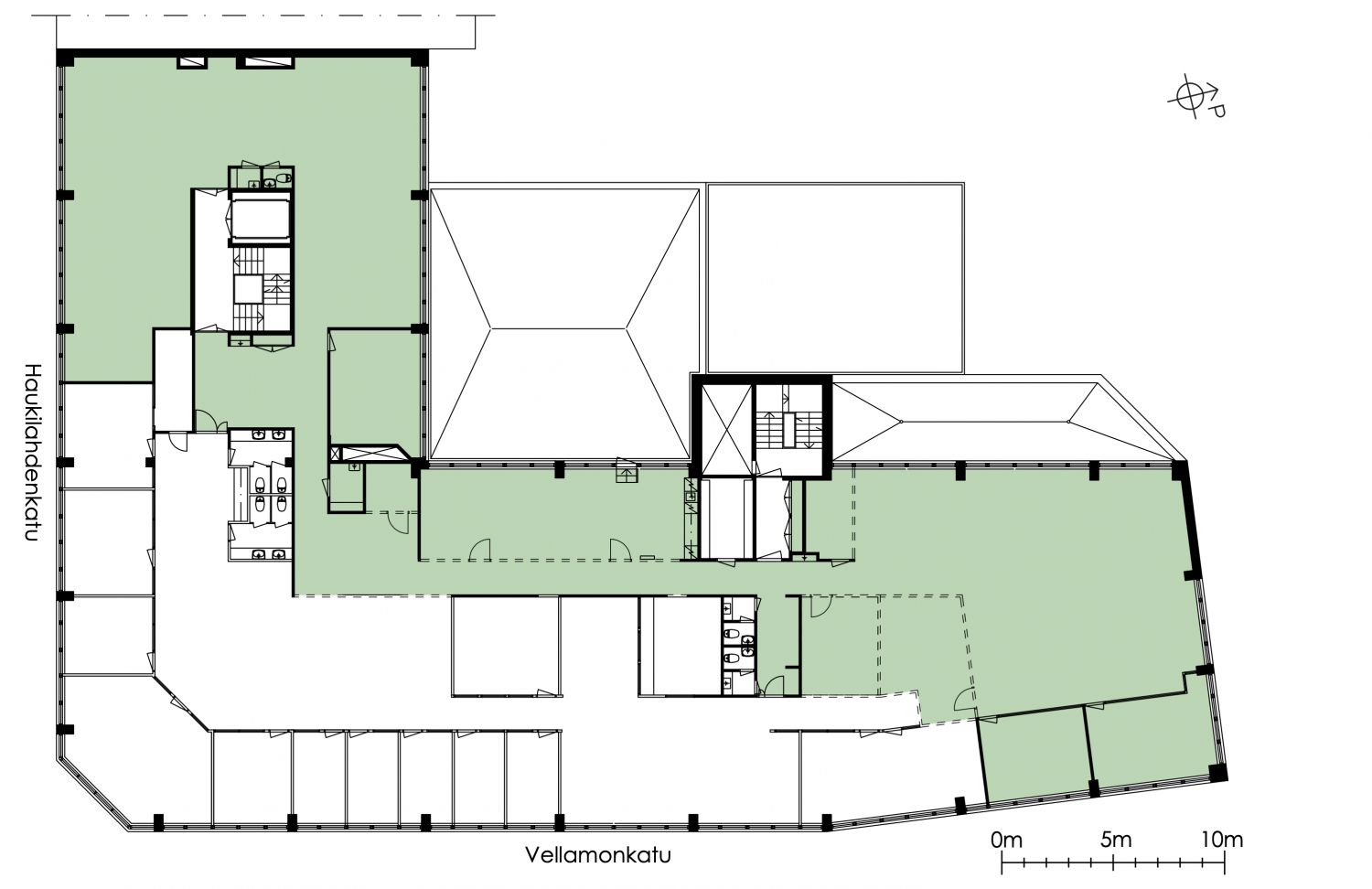
587 m2
Pohjapiirros
Kiinteistö
Palvelujen äärellä sijaitseva kolmikerroksinen tuotanto- ja toimistokiinteistö Helsingin Hermannissa.
Vuonna 1988 rakennettu kolmikerroksinen pienteollisuuskiinteistö sijaitsee Hermannissa, Haukilahdenkadun ja Vellamonkadun kulmassa. Kohteessa on tuotanto- ja toimistotilaa. Rakennus on suunniteltu alun perin kirjapainokäyttöön. Alueen palveluja ovat Kauppakeskus Arabia ja Hermannin alueen palvelut.
Vuonna 1988 rakennettu kolmikerroksinen pienteollisuuskiinteistö sijaitsee Hermannissa, Haukilahdenkadun ja Vellamonkadun kulmassa. Kohteessa on tuotanto- ja toimistotilaa. Rakennus on suunniteltu alun perin kirjapainokäyttöön. Alueen palveluja ovat Kauppakeskus Arabia ja Hermannin alueen palvelut.
Sijainti
Bussit ja raitiovaunut ovat pienen kävelymatkan päässä Hämeentiellä.
Kiinteistön pihassa on yhteensä 15 vuokrattavaa autopaikka. Kadunvarsi pysäköinti esim. yritystunnuksella.
Kiinteistön pihassa on yhteensä 15 vuokrattavaa autopaikka. Kadunvarsi pysäköinti esim. yritystunnuksella.
Pysäköinti
Autopaikat kiinteistön pihassa
Palvelut
Kiinteistössä on lounasravintola. Kauppakeskus Arabian palvelut, Hämeentien kivijalkamyymälät ja -ravintolat.
Kulkuyhteydet
Lähimmälle bussipysäkille 200 m
Lähimmälle metroasemalle 2 km
Lähimmälle raitiovaunupysäkille 200 m
Lentokentälle 20 min
Lähimmälle metroasemalle 2 km
Lähimmälle raitiovaunupysäkille 200 m
Lentokentälle 20 min
Vapautuu
Kysy
Rakennusvuosi
1988
Kerros
3
Energiatehokkuusluokka
E2018
Ympäristöluokitus
RESB Global Sector Leader 2025
Ota yhteyttä
Sponda Oy
Yrjönkatu 29C, 00100 Helsinki
Näytä puhelinnumero
020 43131
Anna Puhtila
Senior Manager, Value Add Portfolio
Näytä puhelinnumero
+358 50 407 9601
Sponda Oy
https://www.sponda.fiPyydä lisätietoa
