Videoesittely
Vuokrataan toimistotilat - Helsinki
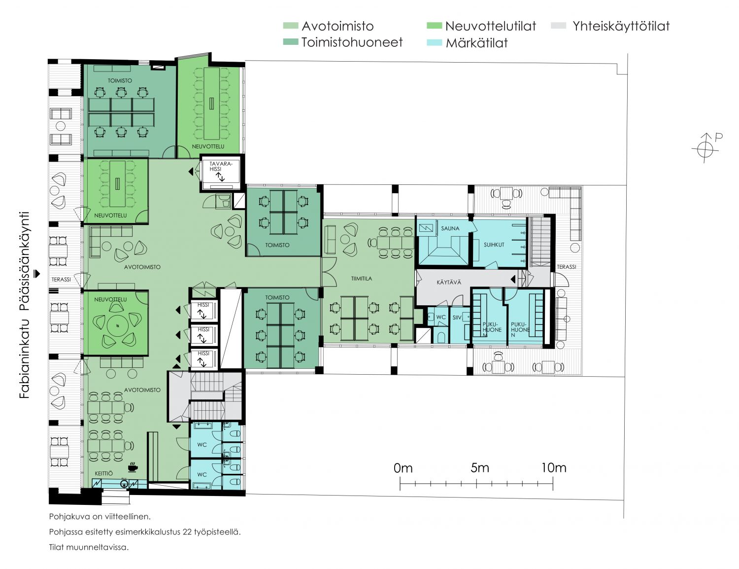
Fabianinkatu 23, Kaartinkaupunki, 00130 Helsinki #10789448
Ylimmän kerroksen muuntojoustavaa toimistotilaa, josta on rakennettavien lisäikkunoiden ansiosta upeat näkymät Tuomiokirkolle. Kerroksesta löytyy myös saunatilat ja kaksi terassia. Tilaratkaisut toteutetaan toiveiden mukaan. Toimistokerrosten välille on mahdollista rakentaa sisäportaat.
Osoite
Fabianinkatu 23, 00130 Helsinki
Tilatyyppi
Toimistotilaa
410 m2
Kiinteistö
Esplanadin puiston ja Kauppatorin vieressä sijaitsevat, täysin uudistettavat toimistotilat.
Kiinteistö saneerataan täysin uudelle tai uusille vuokralaisille ja projektin käynnistäminen vaatii 50% esivuokrausasteen. Tilat, talotekniikka ja ESG tulevat olemaan huippuluokkaa. Ylimmässä toimistokerroksessa sijaitsevat sauna ja kattoterassi. Pohjakerroksiin on mahdollista toteuttaa esimerkiksi kuntosali, kokoustiloja, auditorio, lounge- tilat, sosiaalitilat ja pyörävarasto.
Kiinteistöllä on Very Good -tason BREEAM In-Use -ympäristösertifikaatti. Tavoitteena on rakennushankkeen sertifiointi BREEAM Excellent -tasoon sekä energiatodistuksen luokan nostaminen vähintään B-luokkaan. Kiinteistössä on käytössä 100-prosenttisesti tuulivoimalla tuotettu sähkö sekä uusiutuva kaukokylmä ja kaukolämpö.
Kiinteistö sijaitsee Kaartinkaupungin liike-elämän ytimessä. Kaartinkaupunki on uuden ja vanhan viehättävä sekoitus – keskellä Helsinkiä, meren rannalla.
Urban Collection
Fabianinkatu 23 on yksi Spondan viidestä Urban Collection kohteesta. Nämä rakennukset tullaan peruskorjaamaan täysin, ja niiden on määrä valmistua 2026-2027. Huippuluokan tilat yhdistävät historiallisen viehätyksen moderniin toiminnallisuuteen. Rakennukset soveltuvat sekä suurille yrityksille että pienille start-upeille – tämä kokoelma tarjoaa monipuolisia toimistoratkaisuja, jotka vastaavat monenlaisiin liiketoimintatarpeisiin.
Tutustu Spondan Urban Collectioniin
Kiinteistö saneerataan täysin uudelle tai uusille vuokralaisille ja projektin käynnistäminen vaatii 50% esivuokrausasteen. Tilat, talotekniikka ja ESG tulevat olemaan huippuluokkaa. Ylimmässä toimistokerroksessa sijaitsevat sauna ja kattoterassi. Pohjakerroksiin on mahdollista toteuttaa esimerkiksi kuntosali, kokoustiloja, auditorio, lounge- tilat, sosiaalitilat ja pyörävarasto.
Kiinteistöllä on Very Good -tason BREEAM In-Use -ympäristösertifikaatti. Tavoitteena on rakennushankkeen sertifiointi BREEAM Excellent -tasoon sekä energiatodistuksen luokan nostaminen vähintään B-luokkaan. Kiinteistössä on käytössä 100-prosenttisesti tuulivoimalla tuotettu sähkö sekä uusiutuva kaukokylmä ja kaukolämpö.
Kiinteistö sijaitsee Kaartinkaupungin liike-elämän ytimessä. Kaartinkaupunki on uuden ja vanhan viehättävä sekoitus – keskellä Helsinkiä, meren rannalla.
Urban Collection
Fabianinkatu 23 on yksi Spondan viidestä Urban Collection kohteesta. Nämä rakennukset tullaan peruskorjaamaan täysin, ja niiden on määrä valmistua 2026-2027. Huippuluokan tilat yhdistävät historiallisen viehätyksen moderniin toiminnallisuuteen. Rakennukset soveltuvat sekä suurille yrityksille että pienille start-upeille – tämä kokoelma tarjoaa monipuolisia toimistoratkaisuja, jotka vastaavat monenlaisiin liiketoimintatarpeisiin.
Tutustu Spondan Urban Collectioniin
Sijainti
Fabianinkatu sijaitsee Kauppatorin, Esplanadin sekä Kasarmitorin välittömässä läheisyydessä. Kulkuyhteydet ovat loistavat, sillä rautatie- ja Helsingin yliopiston metroasemalle on 500 metriä ja monet raitiovaunut kulkevat aivan läheltä.
Pysäköinti
Oma parkkihalli sekä Q-Park Kasarmi
Palvelut
Ydinkeskustan monipuolinen ja laaja palvelu- ja kulttuuritarjonta on käden ulottuvilla.
Kulkuyhteydet
Lähimmälle bussipysäkille 850 m
Lähimmälle juna-asemalle 800 m
Lähimmälle metroasemalle 500 m
Lähimmälle raitiovaunupysäkille 200 m
Lentokentälle 35 min
Lähimmälle juna-asemalle 800 m
Lähimmälle metroasemalle 500 m
Lähimmälle raitiovaunupysäkille 200 m
Lentokentälle 35 min
Vapautuu
Kysy
Rakennusvuosi
1962
Kerros
6
Energiatehokkuusluokka
B2018
Ympäristöluokitus
BREEAM In-Use Very Good,GRESB Global Sector Leader 2025
Ota yhteyttä
Sponda Oy
Yrjönkatu 29C, 00100 Helsinki
Näytä puhelinnumero
020 43131
Magnus Öster
Director, Leasing
Näytä puhelinnumero
+358 40 768 4926
Sponda Oy
https://www.sponda.fiPyydä lisätietoa
