Vuokrataan toimistotilat - Espoo
Piispantilankuja 6, Olari, 02240 Espoo #10789425
Valoisassa tilassa sekä avotilaa että erillisiä toimistokäyttöön sopivia huoneita. Tilan viihtyisyyttä lisää jäähdytys.
Osoite
Piispantilankuja 6, 02240 Espoo
Tilatyyppi
Toimistotilaa
367 m2
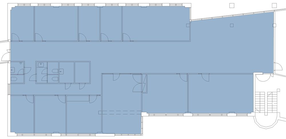
Pohjapiirros
Kiinteistö
Valoisaa työskentelytilaa Friisilässä. Kiinteistössä on jäähdytetty ilmanvaihto.
Espoon Friisilässä sijaitseva kiinteistö on osa kolmen erillistalon muodostamaa harmonista kokonaisuutta. Toimistotalossa on valoisaa työskentelytilaa.
Rakennuksen ylimmässä kerroksessa on saunatilat, joita vuokrataan kiinteistön kaikille asiakasyrityksille.
Länsiväylän läheisyydessä sijaitseva kohde on helposti saavutettavissa sekä omalla autolla että julkisilla kulkuvälineillä. 1,5 kilometrin päässä sijaitsee yksi Espoon suosituimmista ostos- ja vapaa-ajanviettopaikoista, kauppakeskus Iso Omena.
Espoon Friisilässä sijaitseva kiinteistö on osa kolmen erillistalon muodostamaa harmonista kokonaisuutta. Toimistotalossa on valoisaa työskentelytilaa.
Rakennuksen ylimmässä kerroksessa on saunatilat, joita vuokrataan kiinteistön kaikille asiakasyrityksille.
Länsiväylän läheisyydessä sijaitseva kohde on helposti saavutettavissa sekä omalla autolla että julkisilla kulkuvälineillä. 1,5 kilometrin päässä sijaitsee yksi Espoon suosituimmista ostos- ja vapaa-ajanviettopaikoista, kauppakeskus Iso Omena.
Sijainti
Kiinteistö sijaitsee Etelä-Espoossa noin 4,5 km Tapiolasta länteen. Kuitinmäentien bussipysäkit ovat lähellä ja ne palvelevat Espoon sisäisten bussien käyttäjiä. Länsiväylän varren pysäkiltä on yhteys Helsingin keskustaan.
Pysäköinti
Autopaikat kiinteistön pihassa ja autohallissa
Palvelut
Kauppakeskus Iso Omenaan on matkaa noin 1,5 km.
Kulkuyhteydet
Lähimmälle bussipysäkille 250 m
Lähimmälle metroasemalle 1,3 km
Lentokentälle 30 min
Lähimmälle metroasemalle 1,3 km
Lentokentälle 30 min
Vapautuu
Kysy
Rakennusvuosi
1991
Kerros
2
Energiatehokkuusluokka
D2018
Ympäristöluokitus
RESB Global Sector Leader 2025
Ota yhteyttä
Sponda Oy
Yrjönkatu 29C, 00100 Helsinki
Näytä puhelinnumero
020 43131
Anna Puhtila
Senior Manager, Value Add Portfolio
Näytä puhelinnumero
+358 50 407 9601
Sponda Oy
https://www.sponda.fiPyydä lisätietoa
