Vuokrataan toimistotilat - Espoo
Pihatörmä 1, Olari, Espoo #10789420
Vapaata toimistotilaa ja hyvät palvelut saman katon alla.
Osoite
Pihatörmä 1, Espoo
Tilatyyppi
Toimistotilaa
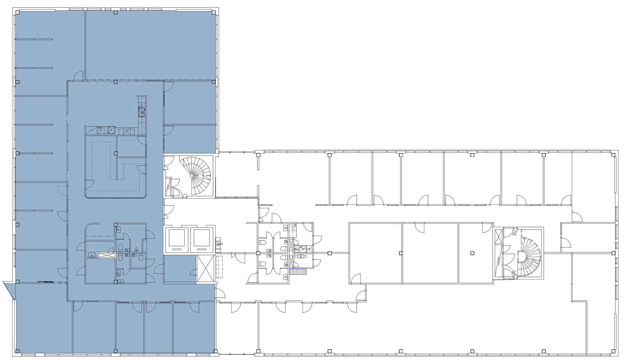
442 m2
Pohjapiirros
Kiinteistö
Tehokkaat toimitilat, kattavat palvelut.
Tämä espoolainen liike- ja toimistokiinteistö tarjoaa tehokkaat ja helposti muokattavat tilat, jotka taipuvat monenlaisiin tarpeisiin. Kiinteistössä on kattavat palvelut kuten neuvottelutiloja, lounasravintoloita ja saunatila.
Länsi-Keskuksen liike- ja toimistorakennus sijaitsee keskeisellä paikalla, Friisilän ja Olarin välittömässä läheisyydessä. Kiinteistölle on helppo saapua autolla, bussilla tai metrolla. Työmatka-autoilijoiden käytössä ovat kiinteistön pysäköintihallit, autopaikkoja on runsaasti myös kiinteistön pihalla. Työmatkapyöräilijöitä varten löytyy pyöräparkki.
Monipuolinen palvelutarjonta löytyy lähellä, sillä kävelymatkan päässä sijaitsee yksi Espoon suosituimmista ostos- ja vapaa-ajanviettopaikoista, kauppakeskus Iso Omena.
Tämä espoolainen liike- ja toimistokiinteistö tarjoaa tehokkaat ja helposti muokattavat tilat, jotka taipuvat monenlaisiin tarpeisiin. Kiinteistössä on kattavat palvelut kuten neuvottelutiloja, lounasravintoloita ja saunatila.
Länsi-Keskuksen liike- ja toimistorakennus sijaitsee keskeisellä paikalla, Friisilän ja Olarin välittömässä läheisyydessä. Kiinteistölle on helppo saapua autolla, bussilla tai metrolla. Työmatka-autoilijoiden käytössä ovat kiinteistön pysäköintihallit, autopaikkoja on runsaasti myös kiinteistön pihalla. Työmatkapyöräilijöitä varten löytyy pyöräparkki.
Monipuolinen palvelutarjonta löytyy lähellä, sillä kävelymatkan päässä sijaitsee yksi Espoon suosituimmista ostos- ja vapaa-ajanviettopaikoista, kauppakeskus Iso Omena.
Sijainti
Lyhyen matkan päässä oleva Länsiväylä takaa kiinteistön helpon saavutettavuuden autolla, bussilla tai metrolla. Läheltä kulkee useita bussilinjoja ja Matinkylän metroasemalle on 700 m.
Pysäköinti
Autopaikat kiinteistön parkkihallissa
Palvelut
Kauppakeskus Iso Omenan monipuoliset palvelut ovat kävelyetäisyyden päässä.
Kulkuyhteydet
Lähimmälle bussipysäkille 400 m
Lähimmälle metroasemalle 1,1 km
Lentokentälle 30 min
Lähimmälle metroasemalle 1,1 km
Lentokentälle 30 min
Vapautuu
Kysy
Rakennusvuosi
1990
Kerros
5
Energiatehokkuusluokka
C/D2018
Ympäristöluokitus
GRESB Global Sector Leader 2025
Ota yhteyttä
Sponda Oy
Yrjönkatu 29C, 00100 Helsinki
Näytä puhelinnumero
020 43131
Thomas Sanmark
Leasing and Account Manager
Näytä puhelinnumero
+358 40 675 1880
Sponda Oy
https://www.sponda.fiPyydä lisätietoa
