Vuokrataan toimistotilat - Espoo
Tuomarilantie 19, Espoon Keskus, 02760 Espoo #10789407
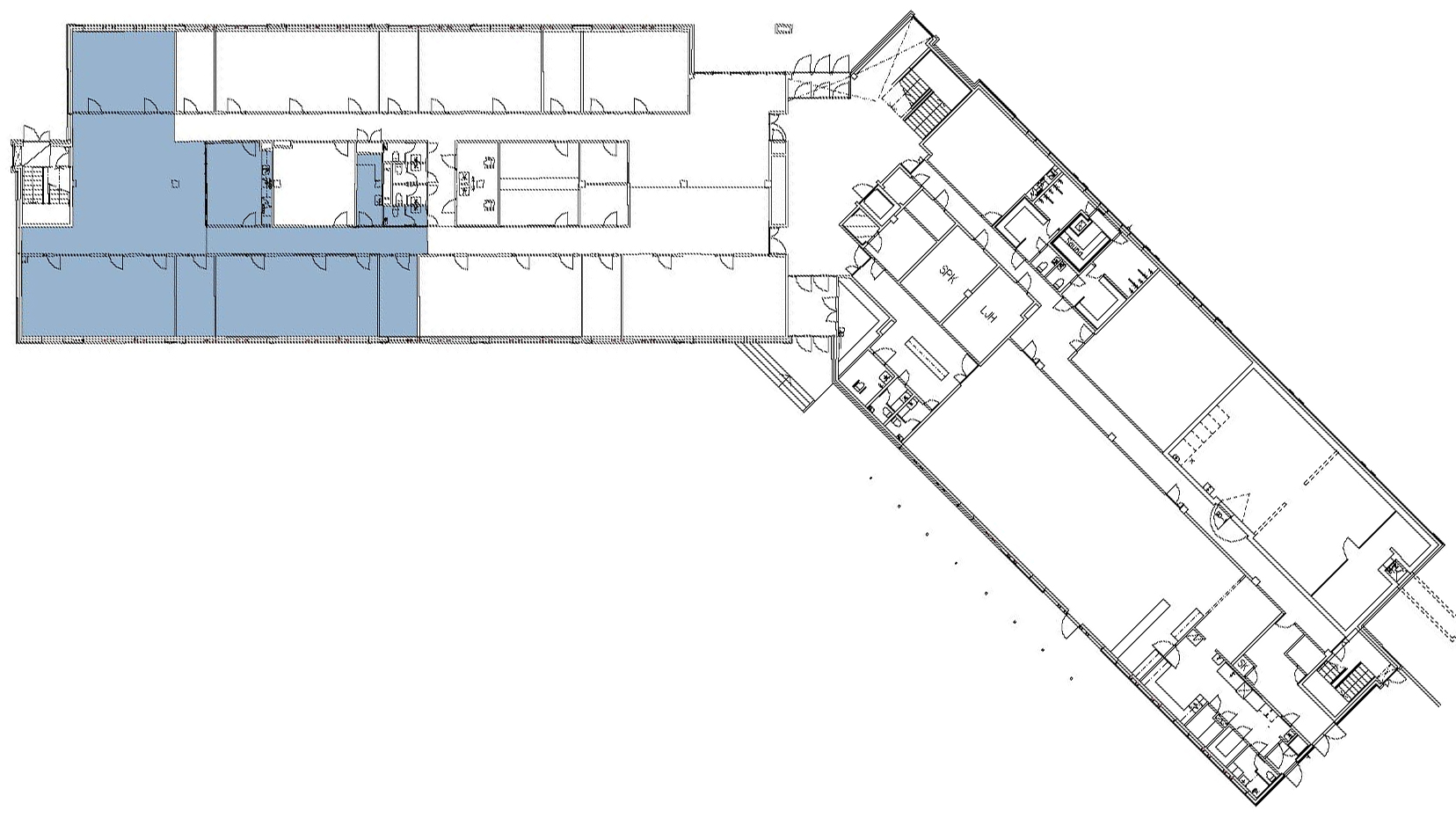
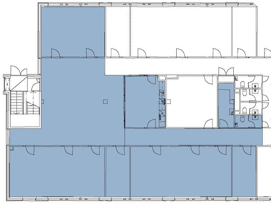
Valoisaa huonetoimistotilaa kiinteistön päädyssä.
Osoite
Tuomarilantie 19, 02760 Espoo
Tilatyyppi
Toimistotilaa
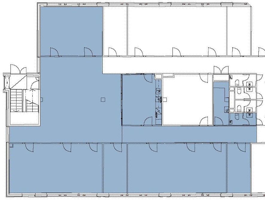
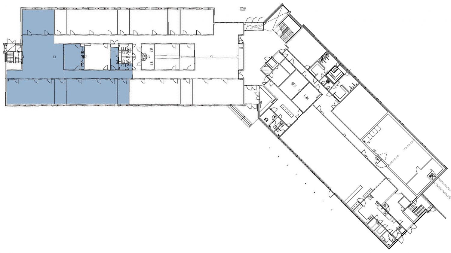
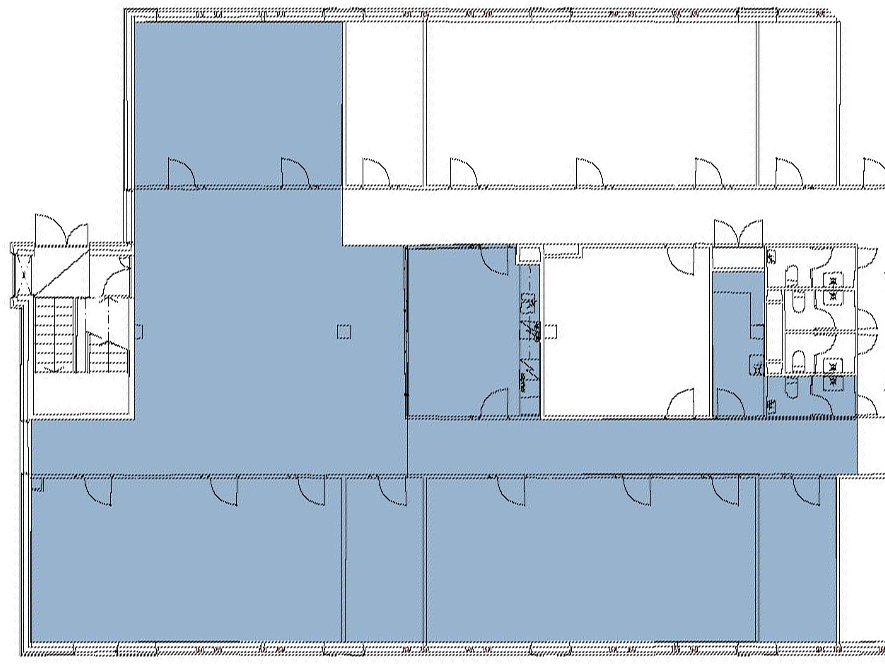
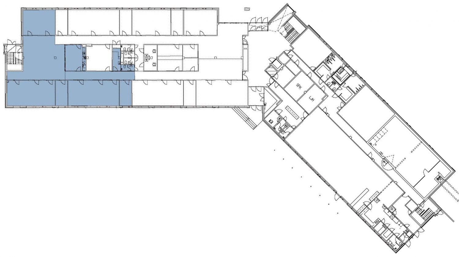
269 m2
Pohjapiirros
Kiinteistö
Espoon keskuksessa odottaa Espoonportin toimistotalo valoisine tiloineen. Tilat ovat muunneltavissa tarpeen mukaan.
Toimistotalosta löytyy avokonttoritilan lisäksi yksilöllisiä työhuoneita, jotka antavat rauhaa keskittymiseen. Jäähdytys lisää työskentelymukavuutta kesällä.
Espoon keskuksen palvelut ovat lyhyen automatkan tai junapysäkin päässä.
Toimistotalosta löytyy avokonttoritilan lisäksi yksilöllisiä työhuoneita, jotka antavat rauhaa keskittymiseen. Jäähdytys lisää työskentelymukavuutta kesällä.
Espoon keskuksen palvelut ovat lyhyen automatkan tai junapysäkin päässä.
Sijainti
Täällä eivät Helsingin keskustan ruuhkat haittaa, ja viereistä Turunväylää pitkin pääsee nopeasti vaikkapa Kehä III:lle. Lähimmälle Tuomarilan juna-asemalle on 400 metrin matka. Rakennuksen eteen pysähtyvät bussit Helsingin keskustasta ja Espoon keskuksesta.
Pihalla on runsaasti pysäköintipaikkoja, ja pyörillekin on hyvin tilaa.
Pihalla on runsaasti pysäköintipaikkoja, ja pyörillekin on hyvin tilaa.
Pysäköinti
Autopaikat kiinteistön pihassa
Kulkuyhteydet
Lähimmälle bussipysäkille 200 m
Lähimmälle juna-asemalle 750 m
Lentokentälle 30 min
Lähimmälle juna-asemalle 750 m
Lentokentälle 30 min
Vapautuu
Kysy
Rakennusvuosi
1991
Kerros
1
Energiatehokkuusluokka
C2018
Ympäristöluokitus
RESB Global Sector Leader 2025
Ota yhteyttä
Sponda Oy
Yrjönkatu 29C, 00100 Helsinki
Näytä puhelinnumero
020 43131
Anna Puhtila
Senior Manager, Value Add Portfolio
Näytä puhelinnumero
+358 50 407 9601
Sponda Oy
https://www.sponda.fiPyydä lisätietoa
