Vuokrataan toimistotilat - Helsinki
Kuortaneenkatu 5, Vallila, 00520 Helsinki #10789396
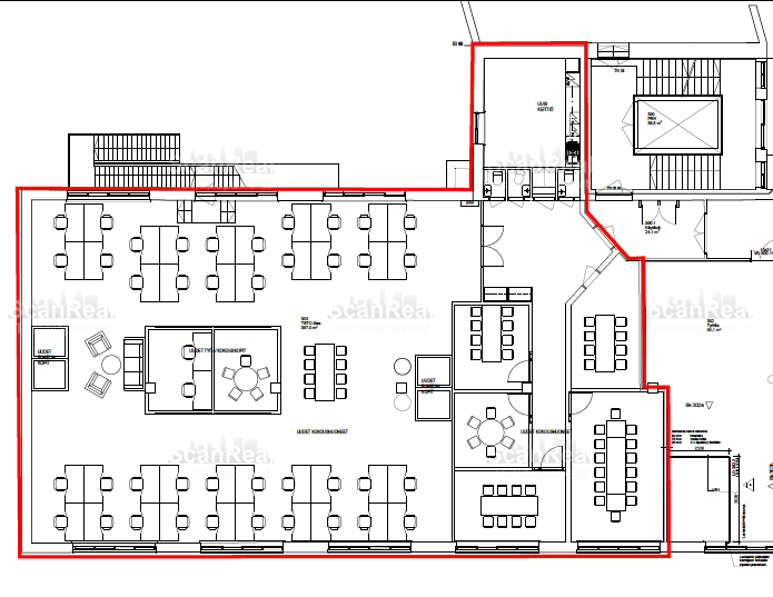
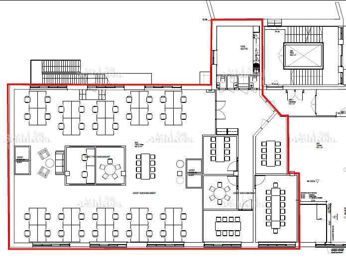
Tyylikäs, teollisuushenkinen 415 m² toimistotila Vallilassa.
Osoite
Kuortaneenkatu 5, 00520 Helsinki
Tilatyyppi
Toimistotilaa
415 m2
Pohjapiirros
Kiinteistö
Moderni teollisuushenkinen toimisto isoilla ikkunoilla kolmannesta kerroksesta. Tilaan on suunniteltu toteutettavaksi avotoimistoalueita ja erikokoisia kokous-/projektihuoneita
Tekosilkkikutomo on vuonna 1938 valmistunut teollisuuskiinteistö, joka on remontoitu nykyaikaiseksi toimistorakennukseksi.
Kiinteistö sijaitsee hyvien kulkuyhteyksien varrella Vallilassa ja alle kilometrin päässä Pasilan asemasta. Kiinteistön edessä on ilmaista pysäköintitilaa.
Tekosilkkikutomo on vuonna 1938 valmistunut teollisuuskiinteistö, joka on remontoitu nykyaikaiseksi toimistorakennukseksi.
Kiinteistö sijaitsee hyvien kulkuyhteyksien varrella Vallilassa ja alle kilometrin päässä Pasilan asemasta. Kiinteistön edessä on ilmaista pysäköintitilaa.
Kulkuyhteydet
Metroasema 1,3 km, Raitiovaunupysäkki 100 m, Bussipysäkki 100 m, Juna-asema 600 m, Lentoasema 13,5 km
Vapautuu
Heti
Saneerausvuosi
2012
Kerros
3
Energiatehokkuusluokka
Ei lain edellyttämää energiatodistusta
Näkyvällä paikalla
Hissi
Ota yhteyttä
ScanReal Oy LKV
Opus Business Park
Hitsaajankatu 24
00810 Helsinki
info@scanreal.fi
Puh:
Näytä puhelinnumero
020 730 8830
Sopivat toimitilat yhdellä otolla!
Kartoitamme toimitilatarpeesi ja etsimme yrityksellesi parhaiten sopivat vapaat toimitilat. Koska vuokranantajat maksavat palvelumme, on tämä yrityksellesi veloituksetonta.
OTA YHTEYTTÄ - SOVI NÄYTTÖ!
Kaikki kohteemme eivät ole netissä, kerro tilatarpeesi niin kartoitamme vaihtoehdot.
Palvelumme on tilanhakijalle ilmainen
Pyydä lisätietoa
