Vuokrataan toimistotilat - Helsinki
Mannerheimintie 15 B, Töölö, 00260 Helsinki #10789393
Huippusijainnilla toimistotilaa Töölöstä
Osoite
Mannerheimintie 15 B, 00260 Helsinki
Tilatyyppi
Toimistotilaa
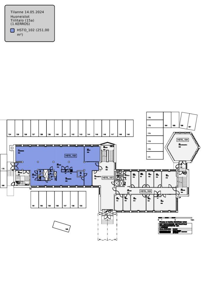
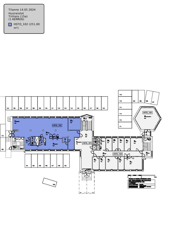
252 m2
Pysäköinti
Hallissa
Muuta
Vuokrataan toimistotilaa huippusijainnilla Taka-Töölöstä, vuokrattava tila on 1. kerroksen 252m2 toimistotila.
Kiinteistö Oy Sakkaroosi on rakennettu 70-luvulla historiallisen Sokeritehtaan alueelle, entisen Suomen Sokerin pääkonttorin vuonna 1952 rakennetun kiinteistön viereen.
Kiinteistön sijainti on erinomainen rajoittuen länteen Mannerheimintielle, etelässä Hesperian Puistoon ja pohjoisessa Helsinginkatuun. Jos etsitte luonnon läheistä tilaa, kuitenkin ydinkeskustan palvelut aivan vieressä, saattaa tämä kohde sopia teille parhaiten.
Jäähdytettyjä tiloja on monen kokoisille yrityksille ja tilat ovat yhdistelmiä sekä huoneita että avotilaa.
Kiinteistön vieressä Mannerheimintiellä on sekä ratikka- ja linja-autopysäkit ja oman auton käyttäjiä palvelee autopaikat sekä hallissa että pihassa.
Tervetuloa tutustumaan, varaathan välittäjältä oman esittelyaikasi. Voit kysyä meiltä myös muita sopivia vaihtoehtoja, kauttamme löydät juuri Teidän tarpeisiinne sopivat tilat. Palvelumme on tilanhakijalle veloitukseton
Kiinteistö Oy Sakkaroosi on rakennettu 70-luvulla historiallisen Sokeritehtaan alueelle, entisen Suomen Sokerin pääkonttorin vuonna 1952 rakennetun kiinteistön viereen.
Kiinteistön sijainti on erinomainen rajoittuen länteen Mannerheimintielle, etelässä Hesperian Puistoon ja pohjoisessa Helsinginkatuun. Jos etsitte luonnon läheistä tilaa, kuitenkin ydinkeskustan palvelut aivan vieressä, saattaa tämä kohde sopia teille parhaiten.
Jäähdytettyjä tiloja on monen kokoisille yrityksille ja tilat ovat yhdistelmiä sekä huoneita että avotilaa.
Kiinteistön vieressä Mannerheimintiellä on sekä ratikka- ja linja-autopysäkit ja oman auton käyttäjiä palvelee autopaikat sekä hallissa että pihassa.
Tervetuloa tutustumaan, varaathan välittäjältä oman esittelyaikasi. Voit kysyä meiltä myös muita sopivia vaihtoehtoja, kauttamme löydät juuri Teidän tarpeisiinne sopivat tilat. Palvelumme on tilanhakijalle veloitukseton
Vapautuu
Kysy
Rakennusvuosi
1972
Kerros
1
Ota yhteyttä
Tuloskiinteistöt Oy
Rikhardinkatu 2 B 5, 00130 Helsinki
Näytä puhelinnumero
(09) 6841 620
Otto Ahtola
Commercial Real Estate Advisor
Näytä puhelinnumero
+358 40 042 2830
Jorma Ryynänen
Commercial Real Estate Advisor LKV, LVV
Näytä puhelinnumero
+358 40 708 4064
Pyydä lisätietoa
