Vuokrataan toimistotilat - Helsinki
Uudenmaankatu 16-20, Punavuori, 00120 Helsinki #10789363
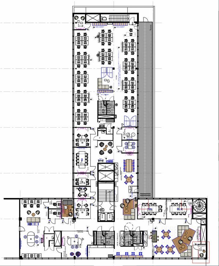
Vuokrattavana 747 m2 toimistotilat ylimmästä 5. kerroksesta. Modernit ja muuttovalmiit tilat ovat valmistuneet 2021. Tilassa on avotilaa sekä useita neuvotteluhuoneita ja sosiaalitilat. Pohjakuvassa on piirrettynä esimerkkikalustus 50 työpisteellä.
Uudenmaankatu 16-20 toimitilakiinteistö Dekki sijaitsee aivan ydinkeskustassa, Annankadun ja Uudenmaankadun kulmassa keskellä Punavuorta. Kiinteistö on täysin saneerattu 2019-2021 ja sen suuri, lähes 1800 m2 kerroskoko mahdollistaa joustavan tilojen toteutuksen sekä tarvittaessa isommankin yrityksen sijoittamisen yhteen tasoon. Useamman rappukäytävän ansiosta tila on helposti jaettavissa myös pienempiin osiin.
Lisätiedot 020 7290 710 ja lisää kohteita premises.fi
Kohteella ei ole lain edellyttämää energiatodistusta tai energialuokka ei tiedossa.Kerros: 5
CRE PREMISES
Puh. Näytä puhelinnumero 020 7290 710
Vantaankoskentie 14
01670 VANTAA
