Vuokrataan toimistotilat - Jyväskylä
Kauppakatu 28, Keskusta, 40100 Jyväskylä #10789325
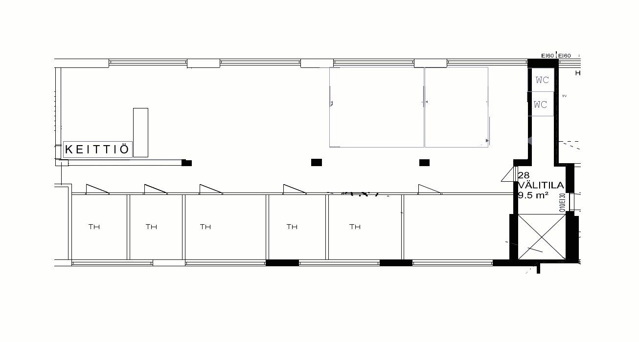
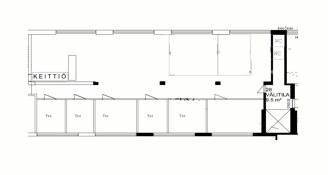
Fiksua ja toimivaa toimistotilaa Jyväskylän ydinkeskustasta
Osoite
Kauppakatu 28, 40100 Jyväskylä
Tilatyyppi
Toimistotilaa
200 m2
Muuta
Erittäin siisti, remontoitu toimistotila aivan Jyväskylän ydinkeskustassa. Toisen kerroksen valoisa toimistotila jossa avotilaa, huoneita sekä lasiseinin rakennetut nykyaikaiset neuvottelutilat. Keittiö ja wc-tilat. Tilaan käynti rauhaisan sisäpihan kautta. Heti vapaa. Ota yhteyttä näyttöä varten!
Vapautuu
Kysy
Kerros
2
Ota yhteyttä
Pyydä lisätietoa
