Vuokrataan toimistotilat - Espoo
Niittytaival 13, Niittykumpu, 02200 Espoo #10789149
Vuokrataan Espoon Niittykummusta toimistotilaa
Osoite
Niittytaival 13, 02200 Espoo
Tilatyyppi
Toimistotilaa
363 - 628 m2
Kiinteistö
Vuokrataan kiinteistöstä Niittytaival 13 toimistotilaa.
Kiinteistössä tiloja vapaana:
2. kerros 429m2
3. kerros 363m2
3. kerros 491m2
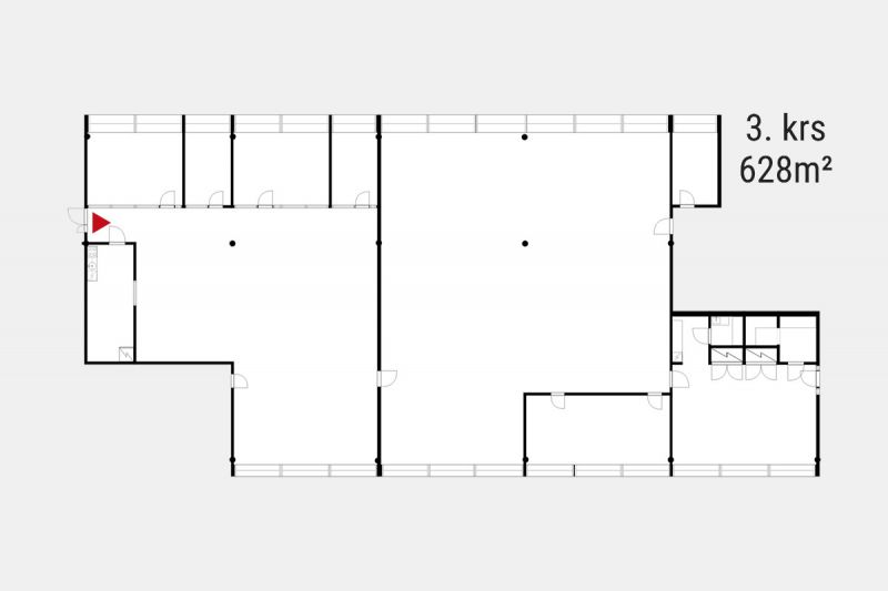
3. kerros 628m2
Kiinteistöstä aulapalvelu, lounasravintola, saunatilat ja vuokrattavia neuvottelutiloja.
Pihalla on myös parkkipaikkoja.
Kiinteistössä tiloja vapaana:
2. kerros 429m2
3. kerros 363m2
3. kerros 491m2
3. kerros 628m2
Kiinteistöstä aulapalvelu, lounasravintola, saunatilat ja vuokrattavia neuvottelutiloja.
Pihalla on myös parkkipaikkoja.
Vapautuu
Heti
Energiatehokkuusluokka
Ei lain edellyttämää energiatodistusta
Näkyvällä paikalla
Ota yhteyttä
Arvo Premises Oy
Joakim Kukkonen
Osakas, Toimitilavälittäjä
Näytä puhelinnumero
040 555 8106
Seppo Pakarinen
Osakas, Kiinteistönvälittäjä. LKV, YKV, AKA
Näytä puhelinnumero
040-703 8000
Pyydä lisätietoa
