Vuokrataan toimistotilat, liiketilat, varastotilat - Espoo
Koskelontie 13, Koskelo, 02920 Espoo #10788935
Vuokrattavana koko kiinteistö, joka sisältää varasto-/tuotantotilaa, toimistotilaa ja sosiaali- ja muuta tilaa.
Osoite
Koskelontie 13, 02920 Espoo
Tilatyyppi
Toimistotilaa
790 m2
Liiketilaa
304,5 m2
Varastotilaa
7100 m2
Yhteensä
9039 m2
Tilajako
Jaettavissa
Varasto-/tuotantotilaa 7100m²
Toimistotilaa 790m²
Sosiaali- ja muuta tilaa, joista ravintolatilat 304,5m²
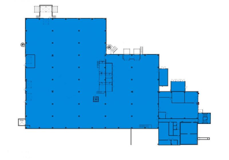
Pohjapiirros
Vuokra
Hintatiedot pyydettäessä!
Vuokraan sisältyy lämpö
Kiinteistö
Tilat ovat remontoitavissa käyttäjien toiveiden mukaisesti.
Lastausramppi, lastaustasku/nosto-ovi * 11
Lattiakantavuus 2000 kg/m2.
Vuokrattavana koko kiinteistö
- Varasto-/tuotantotilaa 7100m²
- Toimistotilaa 790m²
- Sosiaali- ja muuta tilaa, joista ravintolatilat 304,5m²
Kiinteistöstä, jossa on käynnissä myös energiaremontti, on mahdollista saada tuotanto- ja varastotilaa, joissa maantason lastausmahdollisuus sekä useampi lastaustasku, ja toimistotilat saman katon alta. Kiinteistössä on myös ravintolatilaa.
Tilat ovat remontoitavissa käyttäjien toiveiden mukaisesti.
Lastausramppi, lastaustasku/nosto-ovi * 11
Lattiakantavuus 2000 kg/m2.
Vuokrattavana koko kiinteistö
- Varasto-/tuotantotilaa 7100m²
- Toimistotilaa 790m²
- Sosiaali- ja muuta tilaa, joista ravintolatilat 304,5m²
Kiinteistöstä, jossa on käynnissä myös energiaremontti, on mahdollista saada tuotanto- ja varastotilaa, joissa maantason lastausmahdollisuus sekä useampi lastaustasku, ja toimistotilat saman katon alta. Kiinteistössä on myös ravintolatilaa.
Tilat ovat remontoitavissa käyttäjien toiveiden mukaisesti.
Sijainti
Kehä III välittömässä läheisyydessä, josta sujuvat yhteydet kaikille pääväylille.
Vapautuu
Heti vapaana!
Kerros
1 / 2
Energiatehokkuusluokka
Ei lain edellyttämää energiatodistusta
Katutasossa
Näkyvällä paikalla
Jaettavissa
Lastauslaituri
Ota yhteyttä
Arvo Premises Oy
Joakim Kukkonen
Osakas, Toimitilavälittäjä
Näytä puhelinnumero
040 555 8106
Seppo Pakarinen
Osakas, Kiinteistönvälittäjä. LKV, YKV, AKA
Näytä puhelinnumero
040-703 8000
Pyydä lisätietoa
