Vuokrataan toimistotilat - Helsinki
Lemuntie 3-5, Vallila, 00510 Helsinki #10788849
Toimistotilaa Vallilan Akselissa & Elinassa.
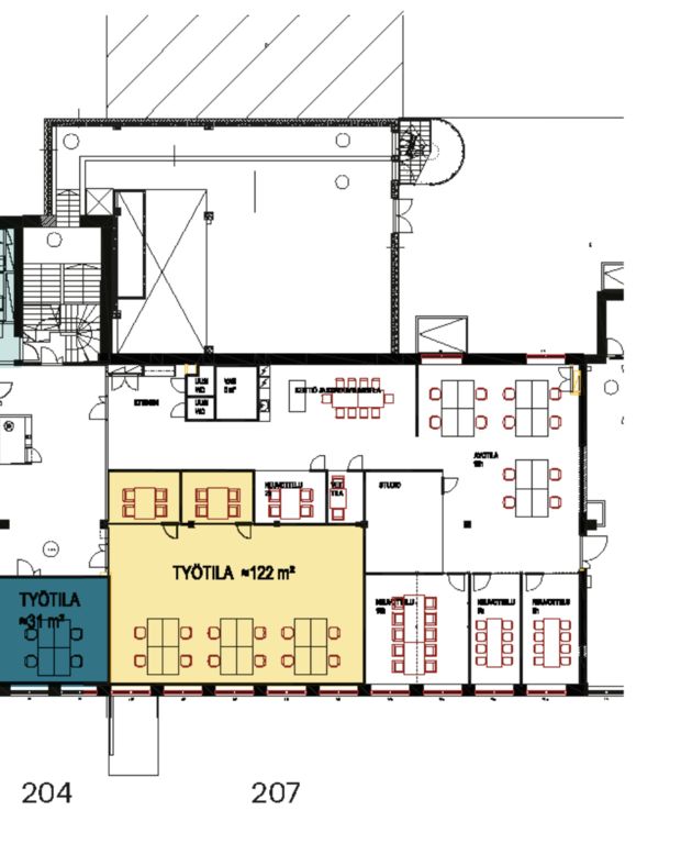
Tämä 122m2 toimistotila sijaitsee kiinteistön 2. kerroksessa. Kerroksessa on yhteiskäyttöiset sosiaalitilat. Kuvat ovat havainnekuvia kiinteistön tiloista. Tila remontoidaan valmiiksi uudelle vuokralaiselle.
Lemuntie 3-5 eli Vallilan Akseli & Elina on toimistokiinteistö Vallilassa. Alue tunnetaan erityisesti muotoiluun, designiin ja sisustamiseen keskittyneistä yrityksistä. Akseli & Elina sai alkunsa vuonna 2005, kun joukko eri alan suunnittelijoita päättivät muuttaa vanhan Kutter- linja-autokoritehtaan desingnäyttelykeskukseksi. Kiinteistön tilat ovat persoonallisia ja muokattavissa vuokralaisen tarpeiden mukaan. Vuokralaisten käytössä on pyöräparkit ja suihkutilat. Kiinteistössä on lounasravintola.
Kysy lisää numerosta 044 723 4700 tai info@bref.fi. Palvelumme on tilanhakijoille ilmainen.
Bureau Real Estate Finland Oy
Lars Sonckin kaari 16, 02600 Espoo
Näytä puhelinnumero
0447234700
Bureau Real Estate Finland Oy
https://www.bref.fi