Vuokrataan toimistotilat - Jyväskylä
Yliopistonkatu 28, 40100 Jyväskylä #10788815
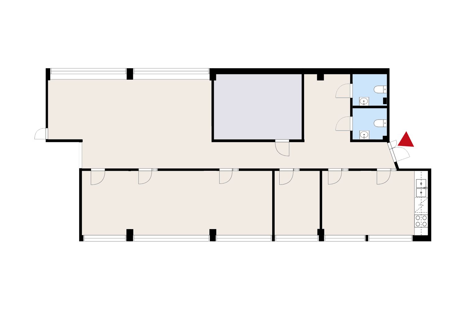
Yliopistonkatu 28, C-rapun 1. kerroksen toimistotila 193m2. Toimistossa on 1 pienempi toimisto ja kolme suurempaa toimistotilaa ja erillinen varasto/aputila joka voi toimia neuvottelutilana, keittiö, kaksi wc-tilaa. Toimistilassa on oma ilmanvaihtokone jonka käyttöä voi vuokralainen säätää itse. Tila sopii hyvin vaikka koulutustilaksi tai suunnittelualan yritystoimintaan. Hissi esteetön kulku. Heti vapaa tila.
Kohteesta tehty muutossuunnitelma kahdelle lisä toimistohuoneelle.
Vuokralaiset voivat käyttää kiinteistön neuvottelutiloja ja saunatiloja varauskalenterin mukaan, tilan käyttö on ilmaista. Keskustan kahvilat ja ruokapaikat on läheisyydessä ja muut monipuoliset palvelut.
Soita minulle kohteen lisätiedoista ja muista vapaista tiloista.
Hissi

Fine LKV
Minna Moisio
Toimitilavuokraus, LKV
Näytä puhelinnumero
0505417349
minna@finelkv.fi
Leväsentie 2, 70700 Kuopio
Yliopistonkatu 28, 40100 Jyväskylä
Toimin kaupallisena managerina ja toimitilavuokraajana, otathan yhteyttä jos mietit mahdollisia muutostöitä tai esillä olevista toimitiloista ei löydy sitä mitä etsit. Selvitetään muut tila mahdollisuudet. Asiakaslähtöisyys on minulle tärkeää sekä asioiden sujuvuus. Ota yhteyttä, mielelläni autan sinua.