Vuokrataan toimistotilat - Jyväskylä
Kivääritehtaankatu 6, Tourula, 40100 Jyväskylä #10788769
Vuokrataan modernia ja persoonallista toimistotilaa Kivääritehtaalta
Osoite
Kivääritehtaankatu 6, 40100 Jyväskylä
Tilatyyppi
Toimistotilaa
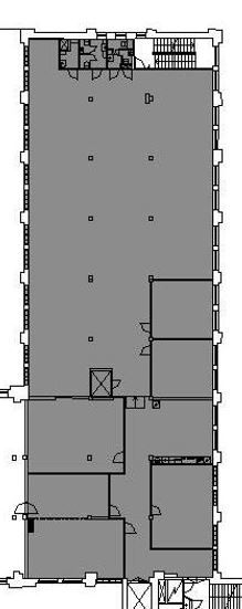
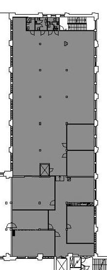
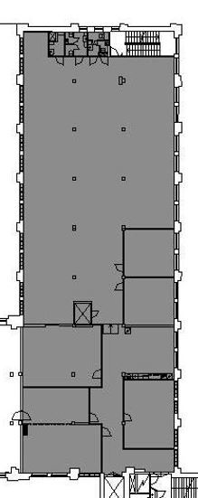
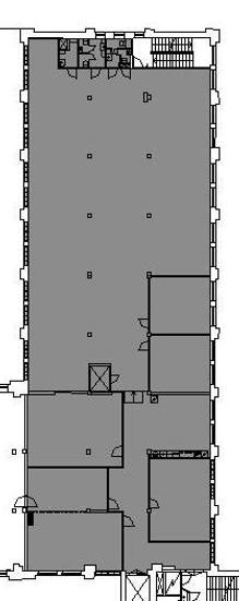
667 m2
Muuta
Vuonna 1927 valmistunut valtion kivääritehdas on saneerattu 2000-luvun alussa korkeatasoiseksi toimistorakennukseksi jossa eri kokoisia, korkealla huonekorkeudella ja nykyaikaisella kiinteistötekniikalla varustettuja toimistoja: jäähdytys, koneellinen ilmanvaihto lämmön talteenotolla, kuituyhteydet, joustava pohjaratkaisu.
Kohteen saavutettavuus valtateiden risteyksien läheisyydessä on erinomainen, Jyväskylän keskusta on noin 1km päässä ja matkakeskus kävelymatkan etäisyydellä. Lähellä ruokapaikkoja, lähiliikenteen pysäkit sekä ruokakauppa. Kiinteistöllä sähköautojen latauspaikkoja.
Toimistotilat palvelevat nykyaikaista monitilatoimistoa muokattavuuden osalta ja ne soveltuvat monille eri toimijoille.
Kyseinen reilun 700m2 toimisto koostuu näyttävästä korkeasta avotilasta jossa kahdessa tasossa ikkunat tuovat valoa ja avaruutta tilaan runsaasti. Tilassa on erikseen useampia huoneita soveltuen neuvottelu-, tiimi-, tai työpistekäyttöön.
Tilaa on mahdollista laajentaa yli 1000m2 kokonaisuudeksi.
Ota yhteyttä näyttöä varten!
Kohteen saavutettavuus valtateiden risteyksien läheisyydessä on erinomainen, Jyväskylän keskusta on noin 1km päässä ja matkakeskus kävelymatkan etäisyydellä. Lähellä ruokapaikkoja, lähiliikenteen pysäkit sekä ruokakauppa. Kiinteistöllä sähköautojen latauspaikkoja.
Toimistotilat palvelevat nykyaikaista monitilatoimistoa muokattavuuden osalta ja ne soveltuvat monille eri toimijoille.
Kyseinen reilun 700m2 toimisto koostuu näyttävästä korkeasta avotilasta jossa kahdessa tasossa ikkunat tuovat valoa ja avaruutta tilaan runsaasti. Tilassa on erikseen useampia huoneita soveltuen neuvottelu-, tiimi-, tai työpistekäyttöön.
Tilaa on mahdollista laajentaa yli 1000m2 kokonaisuudeksi.
Ota yhteyttä näyttöä varten!
Vapautuu
01.07.2022
Rakennusvuosi
1927
Kerros
3
Ota yhteyttä
Infonia Oy
Kauppakatu 18 A, 40100 Jyväskylä
Näytä puhelinnumero
+358 407579731
Mikko Hirvi
Näytä puhelinnumero
+358 407579731
Pyydä lisätietoa
