Vuokrataan toimistotilat - Tampere
Biokatu 10, Tampere, Suomi, Kauppi, 33520 Tampere #10788703
Tampereen Gamma sijaitsee Kaupin kampusalueella, vain 10 minuutin ratikkamatkan päässä Tampereen keskustasta.
Osoite
Biokatu 10, Tampere, Suomi, 33520 Tampere
Tilatyyppi
Toimistotilaa
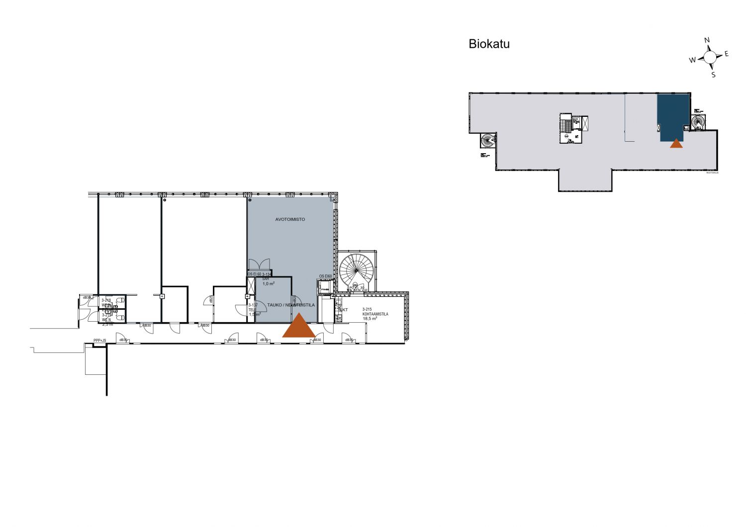
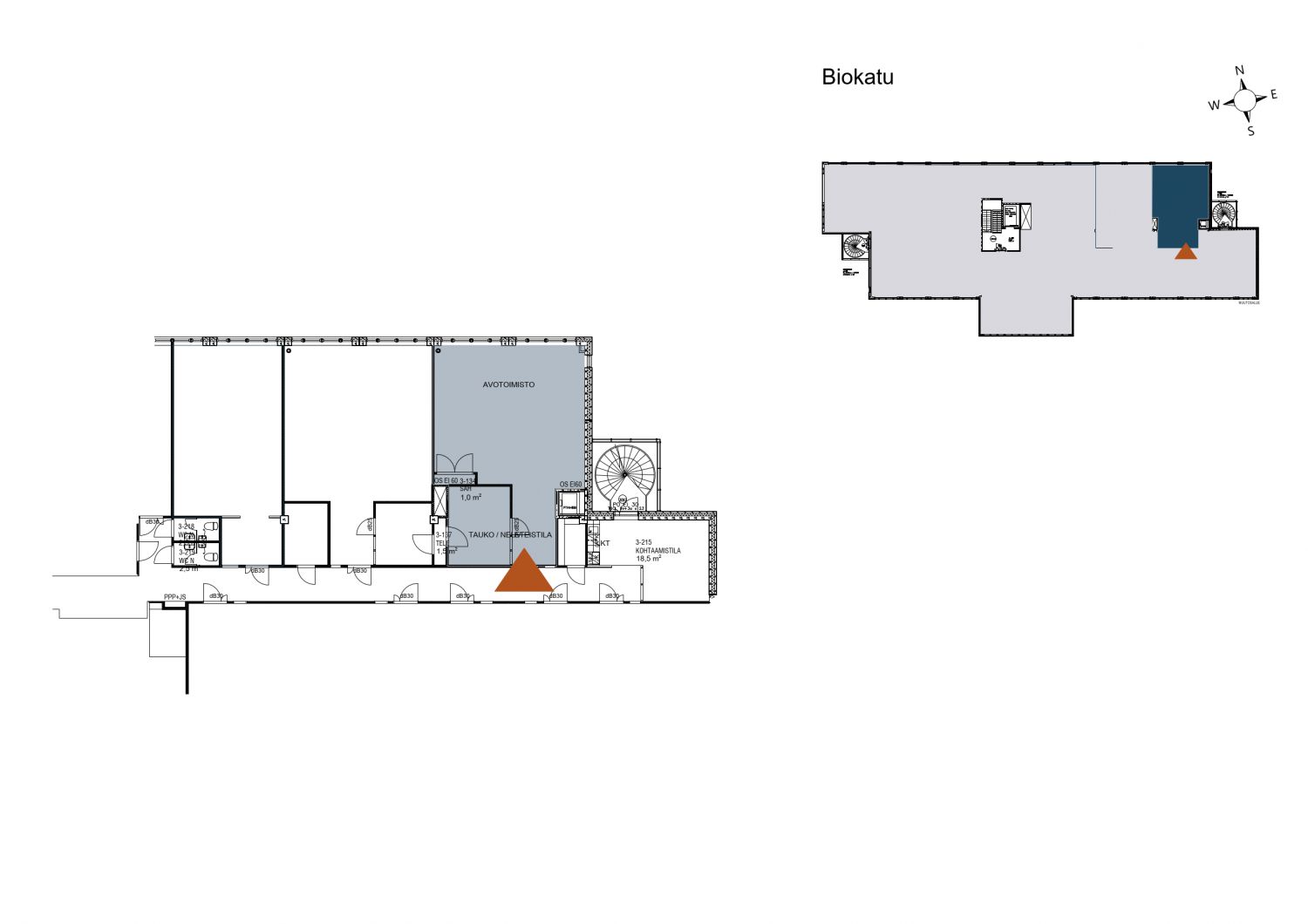
67 m2
Kiinteistö
Gamma - Biokatu 10
Ympäristö
Juna-asema: 3,2 km, Lentoasema: 21,6 km
Muuta
Vuokrattavana toimistotila 67,5 m² – Vapaana 3. kerroksen toimitila. Toimitilaan on käynti yhteiskäytävältä. Käytävän varrella olevien yritysten käytössä on kaksi yhteiskäyttöistä keittiötilaa, taukotila, WC:t sekä varattava neuvottelutila.
Toimitilakiinteistö Gamma sijaitsee Kaupin kampusalueella, aivan Tampereen yliopistollisen sairaalan sekä alueen pääliikenneväylien läheisyydessä.
Kaupin kampukselle on vuosien saatossa sijoittunut merkittävä määrä terveys- ja hyvinvointialan yrityksiä ja osaamista. Tämä tekee alueesta erityisen houkuttelevan kyseisten alojen toimijoille.
Katso myös muut vapaana olevat tilat:
Gamma – Biokatu 10 | Toimisto 51 m² | LähiTapiola
Gamma – Biokatu 10 | Toimisto 68.5 m² | LähiTapiola
Tampereen Gamma sijaitsee Kaupin kampusalueella, vain 10 minuutin ratikkamatkan päässä Tampereen keskustasta.
Toimitilakiinteistö Gamma sijaitsee Kaupin kampusalueella, aivan Tampereen yliopistollisen sairaalan sekä alueen pääliikenneväylien läheisyydessä.
Kaupin kampukselle on vuosien saatossa sijoittunut merkittävä määrä terveys- ja hyvinvointialan yrityksiä ja osaamista. Tämä tekee alueesta erityisen houkuttelevan kyseisten alojen toimijoille.
Katso myös muut vapaana olevat tilat:
Gamma – Biokatu 10 | Toimisto 51 m² | LähiTapiola
Gamma – Biokatu 10 | Toimisto 68.5 m² | LähiTapiola
Tampereen Gamma sijaitsee Kaupin kampusalueella, vain 10 minuutin ratikkamatkan päässä Tampereen keskustasta.
Vapautuu
Kysy
Rakennusvuosi
2001
Kerros
3
Energiatehokkuusluokka
F2007
Ota yhteyttä
LähiTapiola Kiinteistövarainhoito Oy
Anne-Mari Ijäs
Vuokrauspäällikkö
Näytä puhelinnumero
040 415 4137
Pyydä lisätietoa
