Vuokrataan toimistotilat - Espoo
Västanvinden 1, Espoo, Suomi, Tapiola, 02100 Espoo #10788686
Länsikulma on Espoon Tapiolassa sijaitseva terveys- ja hyvinvointipalveluiden ”hyvän tuulen” talo.
Osoite
Västanvinden 1, Espoo, Suomi, 02100 Espoo
Tilatyyppi
Toimistotilaa
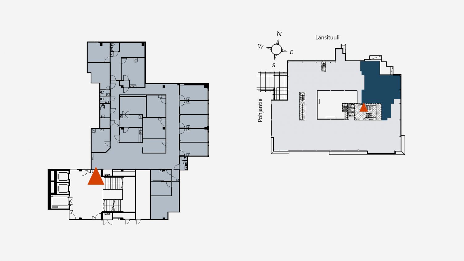
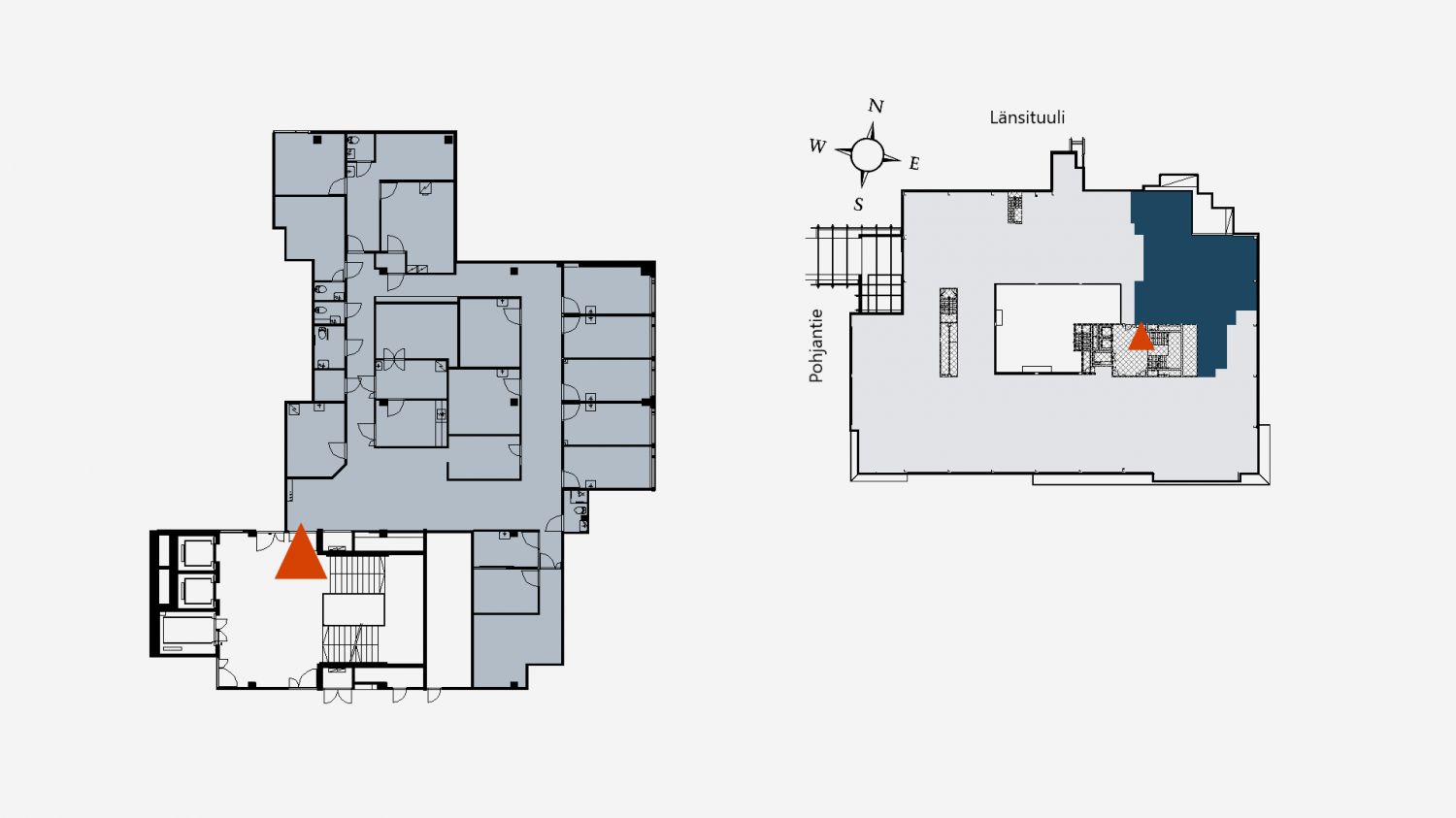
381 m2
Kiinteistö
Tapiolan Länsikulma
Ympäristö
Bussipysäkki: 50 m, Metroasema: 50 m, Juna-asema: 6,5 km, Lentoasema: 26 km
Pysäköinti
Saatavilla
Kulkuyhteydet
CAT6 ja valokuitu
Muuta
Siistiä, peruskuntoista toimistotilaa, joka ollut aiemmin lääkäriaseman käytössä. Osassa huoneista vesipisteet. Vuokrataan esim. väistötilaksi maaliskuun 2027 loppuun saakka.
Länsikulma on Espoon Tapiolassa sijaitseva terveys- ja hyvinvointipalveluiden ”hyvän tuulen” talo.
Länsikulma on Espoon Tapiolassa sijaitseva terveys- ja hyvinvointipalveluiden ”hyvän tuulen” talo.
Vapautuu
Kysy
Rakennusvuosi
1985
Kerros
2
Energiatehokkuusluokka
C2018
Ota yhteyttä
LähiTapiola Kiinteistövarainhoito Oy
Heli Jalonen
Vuokrauspäällikkö
Näytä puhelinnumero
040 823 3490
Pyydä lisätietoa
