Vuokrataan liiketilat - Seinäjoki
Puskantie 13, Seinäjoki, Suomi, Seinäjoki, 60100 Seinäjoki #10788675
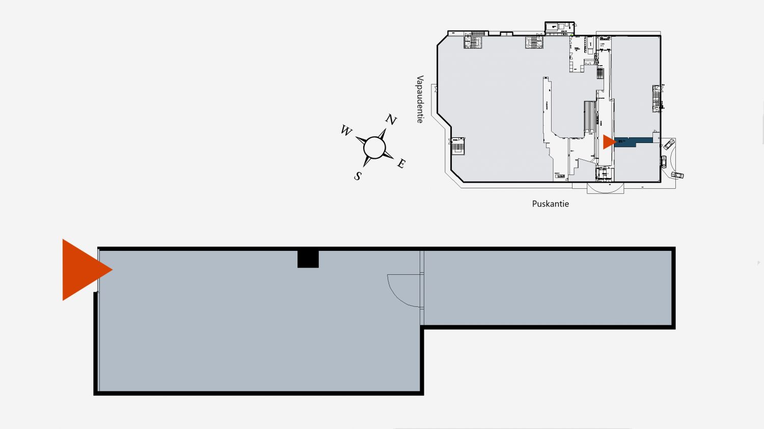
Osoite
Puskantie 13, Seinäjoki, Suomi, 60100 Seinäjoki
Tilatyyppi
Liiketilaa
56 m2
Kiinteistö
Seinäjoen Puskantie 13
Muuta
Seinäjoen keskustassa sijaitseva ensimmäisen kerroksen liiketila. Ilmainen asiakaspysäköinti.
Vapautuu
Kysy
Rakennusvuosi
1985
Kerros
1
Energiatehokkuusluokka
C2018
Ota yhteyttä
LähiTapiola Kiinteistövarainhoito Oy
Lauri Liewendahl
Kohdepäällikkö
Näytä puhelinnumero
040 553 7757
Pyydä lisätietoa
