Vuokrataan toimistotilat - Espoo
Tekniikantie 12, Otaniemi, 02150 Espoo #10788669
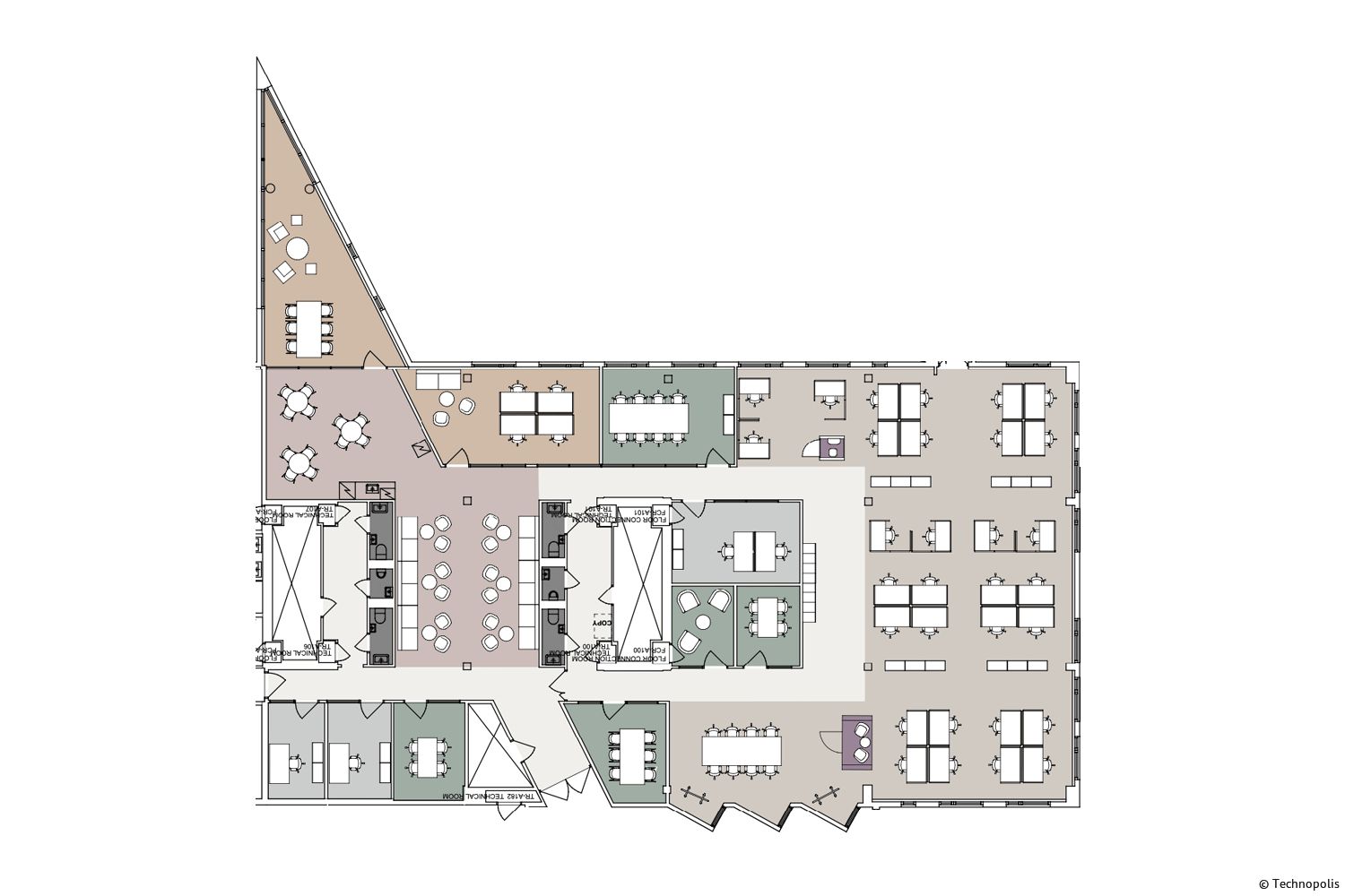
Vuokrattavana ensimmäisen kerroksen tilava 515 m² toimistokokonaisuus Technopolis Otaniemessä Espoossa. Innopoli 1 -rakennuksessa sijaitsevassa toimistossa on viihtyisä sisääntuloalue, josta avautuu suuri keittiöalue. Työskentelytilat on jaoteltu omaksi selkeäksi kokonaisuudeksi, ja toimistossa on myös omat neuvottelu- ja wc-tilat. Saatavilla olevasta sovituskuvasta näkee tilan toiminnot sekä tarkemman työpistemäärän. Toimitilan ilmastointi takaa miellyttävän lämpötilan ympäri vuoden.
Tila on vuokrattavissa kalustettuna, ja työtilan suunnittelu- sekä muuttopalvelut ovat saatavilla muuton tueksi. Ota yhteyttä ja tule tutustumaan paikan päälle.
Technopolis Otaniemi sijaitsee lähellä Aalto-yliopiston metroasemaa, pikaraitiotien ja bussireittien varrella. Lisäksi Suomen vilkkain liikenneväylä Kehä I kulkee aivan kampuksen vierestä. Parkkipaikkoja on erittäin hyvin saatavilla autoilijoiden tarpeisiin.
Technopolis Otaniemen kampuksen monipuolisten palveluiden ansiosta sinä voit keskittyä liiketoimintaasi. Palveluihin kuuluvat ystävällinen aulapalvelu, monipuolinen valikoima kokoustiloja, useita erinomaisia ravintoloita ja useampi hyvin varusteltu kuntosali. Lisäksi kampukselta löytyy kampaamoita, hammasklinikka, eläinlääkäriasema ja kaksi autopesulaa.
Technopolis
Elektroniikkatie 8 FIN-90590 Oulu
Näytä puhelinnumero
046 712 0000
Heta Lindman
Näytä puhelinnumero
050 336 5815
Hanna Peltola
Näytä puhelinnumero
050 514 3746
Nina Torkkeli
Näytä puhelinnumero
040 532 9787
Technopolis on työympäristöjen asiantuntija. Tarjoamme joustavia ja tehokkaita toimitiloja sekä niihin liittyviä palveluita. Hoidamme kaiken työtilojen suunnittelusta sekä aula- ja kokouspalveluista ravintoloihin ja siivoukseen. Asiakaskokemus ja sen kehittäminen ovat toimintamme ytimessä. Meillä on 14 kampusta, joissa toimii 1200 asiakasyritystä ja niiden 35 000 työntekijää neljässä maassa Euroopassa.
https://technopolisglobal.com/fi