Vuokrataan toimistotilat - Tampere
Hermiankatu 3A, Hervanta, 33720 Tampere #10788665
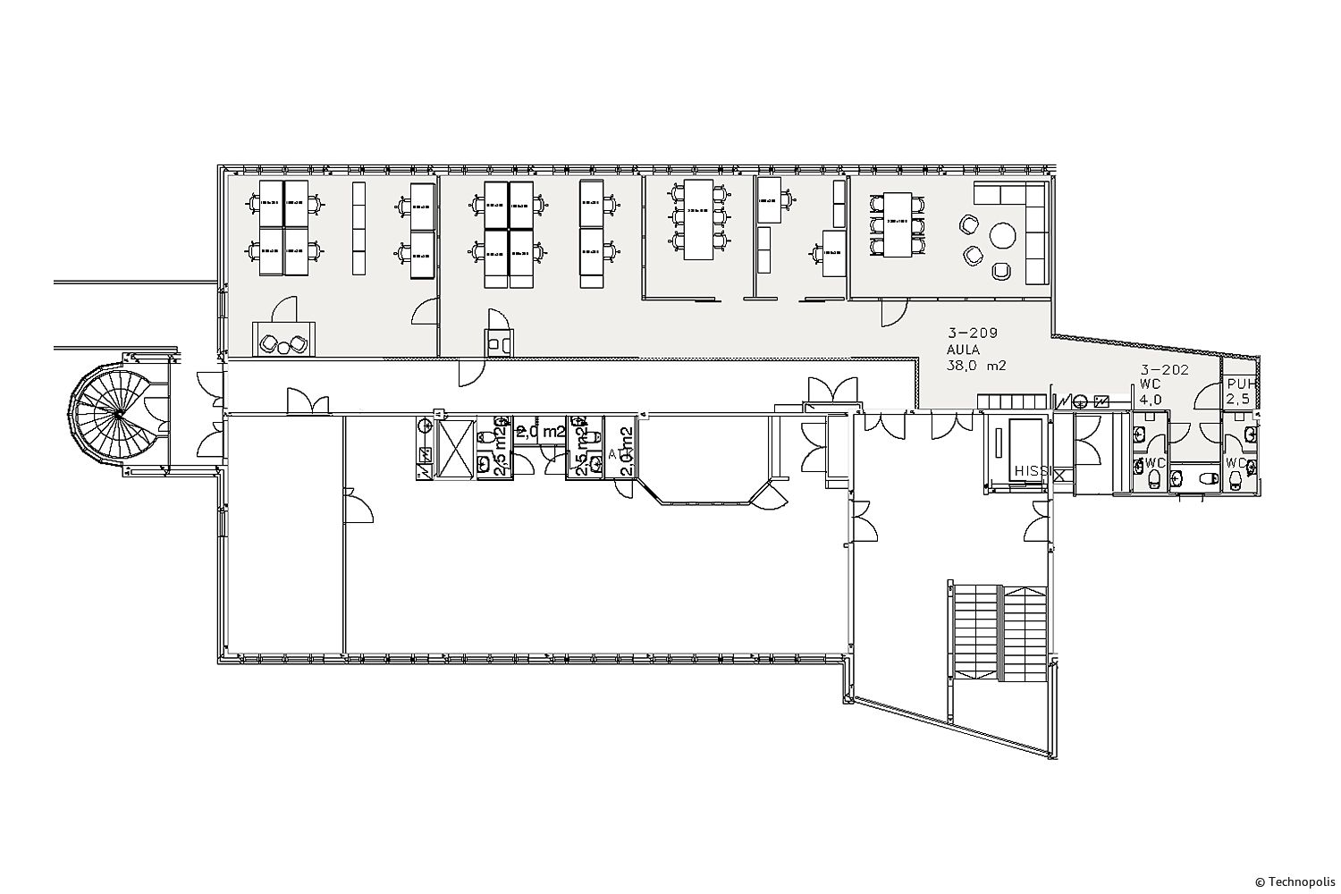
Hermia 10 3. kerroksen valoisa toimitila sisältäen yhden neuvottelutilan. Kiinteistöstä on sisäyhteys Hermia 11 -taloon, jossa on aulapalvelu, lounasravintola, kokoustilat sekä kuntosali. Kiinteistö sijaitsee loistavien liikenneyhteyksien varrella Tampereen Hervannassa. Hermian kampukselta löytyy myös ruokakauppa ja liikuntakeskus.
Technopolis
Elektroniikkatie 8 FIN-90590 Oulu
Näytä puhelinnumero
046 712 0000
Riitta Mustalahti
Näytä puhelinnumero
050 564 6448
Technopolis on työympäristöjen asiantuntija. Tarjoamme joustavia ja tehokkaita toimitiloja sekä niihin liittyviä palveluita. Hoidamme kaiken työtilojen suunnittelusta sekä aula- ja kokouspalveluista ravintoloihin ja siivoukseen. Asiakaskokemus ja sen kehittäminen ovat toimintamme ytimessä. Meillä on 14 kampusta, joissa toimii 1200 asiakasyritystä ja niiden yli 30 000 työntekijää neljässä maassa Euroopassa.
https://technopolisglobal.com/fi