Vuokrataan toimistotilat - Helsinki
Pohjoisesplanadi 21, Keskusta, 00100 Helsinki #10788612
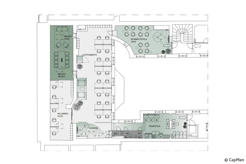
Vuokrataan remontoitava neljännen kerroksen toimisto Cavoniuksen talosta Pohjoisesplanadilta. Tämä Carl Ludvig Engelin suunnittelema talo sijaitsee paraatipaikalla keskustassa ja lähistöltä löytyy monipuoliset palvelut sekä hyviä lounasravintoloita. Tilat räätälöidään seuraavalle käyttäjälle.
Lisätietoja soita 020 730 4530 tai info@repoint.fi. Palvelumme on tilanhakijalle ilmainen.
Osoite
Pohjoisesplanadi 21, 00100 Helsinki
Tilatyyppi
Toimistotilaa
272 m2
Vapautuu
Kysy
Kerros
4
Ota yhteyttä
Repoint Toimitilat Oy
Itälahdenkatu 22 B, 00210 Helsinki
Näytä puhelinnumero
020 730 4530
Lisätietoja soita Näytä puhelinnumero 020 730 4530 tai info@repoint.fi
https://repoint.fi/Pyydä lisätietoa
